MX系列中文说明书 - 第277页
Appendix G-3 Mx100 SYSTEM *061114 Sample 구성기준 See"2664Z-21000-0" Serial Board NX02 PCI#1 (I/O& LED Control) *f,r Trolley포함 Nx12*7 Nx12*1 MRIL2*1 CAN Board (Motion Control) PCI-7841 See"2664Z-22000-0&qu…

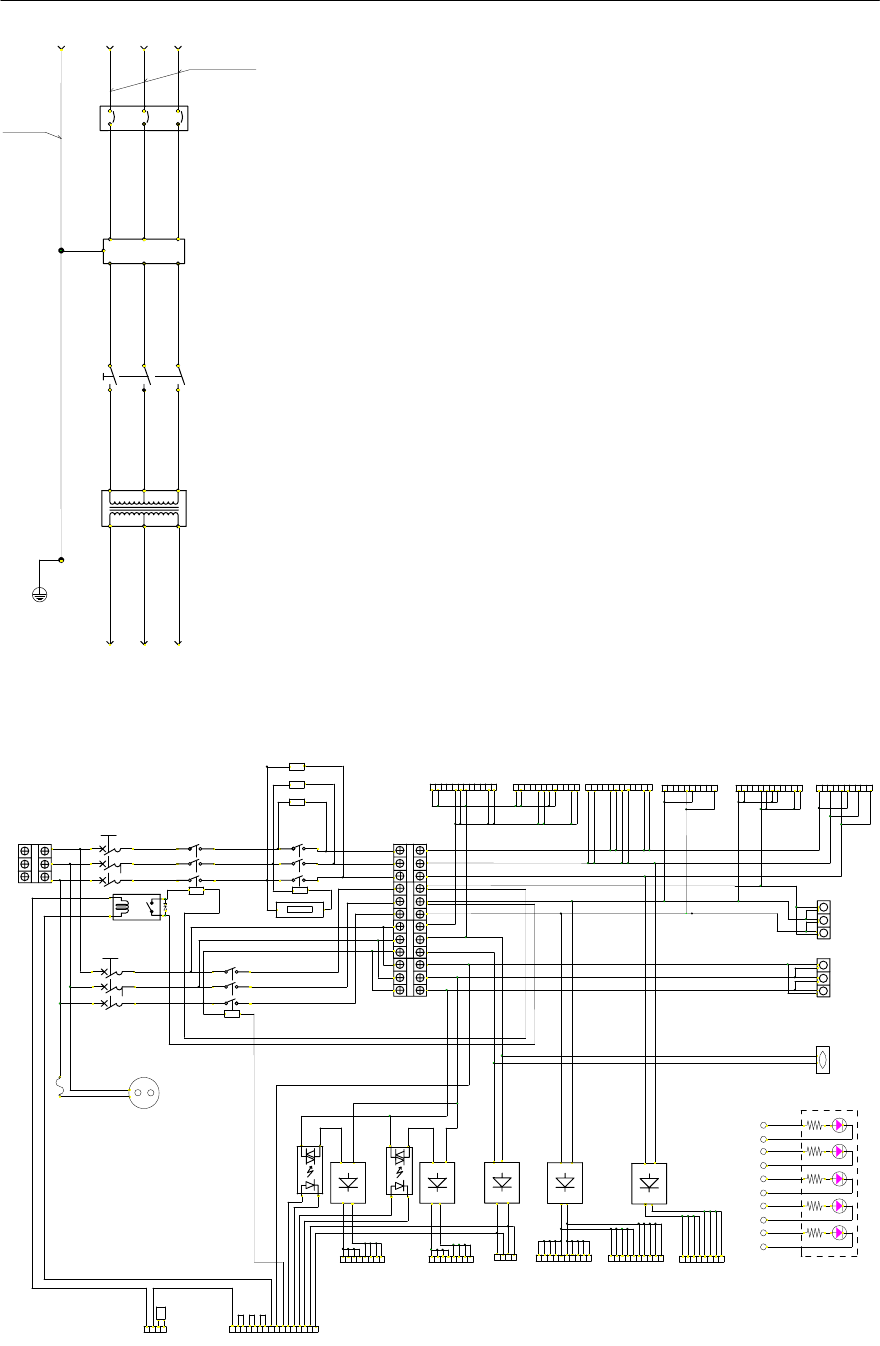
G-2 Mx Series Manual
F.G
L12
INPUT
KM(MAIN S/W)
T3-3-8342
L22
L32
T/F (Transfer)
3 Phase 5KVA
2653Z-10104-01x
2653Z-10105-01x
L13
OUTPUT
L23
L33
2653Z-10106-01x
L31
L21L11
654
312
L30
L20
AWG#6
(GRN/YEL)
PE L1 L2 L3
L10
MCCB
15A
N/F (Noise Filter)
MAX 450V , 20A
AWG#10
F.G
F.G
2653Z-10101-01x
2653Z-10103-01x
1 2 34
1
2
DC: +RED // -BLU
온도센서
FUSE(250V 5A)
AC Concent (FG Type)
FG Frame접지
L200
L340
Note:Cable Coloer
AC: BLK
L330
L230
AC IN
PS1
DC OUT
L330
MSF150-15
DC OUT
L330
AC IN
L230
PS2
AC IN
MSF150-15
DC OUT
P3
43 56789 1011121314 1615
L130
43 521
CN1 (DC15Va) CN2 (DC15Vb)
876
1 2 3 4 5678
CN3(DC24V)
L2
L3
L1
CP1
GV2-M10
L222
L120
T1
L122
A2A1
MC2
T1L1L1 T1
L320
L220
T2
T3
T2
T3T3T3L3
L2
A1
L23
(L24)
L33
(L34)
L13
(L14)
TB1
L1
GV2-M16
CP2
L100
L2
L3
L300
L200
T3
T2
L210
L310
LC1D126
MC2
T1
L110
L111
T1
T1L1L1
L311
L211
T2
T3T3T3L3
L2
L3
L2
L1L1
LC1D126
MC3
T1T1
L112
T2
T3T3T3
L121
L312
L212
R3
R1
R2
561 2 34
CN7 (AC220Va)
7 8 910 1211
S
R
T
D1
D2
D3
D4
TB2
L230
L130
L113
L122
L313
L213
L321
L221
A2
Timer
L310
L321
L221
L220
L120
A1
A2
L121
LC1D126
S
R
T
R
S
R
T
L130
L322
L222
L130
L230
L330
S
T
L330
L230
L130
1 32
CN15 (AC220Vc)
64 785 1112910
L213
1
CN9 (AC220Vsw)
76543
L113
2
L213
L113
8 910 1211
CN6 (AC220Vb)
321 4 5 876 109
CN8 (AC220Vb)
321
L222
L222
L322
L122
L313
L213
L113
L122
85674
CN10 (AC220Vsw)
1211910
4231 5 789 106
L330
L230
L230
POWER LAMP
L322
L222
RUN LAMP
CN4A (DC24V)
1 2 34
1 342 1098765
1 2 3
CN4B (DC24V) CN5 (DC24Vsw)
87654
1
109
67852 34
PS5
MSF35-24
PS4
PS3
MSF150-24
AC IN
DC OUT
L322
L222
L230
L313
L213
PS1
DC OUT
VSF400-24
AC IN
PS5
PS2
PS3
PS4
+
-
+
PD_PS3N
PD_PS4P
PD_PS4N
PD_PS3P
+
-
-
PD_PS2P
PD_PS2N
PD_PS1N
FAN
+
PD_PS1P
MPS-LED
L330
-
-
+
PD_PS5P
PD_PS5N

Appendix G-3
Mx100 SYSTEM
*061114 Sample 구성기준
See"2664Z-21000-0"
Serial Board
NX02 PCI#1
(I/O&
LED Control)
*f,r Trolley포함
Nx12*7
Nx12*1
MRIL2*1
CAN Board
(Motion Control)
PCI-7841
See"2664Z-22000-0"
See"2664Z-24000-0"
Main Board
2612Z-10701-01X
AC 220V
From: P-BOX CN7
Keyboard
Mouse
PC(RK-607FC)
CAN COMM Board
(Motion Control)
PCI-7841
Meteor ll Multi Channel
P2
P1
Monitor
PC Base Control Block Diagram
PCI BUS
Grabber
Board#0
Head Offset Cam
f_Module Cam_B
f_Module Cam_A
Angelo RTV-24
M
M
DMC*1
*TFU IV
DMC*2
See"2664Z-25000-0"
PIC-7841 (CAN Board)
I/O Control B/D 1 (70-400451)
Angleo RTV-24
Keyboard
Mouse
852090-000071
852090-000071
852090-000078
Monitor
852022-000022
852027-000008
853012-000034
Keyboard
Mouse
Monitor
2664Z-21001-01
USB To Serial Cable *4EA
(105018-000001)
PC(RK-607FC)
Main Board Block Diagram
2664Z-28010-02
2664Z-27500-01
2664Z-27500-01
T-BOX PWR
2664Z-28010-01
2664Z-21002-01
2610Z-26040
T-BOX
Pana AMP
f-Feeder
r-Feeder
CONVEX
AMP X
CONVEX
AMP Y1
CONVEX
AMP Y2

G-4 Mx Series Manual
Mx100 POWER
POWER BOX
CN15
CN15
5569-12
AC240Vb
Not Use
CN10
CN9
CN10
CN9
CN9
5569-12
AC220Vsw
CN10
5569-10
AC240Vsw/3상
2653Z-10901-01x
2653Z-11001-01x
CN6
5569-10
AC220Vb
CN6
CN6
CN7CN7
CN7
5569-12
AC220Va
2653Z-10701-01x
2653Z-10801-01x
CN8CN8
CN8
5569-12
AC220Vb
*VME PWR
*FAN PWR
*W AMP Cont PWR
*X,Y Motor
Cont PWR
*PC PWR
*Monitor PWR
T/B2
T/B1
*X, Y1, Y2
MOTOR AMP PWR
*DMC SMPS
AC In PWR
*W Motor PWR
P1
2653Z-11201-01x
P3
P1
P3
2653Z-11002-01x
* EMG SYS SIGNAL(f/r)
* RUN S/W
* Feeder On/Off S/W(f/r)
*Door Sig(f/r)
POWER UNIT
(MPS-7K-X)
T/B
2653Z-10106-01x
I/F
r2 PWR
r FEEDER PWR
CN2
I/F
r1 PWR
CN2
f FEEDER PWR
2653Z-10202-01x
2653Z-10202-02x
I/F
f2 PWR
CN1
CN1
CN1
5569-08
DC+15Va/150W
I/F
f1 PWR
See"
Front/Rear Feeder Base
To: 2540Z-28006-01X
CN4A
2653Z-10401-01x
2653Z-10402-01x
CN4A
CN4B
*TB CN11
*Cooling B/D CN1
2653Z-10601-01x
CN5
CN5
2653Z-10501-01x
CN5
5569-08
DC+24Vsw/400W
CN4B
CN3
CN2
5569-08
DC+15Vb/150W
Not Use
CN3
5569-04
DC+24Vc/35W
CN4A/B
5569-10
DC+24V/150W
CN4A/A
5569-10
DC+24V/150W
*Cooling B/D CN1
*Vision LED(MRIL)
*Head DMC Cont PWR
*DMC-A Cont PWR
*NX12 PWR
*TB B/D Cont PWR
*T-Box PWR
*MSU NX12 PWR
2653Z-10402-02x
2653Z-10402-03x
* NX12#3-14
Servo On/Off
2821Z-23041-01x
2821Z-23041-02x
2653Z-23005-01x
2653Z-10601-02x
2653Z-10801-03x
2653Z-10801-02x
2653Z-10901-02x--04X
2653Z-10901-05X
2653Z-11001-02x
Mx200 POWER
POWER BOX
CN15
CN15
5569-12
AC240Vb
Not Use
CN10
CN9
CN10
CN9
CN9
5569-12
AC220Vsw
CN10
5569-10
AC240Vsw/3상
2653Z-10901-01x
2653Z-11001-01x
CN6
5569-10
AC220Vb
CN6
CN6
CN7CN7
CN7
5569-12
AC220Va
2653Z-10701-01x
2653Z-10801-01x
CN8CN8
CN8
5569-12
AC220Vb
*VME PWR
*FAN PWR
*W AMP Cont PWR
*X,Y Motor
Cont PWR
*PC PWR
*Monitor PWR
T/B2
T/B1
*X, Y1, Y2
MOTOR AMP PWR
*DMC SMPS
AC In PWR
*W Motor PWR
P1
2653Z-11201-01x
P3
P1
P3
2653Z-11002-01x
* EMG SYS SIGNAL(f/r)
* RUN S/W
* Feeder On/Off S/W(f/r)
*Door Sig(f/r)
POWER UNIT
(MPS-7K-X)
T/B
2653Z-10106-01x
I/F
r2 PWR
r FEEDER PWR
CN2
I/F
r1 PWR
CN2
f FEEDER PWR
2653Z-10202-01x
2653Z-10202-02x
I/F
f2 PWR
CN1
CN1
CN1
5569-08
DC+15Va/150W
I/F
f1 PWR
See"
Front/Rear Feeder Base
To: 2540Z-28006-01X
CN4A
2653Z-10401-01x
2653Z-10402-01x
CN4A
CN4B
*TB CN11
*Cooling B/D CN1
2653Z-10601-01x
CN5
CN5
2653Z-10501-01x
CN5
5569-08
DC+24Vsw/400W
CN4B
CN3
CN2
5569-08
DC+15Vb/150W
Not Use
CN3
5569-04
DC+24Vc/35W
CN4A/B
5569-10
DC+24V/150W
CN4A/A
5569-10
DC+24V/150W
*Cooling B/D CN1
*Vision LED(MRIL)
*Head DMC Cont PWR
*DMC-A Cont PWR
*NX12 PWR
*TB B/D Cont PWR
*T-Box PWR
*MSU NX12 PWR
2653Z-10402-02x
2653Z-10402-03x
* NX12#3-14
Servo On/Off
2821Z-23041-01x
2821Z-23041-02x
2653Z-23005-01x
2653Z-10601-02x
2653Z-10801-03x
2653Z-10801-02x
2653Z-10901-02x--04X
2653Z-10901-05X
2653Z-11001-02x