4OM-1183-003 - 第107页
0409-002 1 - 45 (27) (27) (27) (27) (27) L/R L/R L/R L/R L/R 传送带部 传送带部 传送带部 传送带部 传送带部 Fig.4A58 Fig.4A58 Fig.4A58 Fig.4A58 Fig.4A58 (28) (28) (28) (28) (28) 排气清洁器 排气清洁器 排气清洁器 排气清洁器 排气清洁器 1 .3 1 .3 1 .3 1 .3 1 .3 维护保养部位 维护…

(26)(26)
(26)(26)
(26)
各部过滤器以及冷却风扇各部过滤器以及冷却风扇
各部过滤器以及冷却风扇各部过滤器以及冷却风扇
各部过滤器以及冷却风扇
装置上面的风扇装置上面的风扇
装置上面的风扇装置上面的风扇
装置上面的风扇
3M30
每三个月 清扫
请拆卸主机上面部冷却风扇的过滤器,用吸尘
器清扫。
清扫后,请准确安装。
0409-002 1-44
1 .31 .3
1 .31 .3
1 .3
维护保养部位维护保养部位
维护保养部位维护保养部位
维护保养部位
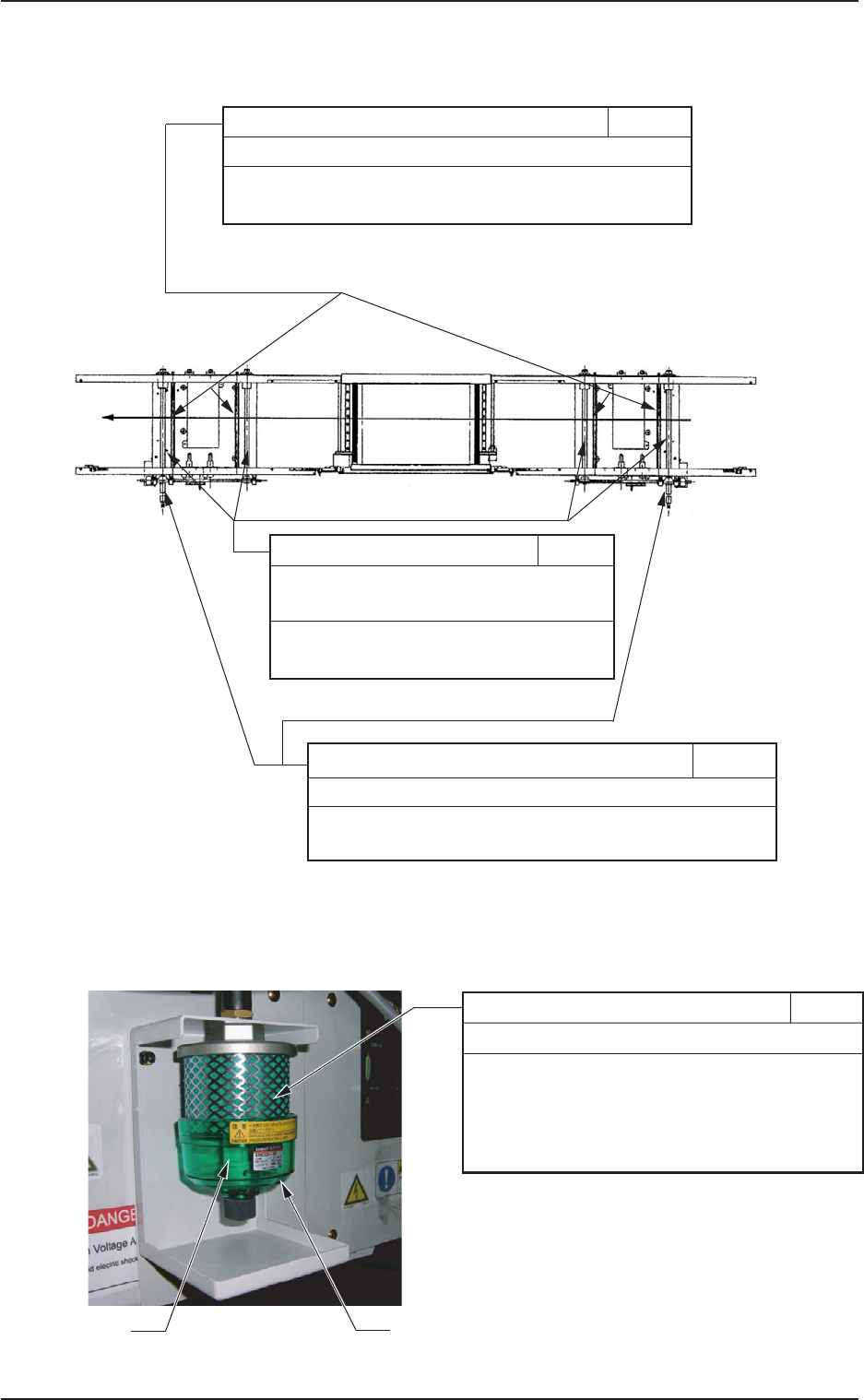
Fig.4A55Fig.4A55
Fig.4A55Fig.4A55
Fig.4A55
Fig.4A56Fig.4A56
Fig.4A56Fig.4A56
Fig.4A56
Fig.4A57 Fig.4A57
Fig.4A57 Fig.4A57
Fig.4A57
装置俯视图装置俯视图
装置俯视图装置俯视图
装置俯视图
主机驱动部的过滤器主机驱动部的过滤器
主机驱动部的过滤器主机驱动部的过滤器
主机驱动部的过滤器
3M31
每三个月 清扫
请用吸尘器清扫。
润滑油冷却器上的空气过滤器润滑油冷却器上的空气过滤器
润滑油冷却器上的空气过滤器润滑油冷却器上的空气过滤器
润滑油冷却器上的空气过滤器 1W11
每周 清扫
拆卸过滤器,用气枪或水洗清扫。
清扫后,请准确安装。
(a)拆卸过滤器时,用气枪除掉风扇表
面的灰尘。
(b)不清扫过滤器,会成为故障的原因。
料车部的冷却风扇料车部的冷却风扇
料车部的冷却风扇料车部的冷却风扇
料车部的冷却风扇 3M33
每三个月 清扫
请用吸尘器清扫冷却风扇过滤器的上部以及下部
的防护网。
Note

0409-002 1-45
(27)(27)
(27)(27)
(27)
L/RL/R
L/RL/R
L/R
传送带部传送带部
传送带部传送带部
传送带部
Fig.4A58Fig.4A58
Fig.4A58Fig.4A58
Fig.4A58
(28)(28)
(28)(28)
(28)
排气清洁器排气清洁器
排气清洁器排气清洁器
排气清洁器
1 .31 .3
1 .31 .3
1 .3
维护保养部位维护保养部位
维护保养部位维护保养部位
维护保养部位
齿轮部齿轮部
齿轮部齿轮部
齿轮部
6M10
每六个月 注油 (NEW MOLYNOC GREASE No.1)
请用棉纱擦去原有的润滑油,用手或刷子涂刷新的润滑
油。
螺丝钉部螺丝钉部
螺丝钉部螺丝钉部
螺丝钉部 6M9
每六个月 注油(DAPHNE EPONEX
GREASE No.1)
请用棉纱擦去原有的润滑油,用手或刷
子涂刷新的润滑油。
滚珠花键滚珠花键
滚珠花键滚珠花键
滚珠花键 6M8
每六个月 注油 (NEW MOLYNOC GREASE No.1)
请用棉纱擦去原有的润滑油,用手或刷子涂刷新的润滑
油。
LL
LL
L
传送带部传送带部
传送带部传送带部
传送带部
XYXY
XYXY
XY
工作台部工作台部
工作台部工作台部
工作台部
RR
RR
R
传送带部传送带部
传送带部传送带部
传送带部
过滤器过滤器
过滤器过滤器
过滤器 6M12
每六个月 更换 / 清扫
• 拆卸油箱及螺母,更换过滤器。
• 请用棉纱擦去残留在油箱内的油。
螺母螺母
螺母螺母
螺母
油箱油箱
油箱油箱
油箱

1 .41 .4
1 .41 .4
1 .4
维护维护
维护维护
维护
保保
保保
保
养方法养方法
养方法养方法
养方法
1.4.11.4.1
1.4.11.4.1
1.4.1
气源气源
气源气源
气源
(1) 取出排放物的方法
准备容器,按各过滤器箱下部的按钮,可以将箱内滞留的排放
物( 污水,有时混有油) 取出。
Fig.4A60Fig.4A60
Fig.4A60Fig.4A60
Fig.4A60
(2) 过滤器的拆卸与安装方法
如上图所示按住按钮,对准向上三角形,向下拔出外箱。对准
反向三角形,就能锁紧。
拆卸外箱,将中间的过滤器左转可以拆卸过滤器。
安装时候进行反向操作即可。
(3) 过滤器清扫
每三个月清扫一次或受污时用气枪清扫。
1 .41 .4
1 .41 .4
1 .4
维护维护
维护维护
维护
保保
保保
保
养方法养方法
养方法养方法
养方法
0409-002 1-46
按住此处并转动,按住此处并转动,
按住此处并转动,按住此处并转动,
按住此处并转动,
对准向上三对准向上三
对准向上三对准向上三
对准向上三
角角
角角
角
形形
形形
形
,,
,,
,
向下拔出向下拔出
向下拔出向下拔出
向下拔出。
按此按钮,按此按钮,
按此按钮,按此按钮,
按此按钮,
排放物从下方排出排放物从下方排出
排放物从下方排出排放物从下方排出
排放物从下方排出
。