SP60P-L Mechanical - 第62页
4-F 基 板 位置 決 めリフト (L) Bo ar d Pos itio ni ng L if t( L) パーツレイアウト Kit N o . キット品 番 Kit N am e キット名称 KXF X03BRA00 セクションNo. PARTS LAYOUT Section No. - - M37 ( KKXFX03BRA00-07-6 )

Ref
No.
Remarks
R
1
Q'ty
4-E
基
板
位置
決
めリフト(L)
Board Positioning Lift(L)
イラスト
No.
Part No.
品 名品番 数量
R
2
パーツリスト
Kit N
o
.
キット品
番
Kit Name
キット名称
KXFX03BRA00
Part Name
備 考
セクションNo.
PARTS LIST
Section No.
R
3
STOPPER
2
1 KXFB00CSA00
COLLAR
4
2 KXFB00CQA00
PLATE
1
3 KXFB037EB02
TABLE
1
4 KXFB037FB01
PLATE
4
5 KXFB00DKA00
SET-COLLAR
4
6 KXFB04ALA02
BOLT
4
7 KXFB04C9A00
NUT
13
8 KXFB009DA01
PW003C1
1
9 KXFB009CA00
DOG
1
10 KXFB033LB00
BALL-SCREW
3
11 N510019489AA MBF1402-3.7RRGT+121.5LC3(B)(31846657K000)
BALL-SCREW
1
12 N510019490AA MBF1402-3.7RRGT+159.5LC3(B)(31226809K030)
WASHER
4
13 KXF0DWS6A00 URWH35-16-10
WASHER
2
14 KXF0DZFJA00 WSSB25-8-3
LINEAR-WAY
1
15 N510019499AA LWHS15C1R525BEG93
SENSOR
1
16 KXF07JRAA00
A
PM-L53-C1
SHAFT
4
17 KXF0E1M8A00 KTBI-20UU+KTBW-20UU/20-222L(DDA)
BEARING
4
18 KXF00K6AA00 6004ZZ
COLLAR
2
19 KXF0DWSJA00 NCLBH10-20-24
WASHER
2
20 KXF0DWSKA00 WSSB25-10-2
BOLT
2
21 KXF0DWSLA00 RCB10-70
T-BELT
1
22 KXF0E0RZA00 2115-5GT-15(DDA)
SPACER
2
23 N510017067AA ASF-460E
SCREW
2
24 N510018431AA
Hexagon socket set screw Flat point M4X16-45H A2J
BOLT
1
25 N510018856AA
Hexagon head bolt Best class M4X25-6g 4T A2J (Trivalent) Full thread
BOLT
1
26 N510018858AA
Hexagon head bolt Best class M4X35-6g 4T A2J (Trivalent) Full thread
LINEAR-WAY
1
27 N510019500AA LWHS15C1R525BEG94
M36
--
( KKXFX03BRA00-07-5 )

4-F
基
板
位置
決
めリフト(L)
Board Positioning Lift(L)
パーツレイアウト
Kit N
o
.
キット品
番
Kit Name
キット名称
KXFX03BRA00
セクションNo.
PARTS LAYOUT
Section No.
--
M37
( KKXFX03BRA00-07-6 )

Ref
No.
Remarks
R
1
Q'ty
4-F
基
板
位置
決
めリフト(L)
Board Positioning Lift(L)
イラスト
No.
Part No.
品 名品番 数量
R
2
パーツリスト
Kit N
o
.
キット品
番
Kit Name
キット名称
KXFX03BRA00
Part Name
備 考
セクションNo.
PARTS LIST
Section No.
R
3
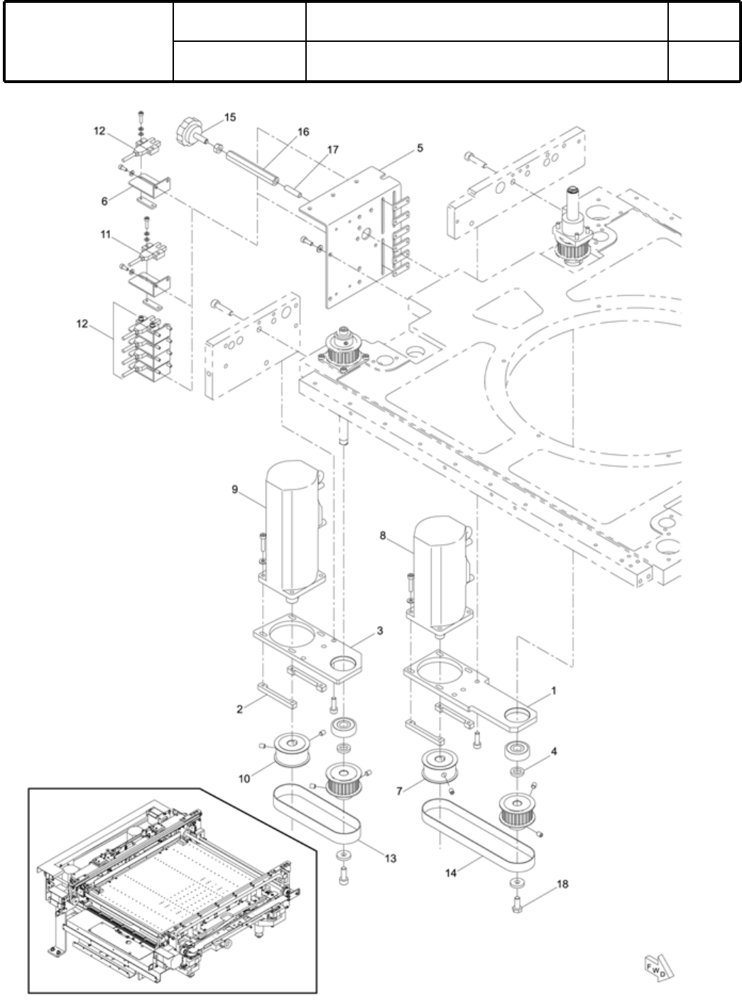
PLATE
1
1 KXFB032LB00
NUT
4
2 KXFB00D8A00
PLATE
1
3 KXFB032NB00
COLLAR
2
4 KXFB03RPB00
BRACKET
1
5 KXFB033MA01
BRACKET
6
6 KXFB01XPA01
T-PULLEY
1
7 KXF0DWY0A00 P25-5GT-15-33F(DA KXF0DWY0A00)
MOTOR
1
8 KXF0DZELA00
S
MSMA022P1F(DDA)
MOTOR
1
9 KXF0DZEMA00
S
MSMA042P1F(DDA)
T-PULLEY
1
10 KXF0DY8PA00 P25-5GT-15-33F(DA KXF0DY8PA00)
SENSOR
1
11 KXF07B1AA00
A
PM-K53-C1
SENSOR
6
12 KXF07B0AA00
A
PM-K53B-C1
T-BELT
1
13 KXF0E08GA00 300-5GT-15(DDA)
T-BELT
1
14 KXF0E08HA00 390-5GT-15(DDA)
KNOB
2
15 KXF0DX4TA00 NHM6-20
SPACER
2
16 N510017075AA ASF-680E
SCREW
2
17 N510018452AA
Hexagon socket set screw Flat point M6X25-45H A2J (Trivalent)
BOLT
1
18 KXF0DZG9A00 RCB6-15
M38
--
( KKXFX03BRA00-07-6 )