N7202A066B - 第26页
1-B 本体部:NPM-WX Main Body :NPM-W X パーツレイアウト Kit No. キット 品番 Kit Name キット名称 MTKA013477AA セクションNo. PARTS LAYOUT Section No. - - S3 ( KMTKA013477AA-10-2 )

Ref
No.
Remarks R
1
Q'ty
1-A
本体部:NPM-WX
Main Body:NPM-WX
イラスト
No.
Part No.
品 名品 番 数量
R
2
パーツリスト
Kit No.
キット品番
Kit Name
キット名称
MTKA013477AA
Part Name
備 考
セクションNo.
PARTS LIST
Section No.
R
3
FILTER
1
1 N210097217AA PS/300
BRACKET
1
2 MTPB001677AA
COVER
2
3 MTPB018369AA
COVER
2
4 MTPB018370AA
COVER
2
6 MTPB008345AC
COVER
1
7 MTPB008343AB
BRACKET
4
8 MTPB003617AC
BRACKET
4
9 MTPB002957AA
BRACKET
1
10 MTPB008596AD
PLATE
1
11 MTPB002963AA
COVER
1
12 MTPB018371AA
COVER
1
13 MTPB018372AA
COVER
1
14 MTPB008344AB
FRAME
1
15 MTKP004415AK
JOINT
4
16 N510066464AA KQ2H06-00A
JOINT
4
17 N510066700AA KQ2H08-00A
SCREW
56
18 N510018285AA
Cross recessed Truss head machine screw M5X10-4.8 A2S (Trivalent)
SENSOR
2
19 N510042548AA
S
E3ZS-T81A-1
PIN
55
20 N510020618AA MMS6-15
SCREW
28
21 N510018305AA
Cross recessed Truss head machine screw M6X10-4.8 A2S (Trivalent)
CABLE-SUPPORT
154
22 MTNW000950AA FT11-N
SPACER
2
23 MTNK003510AA AMP-413E
SPACER
2
24 MTNK003131AA C-813
S2
--
( KMTKA013477AA-10-1 )

1-B
本体部:NPM-WX
Main Body:NPM-WX
パーツレイアウト
Kit No.
キット品番
Kit Name
キット名称
MTKA013477AA
セクションNo.
PARTS LAYOUT
Section No.
--
S3
( KMTKA013477AA-10-2 )

Ref
No.
Remarks R
1
Q'ty
1-B
本体部:NPM-WX
Main Body:NPM-WX
イラスト
No.
Part No.
品 名品 番 数量
R
2
パーツリスト
Kit No.
キット品番
Kit Name
キット名称
MTKA013477AA
Part Name
備 考
セクションNo.
PARTS LIST
Section No.
R
3
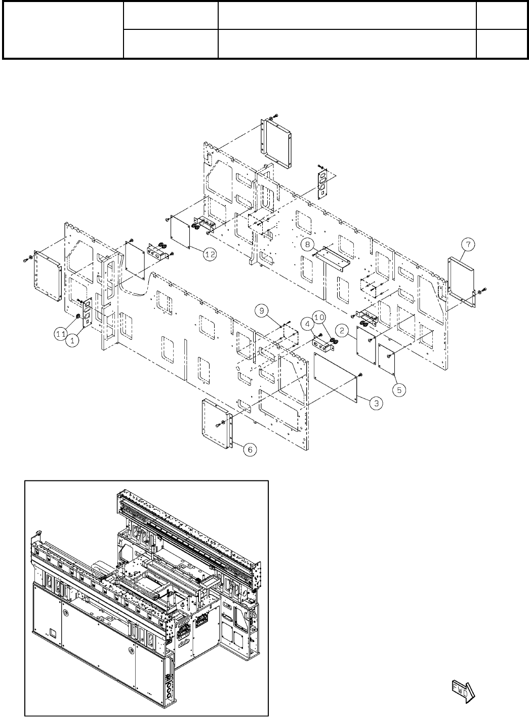
BRACKET
2
1 N210142889AE
COVER
2
2 MTPB011113AC
COVER
1
3 MTPB011114AB
BRACKET
4
4 MTPB003577AA
COVER
1
5 N210199712AA
COVER
3
6 MTPB018901AB
COVER
1
7 MTPB008594AA
BRACKET
1
8 MTPB008591AB
SPACER
12
9 N510021006AA CF-407E
JOINT
8
10 N510066694AA KQ2E06-00A
GROMMET
1
11 N510058982AA C-30-SG-20A-EP-UL
COVER
1
12 MTPB019898AA
S4
--
( KMTKA013477AA-10-2 )