N7202A066B - 第271页
Ref No. Remarks R 1 Q'ty 6-A シングルコン ベア:NPM-WX Single Conveyor:N PM-W X イラスト No. Part No. 品 名 品 番 数量 R 2 パーツリスト Kit No. キット品番 Kit Name キット名称 MTKA009896AA Part Nam e 備 考 セク ショ ンNo . PARTS LIST Section No. R 3 GUIDE 4 …

6-A
シングルコンベア:NPM-WX
Single Conveyor:NPM-WX
パーツレイアウト
Kit No.
キット品番
Kit Name
キット名称
MTKA009896AA
セクションNo.
PARTS LAYOUT
Section No.
--
O33
( KMTKA009896AA-12-1 )

Ref
No.
Remarks R
1
Q'ty
6-A
シングルコンベア:NPM-WX
Single Conveyor:NPM-WX
イラスト
No.
Part No.
品 名品 番 数量
R
2
パーツリスト
Kit No.
キット品番
Kit Name
キット名称
MTKA009896AA
Part Name
備 考
セクションNo.
PARTS LIST
Section No.
R
3
GUIDE
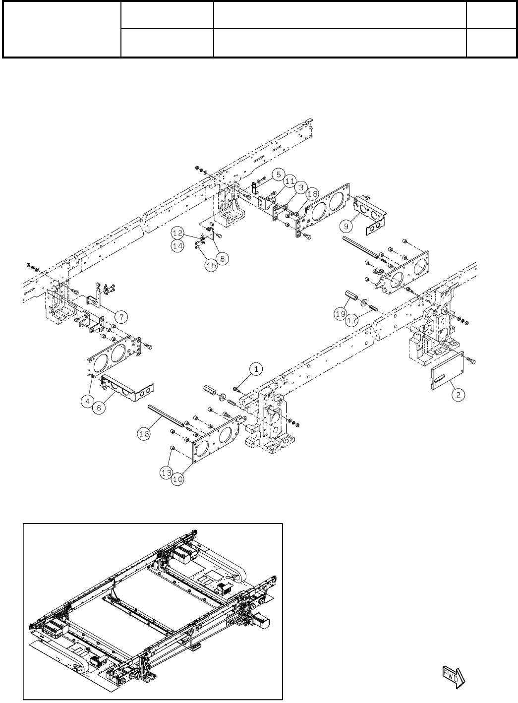
4
1 N210105097AC
GUIDE
4
2 N210105096AB
GUIDE
2
3 MTPA013949AB
GUIDE
1
4 MTPA013950AC
PLATE
1
5 MTPA014880AB
FRAME
1
6 MTPA013951AD
GUIDE
4
7 MTPA013953AC
GUIDE
4
8 MTPA013954AC
FRAME
1
9 MTPA013958AE
GUIDE
1
10 MTPA013959AC
PLATE
1
11 MTPA020312AA
GUIDE
2
12 MTPA020493AB
GUIDE
1
13 MTPA020494AD
GUIDE
1
14 MTPA020495AD
PLATE
1
15 MTPA020496AA
PLATE
1
16 MTPA020497AA
DUCT
1
17 MTPB012233AB
DUCT
1
18 MTPB012234AB
BRACKET
1
19 MTPB012290AC
BRACKET
1
20 MTPB013482AA
DUCT
2
21 MTPB013717AA
BRACKET
1
22 MTKP004318AC
BRACKET
1
23 MTKP004319AC
BRACKET
1
24 MTKP004600AE
BRACKET
1
25 MTKP004601AE
BRACKET
1
26 MTKP004315AC
BRACKET
1
27 MTKP004534AC
BRACKET
1
28 MTKP004638AC
BRACKET
1
29 MTKP004639AC
BOLT
38
30 N510067805AA
Ultra Low Head Cap Screw M3X6-8.8 A2J(Trivalent)
FIBER
2
31 N510060533AA CFT0351
BOLT
6
32 N510067779AA Low Head Cap Screw M5X12-8.8 A2J(Trivalent)
PIN
4
33 N510020607AA MMS5-10
FIBER
4
34 N510060532AA CFT0350
PIN
2
35 N986MMS410 MMS4-10
O34
--
( KMTKA009896AA-12-1 )

6-B
シングルコンベア:NPM-WX
Single Conveyor:NPM-WX
パーツレイアウト
Kit No.
キット品番
Kit Name
キット名称
MTKA009896AA
セクションNo.
PARTS LAYOUT
Section No.
--
O35
( KMTKA009896AA-12-2 )