N7202A066B - 第571页
Ref No. Remark s R 1 Q'ty 77-H 下受けピン自動交換ユニット:NPM-WXS Support Pin Automatic Change Unit:NPM -W XS イラスト No. Part No. 品 名 品 番 数量 R 2 パーツリスト Kit No. キット品番 Kit Name キット名称 MTKA020632AA Part Nam e 備 考 セク ショ ンNo . PARTS LIS…

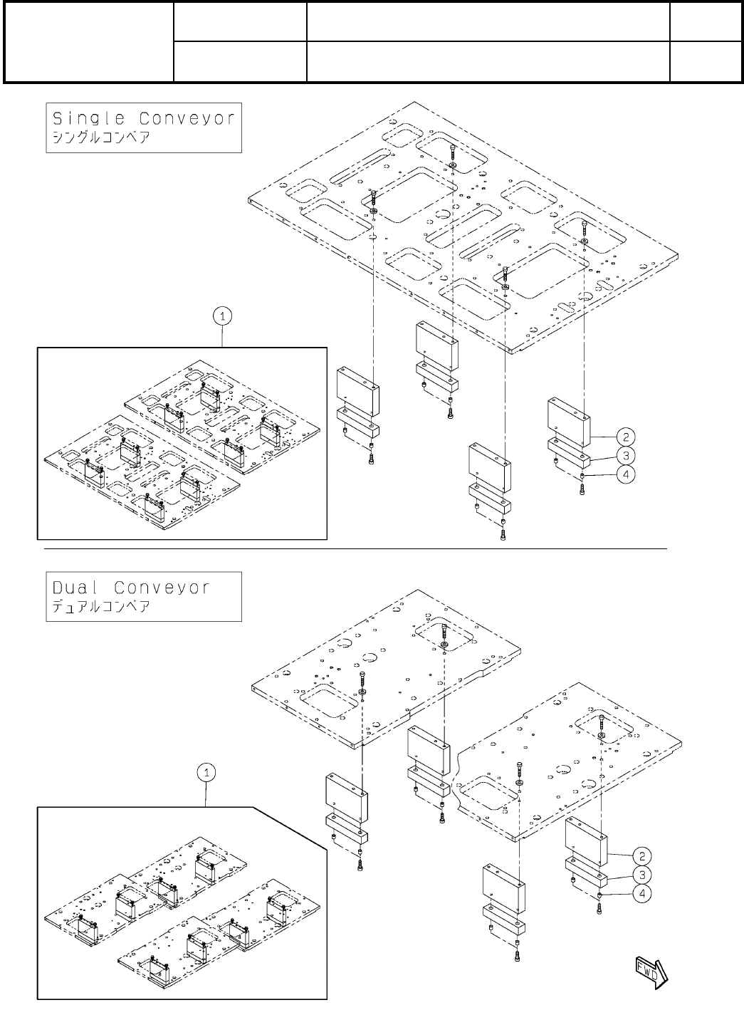
77-H
下受けピン自動交換ユニット:NPM-WXS
Support Pin Automatic Change Unit:NPM-WXS
パーツレイアウト
Kit No.
キット品番
Kit Name
キット名称
MTKA020632AA
セクションNo.
PARTS LAYOUT
Section No.
--
O333
( KMTKA020632AA-00-8 )

Ref
No.
Remarks R
1
Q'ty
77-H
下受けピン自動交換ユニット:NPM-WXS
Support Pin Automatic Change Unit:NPM-WXS
イラスト
No.
Part No.
品 名品 番 数量
R
2
パーツリスト
Kit No.
キット品番
Kit Name
キット名称
MTKA020632AA
Part Name
備 考
セクションNo.
PARTS LIST
Section No.
R
3
Stopper Unit
1
1 MTKA014251AA
PLATE
8
2 N210170479AB
STOPPER
8
3 N210170480AB
SPACER
16
4 N510050257AA CF-405ZE
O334
--
( KMTKA020632AA-00-8 )

78
交換台車支持部切替仕様(左側):NPM-WX
Feeder cart support changing unit(left side):NPM-WX
パーツレイアウト
Kit No.
キット品番
Kit Name
キット名称
MTKA021479AA
セクションNo.
PARTS LAYOUT
Section No.
--
O335
( KMTKA021479AA-02 )