NM-8224A,B,C PARTS LIST_ - 第25页
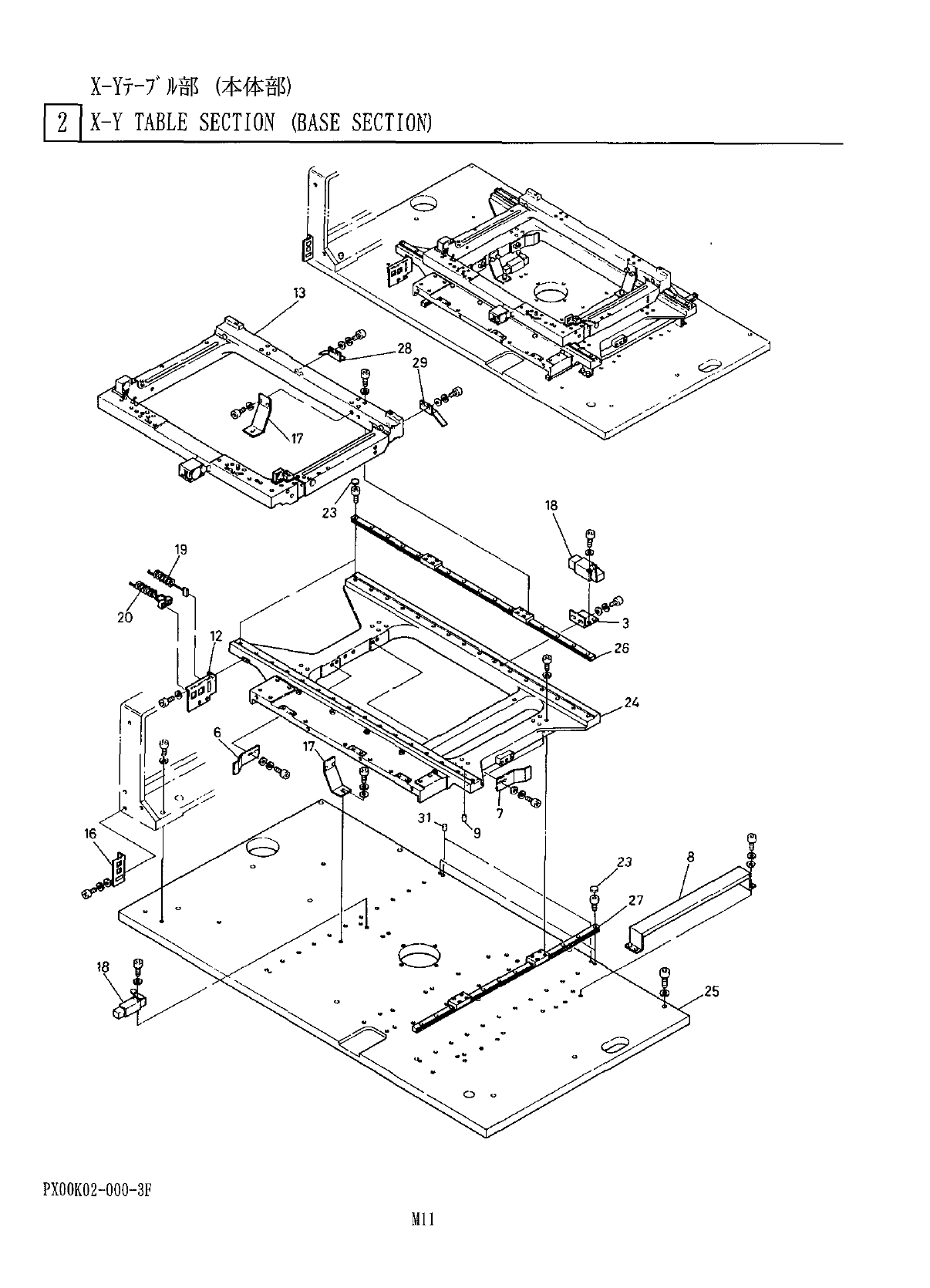
X - Y 于 - 部 ( 本体部 ) n X - Y TABLE SECTION ( BASE SECTION ) im 部 考 名 個 数 備 番 品 品 No . PART NAME Q ’ TY REMARKS REF PART No . No . W w 2 X 00 K 02020 BRACKET 3 m > 4 W I FT X 00 K 02023 - 1 DOG 6 YY X 00 K 02 Q 23 - 2 D…

X
-
Y
亍
-
71
部
(
本体部
)
yiX
-
Y
TABLE
SECTION
(
BASE
SECTION
)
PX
00
K
02
-
000
-
3
F

X
-
Y
于
-
部
(
本体部
)
n
X
-
Y
TABLE
SECTION
(
BASE
SECTION
)
im
部
考
名
個数
備
番
品
品
No
.
PART
NAME
Q
’
TY
REMARKS
REF
PART
No
.
No
.
W
w
2
X
00
K
02020
BRACKET
3
m
>
4
W
I
FT
X
00
K
02023
-
1
DOG
6
YY
X
00
K
02
Q
23
-
2
DOG
7
力
A
.
-
COVER
8
X
00
K
02024
YT
PIN
9
XPJ
4
C
10
FW
2
H
7
A
-
D
4
X
10
w
TO
11
WF
flM
12
X
00
K
02042
CONNECTOR
BRACKET
X
f
-
7
*
)
\
13
X
00
K
02048
X
-
TABLE
W
14
<
25
>
15
3
衬夕
-
7
’
丽
X
00
K
02100
CONNECTOR
BRACKET
16
2
7
'
7
^
7
F
BRACKET
17
X
00
K
0
H
01
2
安全
USTF
Myf
SAFETY
LIMIT
SWITCH
AT
0
-
11
-
1
-
I
/
R
18
N
300
AT
01111
R
2
O
i
-
r
(
Mi
)
CURL
CORD
(
Ml
)
N
330
X
000516
19
X
000
-
516
M
3
-
K
(
Dl
)
CURL
CORD
(
Ul
)
20
N
330
X
000508
X
00
Q
-
508
<
26
>
IT
22
<
27
>
hvf
ttirm
)
CAP
(
LM
GUIDE
)
23
N
513
C
4
56
C
4
X
00
K
02106
Y
T
-
r
^
Y
-
TABLE
24
X
00
K
02107
X
-
Y
f
-
t
A
V
-
7
,
X
-
Y
TABLE
BASE
25
LM
r
仆
.
26
X
00
K
02104
LM
GUIDE
I
IMTTF
27
X
00
K
02105
LM
GUIDE
2
FT
28
X
00
K
02109
DOG
29
X
00
K
02110
卜
’
夕
,
DOG
30
W
31
XPJ
8
A
25
FW
PIN
¥
M
6
A
-
D
8
X
25
PX
00
K
02
-
0
Q
0
-
3
F
M
12

X
-
Y
于
-
71
部
(
本体部
)
FI
X
-
Y
TABLE
SECTION
(
BASE
SECTION
)
V
011
V
009
V
012
VO
07
V
015
V
011
V
013
V
006
V
012
VO
1
V
014
V
013
V
001
V
007
PX
00
KQ
2
-
V
000
-
3
C
M
13