NPM-D 规格说明书 - 第65页
NPM-D 2010.0915 - 59 - 6. 其他标准规格 6.1 程序功能 数据编制都是在数据编制系统 NPM-DGS 进行。在 NPM-DGS 作成的生产数据,通过 LNB 下载于设备。 但是,部分数据修正也可在机器主体 上进行。 在设备主体修正的数据以及示教内容 被保存,可以再利用。 ※ NPM-DGS 用的硬件,请客户准备。 (NPM-DGS 是其他产品 。 ) 有关 NPM-DGS 的详细情况,请参照别册的「 NPM-D…

NPM-D 2010.0915
- 58 -
■ 基本规格
No. 项 目 内 容
1 通信手段 以太网通信
2 对应工作头 16 吸嘴贴装头、12 吸嘴贴装头、8 吸嘴贴装头、2 吸嘴贴装头、检查头
锡膏 计测锡膏位置,X 方向(补正量 dx)、Y 方向(补正量 dy)、角度方向(补正
量 d
θ)的补正量被前馈。
焊盘 计测焊盘位置,X 方向(补正量 dx)、Y 方向(补正量 dy)、角度方向(补正
量 d
θ)的补正量被前馈。
3 补正方向
2D 检查头(A) 分辨率 18 μm 2D 检查头(B) 分辨率 9 μm
锡膏 锡膏
芯片元件: 0.1 mm × 0.15 mm以上
(0603以上)
封装元件: φ0.15 mm 以上
芯片元件: 0.08 mm × 0.12 mm以上
(0402以上)
封装元件: φ0.12 mm 以上
元件 元件
4 补正对象
方形芯片 (0603 以上)、SOP、QFP(0.4 mm间
距以上)、BGA、CSP、铝电解电容器、可调电阻、
微调、线圈、连接器、网络电阻、三极管、二极
管、电感器、钽电容器、圆柱形芯片等。
方形芯片 (0402 以上)、SOP、QFP(0.3 mm 间
距以上)、BGA、CSP、铝电解电容器、可调电
阻、微调电容器、线圈、连接器、网络电阻、三
极管、二极管、电感器、钽电容器、圆柱形芯片
等。
5 补正元件点数
Max. 10 000 点/设备 (锡膏计测点数: Max. 30 000 点/设备)
芯片元件
补正量dθ
X坐标理论值
补正量dx
补正量dy
补正坐标
理论坐标
补正量dθ
补正量dy
补正量dx
X坐标理论值
芯片包元件

NPM-D 2010.0915
- 59 -
6.
其他标准规格
6.1
程序功能
数据编制都是在数据编制系统
NPM-DGS
进行。在
NPM-DGS
作成的生产数据,通过
LNB
下载于设备。
但是,部分数据修正也可在机器主体上进行。
在设备主体修正的数据以及示教内容被保存,可以再利用。
※
NPM-DGS
用的硬件,请客户准备。
(NPM-DGS
是其他产品。
)
有关
NPM-DGS
的详细情况,请参照别册的「
NPM-DGS
规格说明书」。
6.2
信号塔
信号灯的颜色和亮灯标准
信号灯
颜色
分 类
亮灯标准
红色
紧急停止错误
・ 电机等的轴异常
・ 空气压力下降
・ 基板支撑部异常
・ 贴装头故障
・ 编带故障
等
黄色
中途停止错误
・ 吸着错误
・ 贴装错误
・ 基板传送错误
・ 无工件
・ 吸嘴更换错误
等
绿色
运转中
自动运转等动力为
ON
时
(
但是,红色和黄色闪烁时熄灯
)
蓝色或者
红色
连接的设备中,成为瓶颈的设备
(
循环时间最长的设备
)
蓝色灯亮。
另外,按紧急停止开关,红色灯亮。
※亮灯规格,可以变更设定。
数据编制系统 NPM-DGS
设备设定 PCB 数据
元件数据
最佳化
生产数据
标准
:
横置
距离地面
1 514 mm
红
黄
绿
(
蓝色或者红色
)
红
黄
绿
距离地面
1 629 mm
也可以纵置。
高度从地面起是
1 629 mm
。
(
蓝色或者红色
)

NPM-D 2010.0915
- 60 -
7.
印刷基板设计基准
7.1
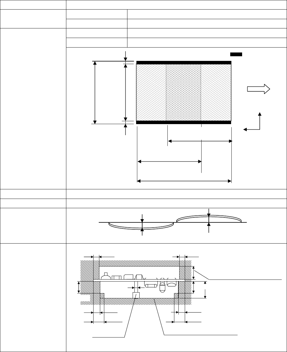
印刷基板规格概要(双轨传送带)
项 目
规 格
能够使用的基板尺寸
双轨模式
Min. 50 mm × 50 mm
~
Max. 510 mm × 300 mm
单轨模式
Min. 50 mm × 50 mm
~
Max. 510 mm × 590 mm
贴装
/
检查可能范围
双轨模式
Min. 50 mm × 43 mm
~
Max. 510 mm × 293 mm
单轨模式
Min. 50 mm × 43 mm
~
Max. 510 mm × 583 mm
基板厚度
0.3 mm
~
8.0 mm
基板的重量
最大
1.5
㎏以下
※
2
基板弯曲容许
贴装前基板状态
※
1
上面实装死角小于
3.5 mm
的情况时,请另行联络。
※
2
基板重量
(
包括载体重量
)
超过
1.5
㎏的情况时,请另行联络。
※ 有关陶瓷基板的对应请另行联络。
28 mm
22 mm
4 mm
4 mm
7 mm
7 mm
22 mm
3.5 mm
※
1
3.5 mm
※
1
φ
3
最大
0.5 mm
基板断面
最大
0.5 mm
禁止有元件的范围
16
吸嘴贴装头
:
最大
6.5 mm
12
吸嘴贴装头
:
最大
6.5 mm
8
吸嘴贴装头
:
最大
12 mm
2
贴头
吸嘴 装
:
最大
28 mm
支撑销
(
设置在与背面元件距离隔开
2 mm
以上的位置。
)
分割实装时的贴装范围
350 mm
基板流向
Y
X
固定侧
双轨模式
43 mm
~
293 mm
单轨模式
43 mm
~
583 mm
3.5 mm
3.5 mm
双轨模式
50 mm
~
300 mm
单轨模式
50 mm
~
590 mm
50 mm
~
510 mm
禁止有元件的范围
3.5 mm
※
1
※
1
分割实装时的贴装范围
350 mm