SM411 Technical Reference(User)-Distribution - 第78页
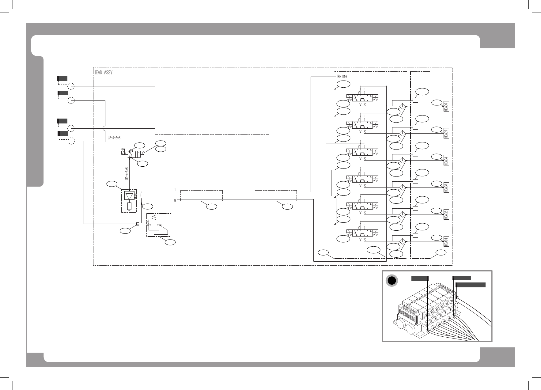
Page SAMSUNG TECHWIN 78 SM411 A ir Ass ’y (D ) Front Gantry Air Module Rear Gantry Air Module HEAD ASSY U2-4-8*5 8 U2-4-8*5 1 HEAD1 HEAD2 HEAD5 HEAD3 HEAD4 HEAD6 No use A 2 3 1 3 A 1 2 A 2 3 1 A 2 3 1 1 3 A 2 A 2 3 1 9 D…

Page
SAMSUNG TECHWIN
77
S M411
A
ir Ass’y (C)
NO. PARTNO. PARTNAME Q'TY TYPE REMARK
1 J6702050A
SOLVALVEMODULE 2
1-A J6704006A
MANIIFOLDBLOCK 1
1-B J67021005A
SOLVALVE 5
1-C J6705004A
SILENCER 2
1-D J6711157A
FITTING 1
1-E J6703031A
SPEEDCONTROLLER 3
1-F J1300279
FITTING 6
2 J6709004A
REGULATOR 1
3 J1301188
FITTING 5
4
J67011007A EDGECYLINDER 1
5 J66061005A CYLINDER 1
6 J6711156A HOSENIPPLE[M-5H-4](D/C용) 1
7 J1300121 ELBOWFITTING 1
8 J6711001A ELBOWFITTING 2
9
J6701018B STOPPERCYLINDER1 1
10 J6703007A THROTTLEVALVE(ELBOW) 1
11 J90561001A ANCASSY 1
12
J6703028A SPEEDCONTROLLER 3
13 J67011016A AIRCYLINDER 1
14
J67010088B CYLINDER 1
15
J6711028A ELBOWFITTING 2
16
17
18
19
20
21
P art L is t

Page
SAMSUNG TECHWIN
78
SM411
Air Ass’y (D)
Front Gantry Air Module
Rear Gantry Air Module
HEAD ASSY
U2-4-8*5
8
U2-4-8*5
1
HEAD1 HEAD2 HEAD5HEAD3 HEAD4 HEAD6
No use
A2
31
3
A
1
2
A2
31
A2
31
1 3
A2
A2
31
9
D1
D3
D2
D4
2
2
10
6
11
12
9
3
4
1-B
1-D
1-E
1-A
1-A
1-B
1-A
1-B
1-A
1-B
1-A
1-B
1-A
3-A
3-A
3-A
3-A
3-A
3-A
1-B
1-C
1-D
1-E
1-D
1-E
1-D
1-E
1-D
1-E
1-D
1-E
2
2
2
2
2
7
8
12
13
#Head1
#Head6
G E NE R AT OR

Page
SAMSUNG TECHWIN
79
SM411
Air Ass’y (D)
NO. PART NO. PART NAME Q'TY TYPE REMARK
1 J90551067A
AIR MODULE 1
J90551067A
1-A J6711260A
ONE TOUCH FITTING 7
1-B J6702048A
SOLENOID VALVE 6
1-C J6711261A
ONE TOUCH FITTING 1
1-D J6708021A
VACUUM FILTER 6
1-E J6711262A
MINI FITTING 6
2
J6711180B ROTARY JOINT 6
3
J9060412A HEAD VACUUM SENSOR SUB B/D 1 J9060412A
3-A
J3204002A PRESSURE SENSOR 6
4
J6711157A ELBOW FITTING 1
5
J6711140A STRAIGHT FITTING 1
6
J6712008A PLUG 3
7 J90831263A HEAD1_AIR_SOL_PWR_CABLE_ASSY
1
SM33-CV027-1
J91671109A HEAD2_AIR_SOL_PWR_CABLE_ASSY
1
8
J6702021A SOLENOID VALVE 1
9
J67071009A VACUUM GENERATOR 1
10
J6711119A UNION Y FITTING 16
11
J6709019A REGULATOR 1
12
J6713048A MULTI TUBE 4
13
J6711104A STRAIGHT FITTING 1
14
15
16
17
18
19
20
P art L is t