SM411 Technical Reference(User)-Distribution - 第88页
Page SAMSUNG TECHWIN 88 SM411 C on ve yor B oar d Int er fac e (1/ 5) 1 3 2 1 3 2 I/F BOARD +24V GND GND +24V /IO_RESET +24G +12G +12V CAN_H CAN_L CAN_H CAN_L /IO_RESET +24G +12G +12V 4 5 6 4 5 6 4P CN4P 6P CN3P 4 5 6 4 …

Page
SAMSUNG TECHWIN
87
SM411
Rear Feeder Board Interface
NO. PART NO. PART NAME Q'TY TYPE REMARK
1 J90800840B FDR INPUT EXT CABLE ASS'Y SM_FD005
2
J90831030A RFDR-REAR FLAT CAN CABLE ASSY SM33-CA005
3
J90831028A MASTER CPU2-RFDR CAN CABLE ASSY SM33-CA003
4
J9083199A REAR FDR CTRL PWR CABLE ASSY SM21-FD002
5 J9080838A LEFT FDR SOL OUTPUT CABLE ASS'Y SM_FD003
6 J9080839A RIGHT FDR SOL OUTPUT CABLE ASS'Y SM_FD004
7 J9080841A LEFT FDR SENSOR INPUT CABLE ASS'Y SM_FD006
8 J9080842A RIGHT FDR SENSOR INPUT CABLE ASS'Y SM_FD007
9
10
11
12
13
14
15
16
17
18
19
20
21
22
23
24
25
26
27
P art L is t

Page
SAMSUNG TECHWIN
88
SM411
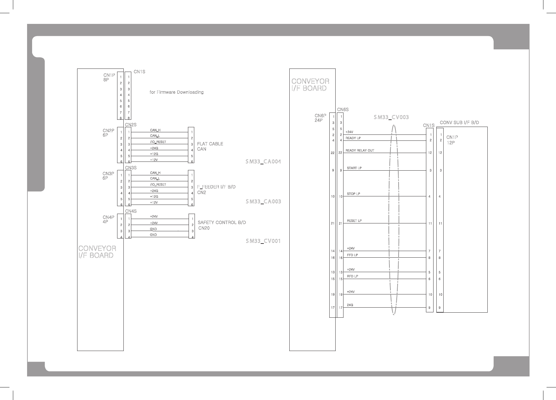
Conveyor Board Interface (1/5)
1
3
2
1
3
2
I/F BOARD
+24V
GND
GND
+24V
/IO_RESET
+24G
+12G
+12V
CAN_H
CAN_L
CAN_H
CAN_L
/IO_RESET
+24G
+12G
+12V
4
5
6
4
5
6
4P
CN4P
6P
CN3P
4
5
6
4
5
6
11
3
4
2
3
4
2
CN4S
2
2
3
3
CN3S
1
1
6P
CN2P
3
3
CN2S
1
2
1
2
8
7
6
6
8
7
4
5
4
5
4
5
6
3
4
5
6
2
1
F_FEEDER I/F B/D
CN2
3
2
1
FLAT CABLE
CAN
CONVEYOR
8P
CN1P
CN1S
CONVEYOR
I/F BOARD
CN6S
CN6P
24P
READY LP
S M33_C A 004
S M33_C A 003
S M33_C V 001
CN20
2
4
3
1
SAFETY CONTROL B/D
READY RELAY OUT
22
4
3
5
2
1
22
4
3
5
2
1
START LP
STOP LP
9
9
10
10
21
21
RESET LP
+24V
14
14
16
16
FFD LP
13
13
+24V
RFD LP
15
15
+24V
19
19
17
17
24G
CONV SUB I/F B/D
2
12
3
4
11
7
8
5
6
10
9
1
9
10
6
5
8
7
11
4
3
12
2
1
+24V
CN1S
CN1P
12P
S M33_C V 003
for Firmware Downloading

Page
SAMSUNG TECHWIN
89
SM411
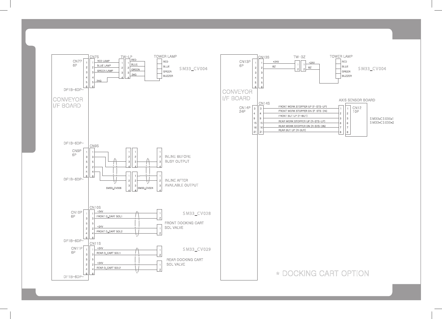
Conveyor Board Interface (2/5)
GREEN
24G
22
4
3
4
3
1
RED
BLUE
1
BLUE
GREEN
TOWER LAMP
RED
24G
RED LAMP
BLUE LAMP
GREEN LAMP
S M33_C V 004
BUZZER
+24V
FRONT D_CART SOL1
+24V
REAR D_CART SOL1
1
2 2
1
+24V
BZ
BUZZER
RED
TOWER LAMP
GREEN
BLUE
S M33_C V 004
+24V
BZ
+24V
FRONT D_CART SOL2
+24V
REAR D_CART SOL2
CN14S
CN13S
CN11P
6P
33
4
4
6
6
2
5
2
5
CN11S
1 1
22
CONVEYOR
I/F BOARD
CN10P
CN9P
6P
6P
CN9S
CN10S
4
3
2
4
3
2
33
1
4
1
4
1
2
1
2
4
5
6
4
5
6
3 3
CN7P
6P
CN7S
1 1
CONVEYOR
I/F BOARD
2
INLINE AFTER
INLINE BEFORE
24P
CN14P
5
6
3
4
6P
CN13P
1
2
5
6
3
4
1
5
3
5
3
4
6
4
6
2
2
1 1
11
2
2
6
4
6
4
3
5
3
5
BUSY OUTPUT
AVAILABLE OUTPUT
DF1B-6DP-
DF1B-6DP-
DF1B-6DP-
DF1B-6DP-
DF1B-6DP-
TW-LP
2
1
FRONT DOCKING CART
SOL VALVE
REAR DOCKING CART
SOL VALVE
2
1
* DOCKING CART OPTION
SM33_CV006 SM33_CV024
S M33_C V 028
S M33_C V 029
TW-BZ
1
2
1
2
3
4
2
1
3
4
2
1
21
16
15
4
9
3 3
4
9
15
16
21
FRONT BUT UP (F-BUT)
REAR WORK STOPPER UP (R-STS-UP)
REAR WORK STOPPER DN (R-STS-DN)
FRONT WORK STOPPER UP (F-STS-UP)
FRONT WORK STOPPER DN (F-STS-DN)
REAR BUT UP (R-BUT)
1
2
3
6
7
8
AXIS SENSOR BOARD
CN12
8
7
6
1
2
3
10P
S M33-C S 035-2
S M33-C S 035-1