N7202A047B.pdf - 第447页
Ref No. Remark s R 1 Q'ty 102 ドロワコネクタ部: NPM-W Draw er connector:N PM-W イラストNo. Part No. 品 名 品 番 数量 R 2 パーツリスト Kit No. キット品番 Kit Nam e キット名称 N610130153A B Part Nam e 備 考 セクションN o. PARTS LIST Section No. R 3 SPRI NG 4…

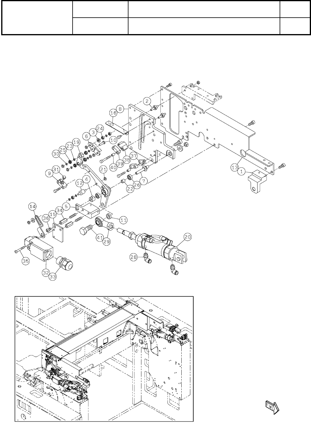
102
ドロワコネクタ部:NPM-W
Drawer connector:NPM-W
パーツレイアウト
Kit No.
キット品番
Kit Name
キット名称
N610130153AB
セクションNo.
PARTS LAYOUT
Section No.
-
-
O319
( FN610130153AB-01 )
LAYOUT

Ref No. Remarks R
1
Q'ty
102
ドロワコネクタ部:NPM-W
Drawer connector:NPM-W
イラストNo.
Part No.
品 名品 番 数量
R
2
パーツリスト
Kit No.
キット品番
Kit Name
キット名称
N610130153AB
Part Name
備 考
セクションNo.
PARTS LIST
Section No.
R
3
SPRING
4
P001 MTPA037280AA
PLATE
1
P601 N210139652AC
PLATE
1
P602 N210105679AC
PLATE
2
P603 N210105682AA Parts for IPO
SPACER
2
N001 N510030912AA CB-314E
COUPLER
1
N002 N510056985AA MA-MS-SCS4-06(CS35876-0)
SPACER
4
N003 N510017038AA 3382330-90160
BOLT
4
N004 N510032414AA MMSB10-85
BOLT
0
N510060712AA TSB10-85
BOLT
2
N006 N510000312AA
Hexagon socket button head screw M3X30 Steel Black oxide finish 12.9
SPACER
2
N007 N510029521AA CF-325E
NUT
4
N009 N510057297AA M8-6H-4T A2J
TUBE
4
N611 N510049309AA AWG12/16 300V VW-1(BLACK)
O320
-
-
( FN610130153AB-01 )

103-A
可動カバー:NPM-W2
Movable Cover:NPM-W2
パーツレイアウト
Kit No.
キット品番
Kit Name
キット名称
N610152434AA
セクションNo.
PARTS LAYOUT
Section No.
-
-
O321
( KN610152434AA-14-1 )
LAYOUT