N7202A047B.pdf - 第450页
103-B 可動カバ ー:NPM-W2 M ovable Cov er:NPM -W 2 パーツレイアウト Kit No. キット品番 Kit Name キット名称 N610152434A A セクシ ョンNo. PARTS LAYO UT Section No. - - O323 ( KN610152434 AA-14-2 ) LAYOUT

Ref No. Remarks R
1
Q'ty
103-A
可動カバー:NPM-W2
Movable Cover:NPM-W2
イラストNo.
Part No.
品 名品 番 数量
R
2
パーツリスト
Kit No.
キット品番
Kit Name
キット名称
N610152434AA
Part Name
備 考
セクションNo.
PARTS LIST
Section No.
R
3
BRACKET
1
1 N210178916AB
PIN
2
2 N210178918AA
COLLAR
2
3 N210178920AA
NUT
1
4 N210193319AB
BLOCK
1
5 N210194619AC
PLATE
1
6 MTPA002389AA
SHAFT
1
7 N210201218AB
CAM
1
8 MTPA002492AB
BLOCK
1
9 N210201228AA
PIN
1
10 MTPA002505AA
COLLAR
1
11 MTPA002506AA
PIN
1
12 MTPA002590AB
BRACKET
1
13 N210178926AD
LEVER
1
14 MTPB001436AD
PLATE
1
15 MTPB001459AC
COVER
1
16 MTPB001506AA
LEVER
1
19 MTKP000445AC
CYLINDER (1000mm)
1
20 MTKP001706AA
NUT
7
21 N510017859AA
Hexagon nut Type-3 Best class M4-6H-4T A2J (Trivalent)
SPACER
1
22 N510068748AA CU-607PH
SPACER
1
23 N510034994AA
BEARING
5
24 N510022701AA MR84ZZ
BEARING
4
25 KXF03YBAA00 MF84ZZMC3
BEARING
2
26 N510013601AA 686AZZ
JOINT
2
28 N510066470AA KQ2L06-01AS
ROD-END
1
29 MTNB000088AA NHS10T P1.25
SHIM
8
30 N510069632AA BRF004006010
STOPPER
1
31 N510036432AA SPM-M4
SWITCH
1
32 N510055356AA
S
D4NH-1DBC
JOINT
1
33 KXF06F4AA00 53015030-WM
CABLE-SUPPORT
0
MTNW000672AA P13512
SPACER
2
34 N510019897AA ASF-520E
BOLT
2
35 N510001582AA SRBS-M4X30
BOLT
2
36 N510000282AA SRBS-M5X10
BLOCK
1
37 MTPA006224AA
BLOCK
1
38 MTPA006225AA
STOPPER
2
39 MTPA006226AA
SPACER
4
40 N510008934AA
BOLT
1
41 N510017677AA
Hexagon head bolt Best class M10X25-6g 4T A2J (Trivalent)
O322
-
-
( KN610152434AA-14-1 )

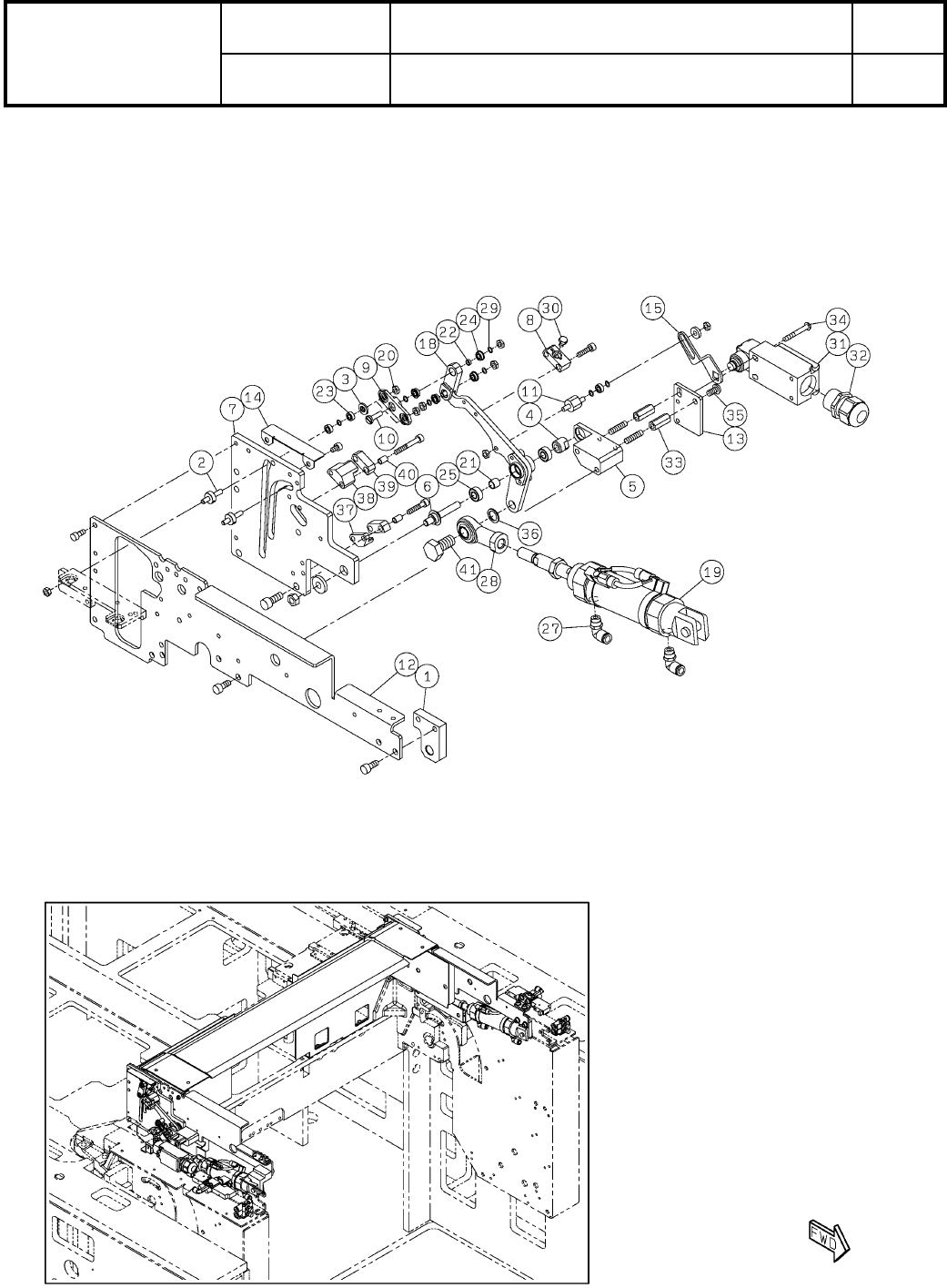
103-B
可動カバー:NPM-W2
Movable Cover:NPM-W2
パーツレイアウト
Kit No.
キット品番
Kit Name
キット名称
N610152434AA
セクションNo.
PARTS LAYOUT
Section No.
-
-
O323
( KN610152434AA-14-2 )
LAYOUT

Ref No. Remarks R
1
Q'ty
103-B
可動カバー:NPM-W2
Movable Cover:NPM-W2
イラストNo.
Part No.
品 名品 番 数量
R
2
パーツリスト
Kit No.
キット品番
Kit Name
キット名称
N610152434AA
Part Name
備 考
セクションNo.
PARTS LIST
Section No.
R
3
BRACKET
1
1 N210178917AB
PIN
2
2 N210178918AA
COLLAR
2
3 N210178920AA
NUT
1
4 N210193319AB
BLOCK
1
5 N210193318AC
SHAFT
1
6 N210201218AB
CAM
1
7 MTPA002493AB
BLOCK
1
8 N210201228AA
PLATE
1
9 MTPA002390AA
PIN
1
10 MTPA002505AA
PIN
1
11 MTPA002590AB
BRACKET
1
12 N210178925AD
PLATE
1
13 MTPB001459AC
COVER
1
14 MTPB001506AA
LEVER
1
15 MTPB002142AC
LEVER
1
18 MTKP000444AC
CYLINDER (1000mm)
1
19 MTKP002243AA
NUT
7
20 N510017859AA
Hexagon nut Type-3 Best class M4-6H-4T A2J (Trivalent)
SPACER
1
21 N510068748AA CU-607PH
SPACER
1
22 N510034994AA
BEARING
5
23 N510022701AA MR84ZZ
BEARING
4
24 KXF03YBAA00 MF84ZZMC3
BEARING
2
25 N510013601AA 686AZZ
JOINT
2
27 N510066470AA KQ2L06-01AS
ROD-END
1
28 MTNB000088AA NHS10T P1.25
SHIM
8
29 N510069632AA BRF004006010
STOPPER
1
30 N510036432AA SPM-M4
SWITCH
1
31 N510055356AA
S
D4NH-1DBC
JOINT
1
32 KXF06F4AA00 53015030-WM
SPACER
2
33 N510019897AA ASF-520E
BOLT
2
34 N510001582AA SRBS-M4X30
BOLT
2
35 N510000282AA SRBS-M5X10
SHIM
1
36 MTNK000355AA BRF010014100
BLOCK
1
37 MTPA006224AA
BLOCK
1
38 MTPA006225AA
STOPPER
2
39 MTPA006226AA
SPACER
4
40 N510008934AA
BOLT
1
41 N510017676AA
Hexagon head bolt Best class M10X20-6g 4T A2J (Trivalent)
O324
-
-
( KN610152434AA-14-2 )