MRF-L_MRF-LF-Rev06 - 第9页

- 6 - NOTE( 注記 ) #01....FOR MRF-LF MRF − LF 用 REF.NO NOTE PART NO D E S C R I P T I O N 品 名 Qty 1 401-20451 CUT UNIT L カットユニットL 1 2 #01 401-37581 CUT UNIT SNAP I N カットユニットスナップイン 1 3 401-20452 CUTTE R DRIVE UNIT L カッタードライ…

100%1 / 16
- 5 -
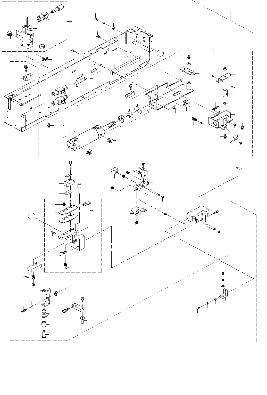
3. CUTTER UNIT COMPONENTS
カッターユニット関係
11
80
79
83
67
61
54
55
66
66
64
63
62
60
59
58
44
45
42
12
53
51
50
48
47
46
43
41
40
57
30
39
38
35
34
36
33
32
31
22
23
87
87
14
13
21
23
22
24
20
19
16
18
17
28
10
25
26
83
37
52
68
69
49
73
56
65
67
78
81
80
84
88
29
90
91
15
77
93
27
82
82
70
71
72
86
85
86
82
91
92
86
89
74
76
75
- 6 -
NOTE( 注記 ) #01....FOR MRF-LF MRF LF
REF.NO NOTE PART NO D E S C R I P T I O N
品 名
Qty
1 401-20451 CUT UNIT L
カットユニットL
1
2
#01
401-37581 CUT UNIT SNAP IN
カットユニットスナップイン
1
3 401-20452 CUTTER DRIVE UNIT L
カッタードライブユニットL
(1)
4 401-15868 CUT CYLINDER L
カットシリンダL
(1)
5 PJ-0460525-01 BARB ELBOW
バーブエルボ
(2)
6 SM-6050802-TN BOLT
六角穴ボルト
(4)
7 401-15854 CLAMP SLIDE BR L
クランプスライドブラケットL
(1)
8 E1120-706-C00 FREE LINK JOINT SCREW
フリーリンクジョイントスクリュウ
(1)
9 WP-1052001-SC WASHER 10
平座金みがき丸 M10
(1)
10 WS-1020002-KN SPRING WASHER M10
ばね座金 M10
(1)
11 NM-6540013-SB NUT M10X1.25 TYPE3
六角 ナット M10X1.25 3種
(1)
12 401-20453 CUT LINK ARM B ASSY L
カットリンクアームBアッシーL
(1)
13 401-18161 STOPPER CUT
ストッパカット
(1)
14 SL-6031092-TN SCREW M3 L=10
座金付き六角穴ボルト M3 L=10
(2)
15 WP-0531001-SC WASHER M5
平座金みがき丸 M5
(1)
16 SL-6030692-TN SCREW M3 L=6
座金付き六角穴ボルト M3 L=6
(1)
17 401-15830 CUT LINK ARM SUPPORT SH L
カットリンクアームサポートシャフトL
(1)
18 SL-6030892-TN SCREW M3 L=8
座金付き六角穴ボルト M3 L=8
(1)
19 401-15790 PRESSURE BR
プレッシャブラケット
(1)
20 E1120-706-C00 FREE LINK JOINT SCREW
フリーリンクジョイントスクリュウ
(1)
21 401-15791 LEAD CLAMP SP
リードクランプスプリング
(1)
22 401-17033 SP SH
スプリングシャフト
(2)
23 NM-6020001-SC NUT M2X0.4 TYPE1
六角ナット M2X0.4 1種
(2)
24 401-22531 CUTTER RETURN SP L
カッターリターンスプリングL
(1)
25 E1119-706-C00 FREE LINK CAP
フリーリンクキャップ
(1)
26 SM-1030501-SC SCREW M3 L=5
皿小ねじ M3 L=5
(1)
27 WP-0330816-SF WASHER 3.25X10X0.8
平座金 3.25X10X0.8
(1)
28 401-15852 C C SUPPORT BASE L
CCサポートベースL
(1)
29 401-20454 CUTTER UNIT L
カッターユニットL
(1)
30 401-44690 CUTTER_ASM_L
カッター組_L
(1)
31 401-44521 LEAD_CLAMP_F_L
リードクランプF_L
(1)
32 401-44520 CUT_BLADE_F_L
カットベースF_L
(1)
33 SL-6030692-TN SCREW M3 L=6
座金付き六角穴ボルト M3 L=6
(2)
34 401-44522 CUT_BLADE_M_L
カットブレイドM_L
(1)
35 401-15871 CUTTER SP L
カッタースプリングL
(1)
36 401-20457 CUTTER SP FIX COLLAR
カッタースプリングフィクスカラー
(1)
37 SM-8020202-UZ SCREW M2 L=2
止めねじ M2 L=2
(1)
38 PH-0300083-U0 PARALLEL PIN TYPE A 3X8
平行ピン A種 3X8
(2)
39 401-44519 CUT_BASE_L
カットベース_L
(1)
40 401-15787 CLAMP LINK ARM SH
クランプリンクアームシャフト
(1)
41 SL-6031292-TN SCREW M3 L=12
座金付き六角穴ボルト M3 L=12
(1)
42 WP-0330816-SF WASHER 3.25X10X0.8
平座金 3.25X10X0.8
(1)
43 401-17034 BEARING SH
ベアリングシャフト
(1)
44 401-17477 CLAMP ROLLER
クランプローラ
(1)
45 WP-0430801-SC WASHER M4
平座金 M4
(3)
46 NM-6040001-SC NUT M4X0.7 TYPE1
六角ナット M4X×0.7 1種
(1)
47 401-21060 CUT LINK ARM U_L
カットリンクアームU_L
(1)
48 SL-6041492-TN SCREW M4 L=14
座金付き六角穴ボルト M4 L=14
(1)
49 401-15859 BODY CLAMP ADJUST BR
ボディクランプアジャストブラケット
(1)
50 401-15869 CUT LINK SH L
カットリンクシャフトL
(1)
51 SL-6031292-TN SCREW M3 L=12
座金付き六角穴ボルト M3 L=12
(1)
52 401-15866 BODY CLAMP F1 L
ボディクランプF1 L
(1)
53 SL-6032042-TN SCREW
座金付き六角穴ボルト
(2)
54 401-15858 CLAMP SUPPORT BR L
クランプサポートブラケットL
(1)
55 SL-6030692-TN SCREW M3 L=6
座金付き六角穴ボルト M3 L=6
(2)
56 401-20455 CLAMP BASE BLOCK ASM L
クランプブロックベース組L
(1)
57 401-15786 CLAMP LINK ARM
クランプリンクアーム
(1)
58 401-15862 BODY CLAMP SH L
ボディクランプシャフトL
(1)
59 RE-0250000-K0 E-RING 2.5
E形止め輪 2.5
(1)
60 401-15798 BODY CLAMP SP
ボディクランプスプリング
(1)
61 401-35022 BODY CLAMP M L A
ボディクランプM L A
(1)
62 PH-0150052-C0 PARALLEL PIN TYPE B 1.5X5
平行ピン B種 1.5X5
(1)
63 401-15860 LEAD CLAMP M L
リードクランプM L
(1)
64 SL-6030692-TN SCREW M3 L=6
座金付き六角穴ボルト M3 L=6
(2)
65 401-15861 CLAMP SUPPORT SH L
クランプサポートシャフトL
(2)
66 401-15864 CLAMP RETURN SP L
クランプリターンスプリングL
(2)
67 RE-0250000-K0 E-RING 2.5
E形止め輪 2.5
(4)
68 401-15867 BODY CLAMP F2 L
ボディクランプF2 L
(1)
69 SL-6031492-TN SCREW M3 L=14
座金付き六角穴ボルト M3 L=14
(2)
70 401-32210 BODY CLAMP SPACER
ボディクランプスペーサ
(1)
71 401-44030 BODY_CLAMP_PLATE
ボディークランププレート
(1)
72 401-44046 HEIGHT_ADJUSTER
ハイトアジャスタ
(1)
73 SM-3030552-TN SCREW M3 L=5
丸ねじ M3 L=5
(2)
74 401-61498 PARTS_SIDE_COVER
パーツサイドカバー
(1)
75 SL-6030592-TN SCREW M3 L=5
座金付き六角穴ボルト M3 L=5
(1)
76 WP-0320501-SC WASHER M3
平座金 M3
(2)
77 401-17044 CUT SOLENOID VALVE ASSY
カットソレノイドバルブ組
(1)
78 401-15813 SILENCER
サイレンサ
(1)
79 401-16322 RF CUT SV CABLE ASM
RF CUT SV ケーブル組
(1)
80 PJ-0460525-01 BARB ELBOW
バーブエルボ
(5)
81 PJ-3080600-05 DIFFERENT DIAMETER UNION Y
異径ユニオンワイ
(1)
82 WP-0320501-SC WASHER M3
平座金 M3
(4)
83 PC-0124010-00 SPEED CONTROLLER
スピード コントローラ
(2)
84 SL-6030892-TN SCREW M3 L=8
座金付き六角穴ボルト M3 L=8
(2)
85 401-23725 LOWHEAD_SCREW_M3
低頭ねじ M3
(2)
86 WS-0310002-KN SPRING WASHER M3
ばね座金 M3
(4)
87 401-41274 LOW_HEAD_CAP_SCREW_M3
低頭六角穴付ボルト M3
(2)
88
#01
SL-6031092-TN SCREW M3 L=10
座金付き六角穴ボルト M3 L=10
(2)
89
#01
PJ-0460590-05 CONNECTOR
バーブ継手
(4)
90 401-20445 REINFORCE BR L
レインフォースブラケットL
(1)
91 401-23725 LOWHEAD_SCREW_M3
低頭ねじ M3
(2)
92 401-41185 CUT_SPACER
カットスペーサ
(1)
93 CM-3002000-01 FINGER INJURY CAUTION LABEL (16)
指怪我注意シール(16)
1
- 7 -
4. FORMING COMPONENTS(FOR MRF-LF)
フォーミング関係(MRF LF 用)
2
3
3
4
4
6
7
8
9
9
10
11
12
13
14
15
16
17
18
19
20
21
21
22
25
26
28
29
33
34
35
36
42
47
48
5
5
30
45
41
43
37
38
39
40
23
A
A
27
24
34
29
44
32
31
46
1
59
51
54
58
53
56
55
57
52
50
49