DT401-F - 第64页
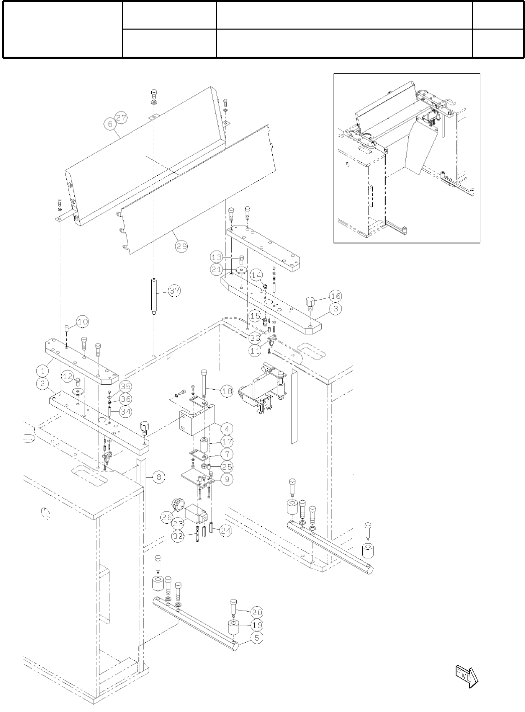
8-A 一 括 交 換 台車対応ユニット Fe ed er Ca rt Su ppo rt Uni t パーツレイアウト Ki t N o . キット 品番 Kit N am e キット名称 N6 10 035 74 8AA セクションNo. PARTS LAYOUT Section No. - - M49 ( KN610035748AA-07-1 )

Ref
No.
Remarks
R
1
Q'ty
7
カ
ッティ
ン
グ
ユニ
ッ
ト
Cutting Unit
イラスト
No.
Part No.
品 名品番 数量
R
2
パーツリスト
Kit N
o
.
キット品
番
Kit Name
キット名称
KXFX036CA00
Part Name
備 考
セクションNo.
PARTS LIST
Section No.
R
3
PLATE
1
1 KXFB02G0A00
PLATE
1
2 N210036466AA
BLOCK
2
3 KXFB02G2A00
GUIDE
1
4 KXFB01L2B00
PLATE
1
5 KXFB01L3B00
BAR
1
6 KXFB02G3A00
PLATE
1
7 KXFB02G4A00
HOUSING
1
8 N210036462AA
CUTTER
1
9 KXFB02E0A01
PLATE
1
10 KXFB02G6A00
PIN
1
11 KXFB02G7A00
PLATE
1
12 KXFB02G8A00
PLATE
1
13 KXFB02G9A00
CUTTER
1
14 KXFB02E1A00
HOLDER
1
15 N210035700AA
CYLINDER
2
16 N510056835AA CQ2D63-35DCZ
LINEAR-WAY
1
17 N510014384AA HSR20YR1SSCSE+148LK(01758297U001)
BEARING
2
18 KXF0A6GAA00 4T-30203
COLLAR
2
19 KXF0DS0AA00 ABSC5-10-25.0
ROD-END
2
20 KXF088CAA00 POS10EC
SPEED-CONTROLLER
4
21 KXF0DLDAA00 AS2201F-02-06S-17-X252(DDA)
JOINT
1
22 N510066663AA KQ2L04-M6A
POST
4
23 KXF0DWQ1A00 LSBRKT-14-100(DDA)
SPACER
2
24 N510017083AA BSF-430E
WASHER
1
25 KXF0DS1AA00 R16-40
BOLT
2
26 KXF02Z7AA00 MSB10-15
PIN
2
27 KXF0A4DAA00 SPP8-16
GREASE-NIPPLE
1
28 N510021518AA NGA-610S
BOLT
2
29 N510017407AA
Hexagon socket head cap screw M5X45-10.9 A2J (Trivalent)
COVER
1
30 N210028732AA
M48
--
( KKXFX036CA00-13 )

8-A
一
括
交
換
台車対応ユニット
Feeder Cart Support Unit
パーツレイアウト
Ki
t
N
o
.
キット
品番
Kit Name
キット名称
N610035748AA
セクションNo.
PARTS LAYOUT
Section No.
--
M49
( KN610035748AA-07-1 )

Ref
No.
Remarks
R
1
Q'ty
8-A
一
括
交
換
台車対応ユニット
Feeder Cart Support Unit
イラスト
No.
Part No.
品 名品番 数量
R
2
パーツリスト
Kit N
o
.
キット品
番
Kit Name
キット名称
N610035748AA
Part Name
備 考
セクションNo.
PARTS LIST
Section No.
R
3
PLATE
2
1 KXFB02FNA00
PLATE
1
2 KXFB02FPB01
PLATE
1
3 KXFB02FQB01
BRACKET
2
4 KXFB02FRA00
BAR
2
5 KXFB02FSA01
CHUTE
1
6 N210047466AA
S
PLATE
4
7 N210028733AA
COVER
2
8 N210028734AA
PLATE
2
9 N210028736AA
PIN
1
10 KXF0CXMAA00 1017003-80020
PH-SENSOR
2
11 KXF0DTJAA01 PM-L53-C1(DA KXF0DTJAA01)
PIN
1
12 KXFB04AGA01
PIN
1
13 KXFB04AHA01
GREASE-NIPPLE
1
14 N510021518AA NGA-610S
JOINT
1
15 KXF0716AA00 KQH04-M6
PIN
2
16 N210168669AA
URETHANE
2
17 KXF0CUKAA00 A25-50
BOLT
2
18 KXF0CULAA00 MSB10-70
URETHANE
4
19 KXF0CUMAA00 A30-30
BOLT
4
20 KXF0CUNAA00 MSB13-35
WASHER
2
21 KXF0CUPAA00 WASBH30-8-3
SWITCH
2
23 N510041538AA
S
LS-S20A/P
SPACER
4
24 N510016263AA ASF-530E
SPACER
4
25 N510016260AA CF-412E
CABLE-GLAND
2
26 KXF0DG3AA00 V-M20
TAPE
1
27 KXF0DXNAA00 AGF-100 t=0.18 W=100mm L=10m
CHUTE
1
29 N210007397AA
S
BOLT
4
32 N510017364AA
Hexagon socket head cap screw M4X35-10.9 A2J (Trivalent)
SPACER
4
33 N510008162AA ASF-314E
SPACER
2
34 KXF0DRGAA00 ARU-330
WASHER
4
35 KXF0DRHAA00 WSSB10-3-1
SPRING
2
36 KXF0DRJAA00 5581
POST
1
37 N510017148AA LSBGT13-105-M8-N4
M50
--
( KN610035748AA-07-1 )