DECAN_S1_TRM - 第107页
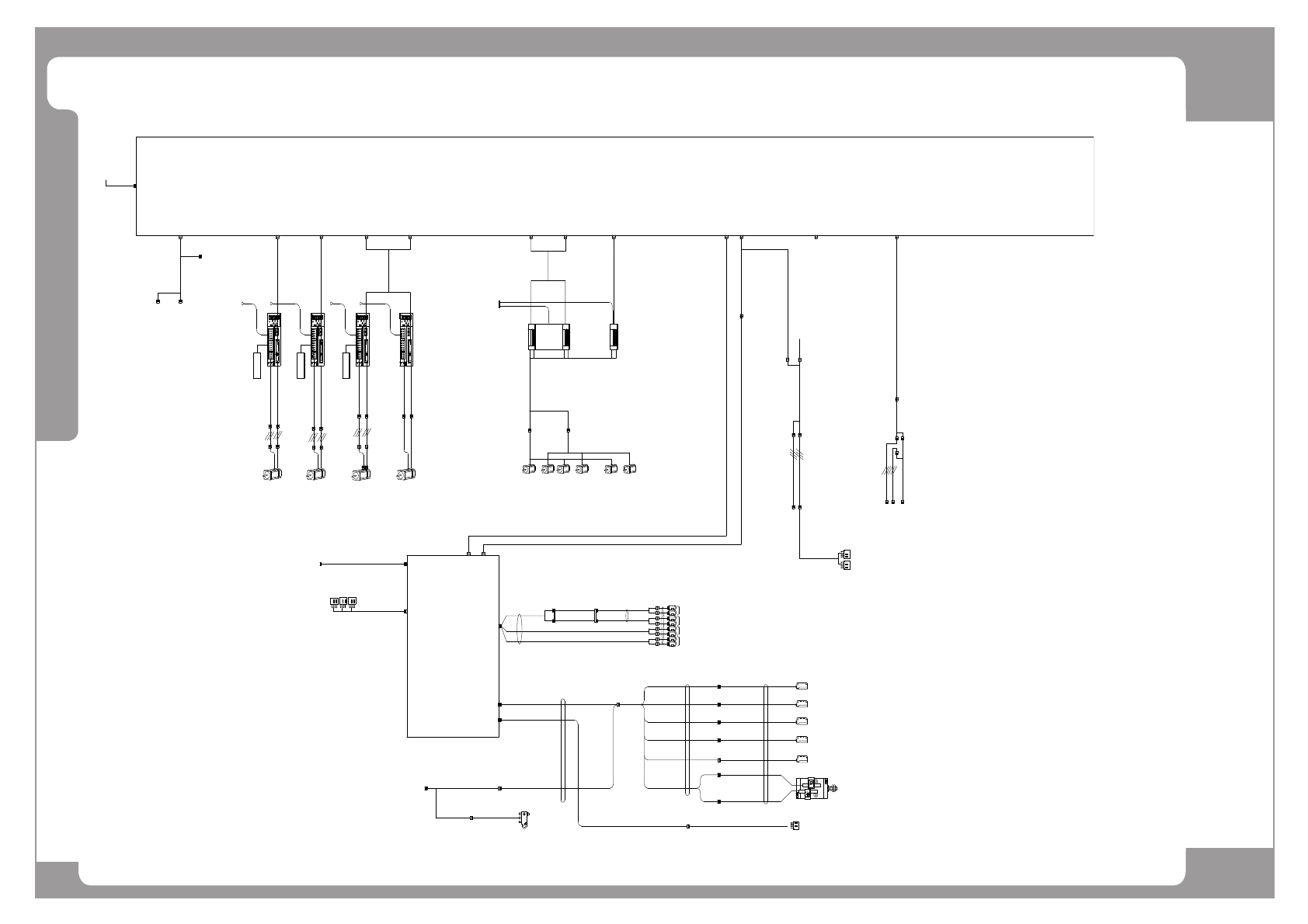
Page +$1:+$ 105 DECAN S1 Harness Wiring Diagram (4/8) CN2 AP5 AXIS IO BOARD #2 [AXIO#2] CN2 PWR CN3 CN1 CN11 CN21 Z109 AMP SW Panasonic AC servo SET MODE CN12 CN5 CN6 CN3 CN1 CN10 CN4 CN2 CN13 CN14 CN5 CN6 CN3 CN1 CN4 CN…

Page
+$1:+$
104
DECAN
S1
Harness Wiring Diagram (3/8)
CN1
PCIE X1_2M
PCIE ADAPTER #1
AP5 AXIS IO BOARD #1
[AXIO#1]
CN6 CN7 CN9
SM481_AX006
CN15
WB1 WB2
CN17
CB3 CB4
CN16
CB12
BW12
CB34
CN3
CN2
CN3
CN2
CN3
CN2
CN1
SM41_SC012
CN1
SC-CN11
SC-CN12
CN4
CN4
CN4
CB1 CB2
CN5
SM481_AX008-1
#1F-FL-11
AXIO#2-CN5
SM481_VI006
#2F-FL-14
HD-CN5
HD-CN4
HD-SOL
HD-SOL
H1H4-VAC
H1H6-VAC
SM481_AX008
X-HM,PL,NL
CN2(PWR)
SACO-CN28
SM48_SC007
SACO-CN27
HD PW EXT
AM03-006922B
CN11
(1KW)
Y2
(1KW)
Y1
CN13
SM48P_MD038
SM48_PW020
CN12 CN14
Panasonic AC servo
SET
MODE
Panasonic AC servo
SET
MODE
Panasonic AC servo
SET
MODE
Panasonic AC servo
SET
MODE
D-S1_MD009
D-S1_VM004_LIQI
(750W)
X
SM48_PW019
SM48_PW018_LIQI
WD-EN
WD-PW
WD
(100W)
AM03-026998A
AM03-006961B
AM03-006960A
SM48_PW019
AM03-006960A
AM03-014671A
AM03-021389A
SM48_MD036
AM03-007203A
SM48_MD037
AM03-007204A
AM03-027031A
D-S1_MD011
AM03-027030A
D-S1_MD010
AM03-027033A
D-S1_MD012
AM03-027035A
D-S1_MD003
AM03-027029A
D-S1_MD004
AM03-027032A
D-S1_MD022_LIQI
AM03-027034A
SM511_MD023-1
AM03-012615A
AM03-019776B
SM511C_VM003-01
AM03-019778B
SM511C_VM003-02
D-S1_FL002-1.2
D-S1_FL002-3
D-S1_FL001-1.2
D-S1_FL001-3
D-S1_FL001-5
D-S1_FL001-4
SM481_VM009
AM03-007051A
SM481_VM008
AM03-007050B
AM03-010657A
SM48_AX005_LT
AM03-020589C
AX-CN9-EXT
X-SNS-EX
AM03-007046B
AM03-007047D
AM03-007482B
J91672739A
HD-PW-EXT
FL1-#15
HEAD IF CN1
FL2-#4
X_SEN.
AM03-007080C
SM481_AX006-1
HD-PW
X-SEN
HOME
ML
SM481C_AX002
AM03-015580A
AM03-024322A
SM48_1TCV_001
AM03-024336A
SM48_1TCV_002
D-S1_1TCV_004
AM03-024323A
SM48_1TCV_003
PCB-1
PCB-2
PCB-3
PCB-4
PCB5
P-UP
P-DOWN
AM03-025088A
DECAN_1TCV_009
PCB IN(OUT) SENSOR
PCB WAIT(SECOND PLACE) SENSOR
PCB WORK SENSOR
PLACE STOPPER UP/DOWN SENSOR
SECOND PLACE(PCB WAIT) SENSOR
PCB OUT(IN) SENSOR
CV-SEN
WD-HOME
WD HOME
AM03-015575B
SM421C_AX104-1
WD-HOME-EXT
P-SEN-EXT
CN3
CN4
AM03-027523A
D-S1_1TCV_005
E3S-LS3N(OMRON)
E3S-LS3N(OMRON)
E3S-LS3N(OMRON)
E3S-LS3N(OMRON)
E3S-LS3N(OMRON)
WTSA10X40-1004WS
OMRON
EE-1001
+
L
OUT
-
CN1
BOARD
SM421 AXIS SENSOR
CN10
[AX]
CN9
PWR
CN2
D-S1_AX103
Y-PL,HM,ML
SC-CN23
AM03-026634A
FRONT LEFT FEEDER UNLOCK SENSOR SET (RECEIVER1, TRANSMITTER2)
AM03-027048A
CN12
AM03-010811C
REAR LEFT FEEDER UNLOCK SENSOR SET (RECEIVER1, TRANSMITTER2)
J3R-3
J3R-4
J8L-3
J8L-4
J3R
AM03-021648A
J8L
D-S1_CS134
SM511_CS134-1
SM511_CA201_LT
SM511_AX001
AM03-011671A
SM33_CS034-2
J90831286C
AM03-027521A
D-S1_CV016
CN14
R DUMP BOX CHECK.1
R-DUMP.BOX1
AM03-027512A
D-S1_CS145
CONVEYOR I/F BD
AM03-026829A
SM511_X MOT-EX
AM03-019874B
AXIO#1-CN7-EXT
FRONT RIGHT FEEDER UNLOCK SENSOR SET (RECEIVER2, TRANSMITTER1)
REAR RIGHT FEEDER UNLOCK SENSOR SET (RECEIVER1, TRANSMITTER2)

Page
+$1:+$
105
DECAN
S1
Harness Wiring Diagram (4/8)
CN2
AP5 AXIS IO BOARD #2
[AXIO#2]
CN2
PWR
CN3
CN1
CN11 CN21
Z109 AMP
SW
Panasonic AC servo
SET
MODE
CN12
CN5
CN6
CN3 CN1
CN10
CN4 CN2
CN13
CN14
CN5
CN6
CN3 CN1 CN4 CN2
CN15
CN16
CN5
CN6
CN3 CN1 CN4 CN2
CN17
CN18
CN5
CN6
CN3 CN1 CN4 CN2
CN19
CN20
CN5
CN6
CN3 CN1 CN4 CN2
CN22 CN23
CN26
CN10 CN10 CN10 CN10
SM471 MOTOR IF B/D
[MOT]
Z87 AMP Z65 AMP Z43 AMP
Z21 AMP
CN24 CN25
AM03-014671A
[HD]
PCIE X1_3M
DECAN HEAD IF B/D
SENSORSENSORSENSORSENSOR
VAC .
VAC .VAC .
VAC .
H1 H2
H3 H4
DECAN VACUUM SENSOR B'D(H1~H10)
H5
VAC . VAC .
SENSOR
CN1
[VAC]
SENSORSENSOR
VAC .
H6 H7
H9H8
VAC . VAC .
SENSOR SENSOR
H10
VAC .
SENSOR
CN16
H1~10 VAC SOL
CN15
H1~10 BLOW SOL
CN14
CN12
CN11
CN9
SW HOME
CN13
OVER BLOW
CN10
R1~5 HOME
CN8
조명
FIDUCIAL조명 #2
CN17
FIDUCIAL조명 #1
조명
CN7 CN9
CN19CN18
Z10~Z3 HOME
CN1
PWR
PCIE ADAPTER #2
CN11 CN12 CN13 CN14 CN15 CN23 CN21 CN22
CN19 CN20CN18CN17CN16
CN1 CN6 CN2 CN7 CN3 CN8 CN4 CN9 CN5 CN10 CN24
HD-PW
AM03-007080C
Z2~Z1, R5~R1, SW HOME
Z10~Z3 HOME
Z2~Z1, R5~R1, SW HOME
CN6
CN7
CN20
COAX
조명
(50W)
SW-ENSW-PWR
Z10 Z9 Z8 Z7 Z6 Z5 Z4 Z3 Z2 Z1
R5 R4 R3 R2
R1
FRONT
PWR
AM03-026997A
AM03-010924A
AM03-010924A
AM03-010924A
SACO-CN26
AM03-007526B
AM03-007527B
AM03-007528B
AM03-007529B
AM03-007530B
AM03-027524A
AM03-014686B
AM03-007045A
AM03-026964A
PS2
+24V
24G
AM03-010924A
SIDE-A
SIDE-B
조명
OUT-AA
OUT-BA
조명
OUT-AB
OUT-BB
CN5
CN4
AM03-007484B
H10~H3(VAC,BLOW)
H4H1-VAC
H5H10-VAC
HD-SOL
HD-SOL
AXIO#1-CN5
CN5
R DRIVER
CN1
AM03-010982B
CN1 CN1 CN1 CN1
R1 R2 R3 R4 R5
DRIVER DRIVER DRIVER DRIVER DRIVER
PW PW PW PW PW
CN2 CN2 CN2 CN2 CN2
AM03-010954A
R-R-DRV-PW
AM03-026996A
SC-CN11
PWR
D-S1_FL002-14
D-S1_FL001-6.7
D-S1_FL001-8.9
D-S1_FL001-10.11
D-S1_FL001-12.13
D-S1_FL002-6.7
D-S1_FL002-8.9
D-S1_FL002-12
D-S1_FL002-10.11
D-S1_FL001-15
D-S1_FL002-15
D-S1_FL001-14
AM03-019199A
AM03-019198A
AM03-019197A
AM03-019196A
AM03-019195A
AM03-019194A
AM03-019193A
AM03-019191A
AM03-010900A
AM03-019189A
AM03-007537A
AM03-007536A
AM03-007535A
AM03-007534A
AM03-007533B
AM03-005611D
SM481_MD028_PANA
SM481_MD027_PANA
SM481_MD026_PANA
SM481_MD025_PANA
SM481_MD024_PANA
SM481_MD023-PANA
SM481_MD022_PANA
SM481_MD040-2
SM481_MD040-1
SM481_MD040
SM481_MD039
SM481_MD038
SM471_MD025
SM511_PW031
SM511_PW031
SM511_PW031
SM481_VM009-1
SM481_VM009-2
SM481_VM009-3
SM481_VM009-4
SM481_VM009-5
SM481_AX009
SM511_PW031
SM511_VM011
SM511_SC111-2 D-S1_SC121_LT
D-S1_PW124
D-S1_VM007_LIQI
SM48_PW018_LIQI
D-S1_MD015_LIQI
SM511_MD016_LIQI
SM481_AX006-1
SM481_VI006
AM03-015567A
AM03-005587C
AM03-005590C
AM03-005593D
SM471C_HD008
SM471_HD009
SM471_HD010-3
SM471_HD010-6
SM471 HOME SNS B/D
AM03-015112A
SM47C_HD003
SM481_MD021_PANA
SM481_MD020_PANA
SM481_MD019_PANA
H1H4-VAC
AM03-007482B
SM481_AX008-1
AM03-007047D
SM481_AX008
Node 3
HD-CAN
D-S1_FL002-13
AM03-007503A
SM481_HD004
AM03-007502B
SM481_HD010-11
AM03-007496B
SM481_HD006
AM03-007495C
SM481_HD005
AM03-027198A
D-S1_HD010-12
AM03-015718A
SM481C_HD007
CN22
AM03-007500B
SM481_HD010-1
AM03-007501A
SM481_HD010-2
SACO-CN28
AM03-006922B
SM48_SC007

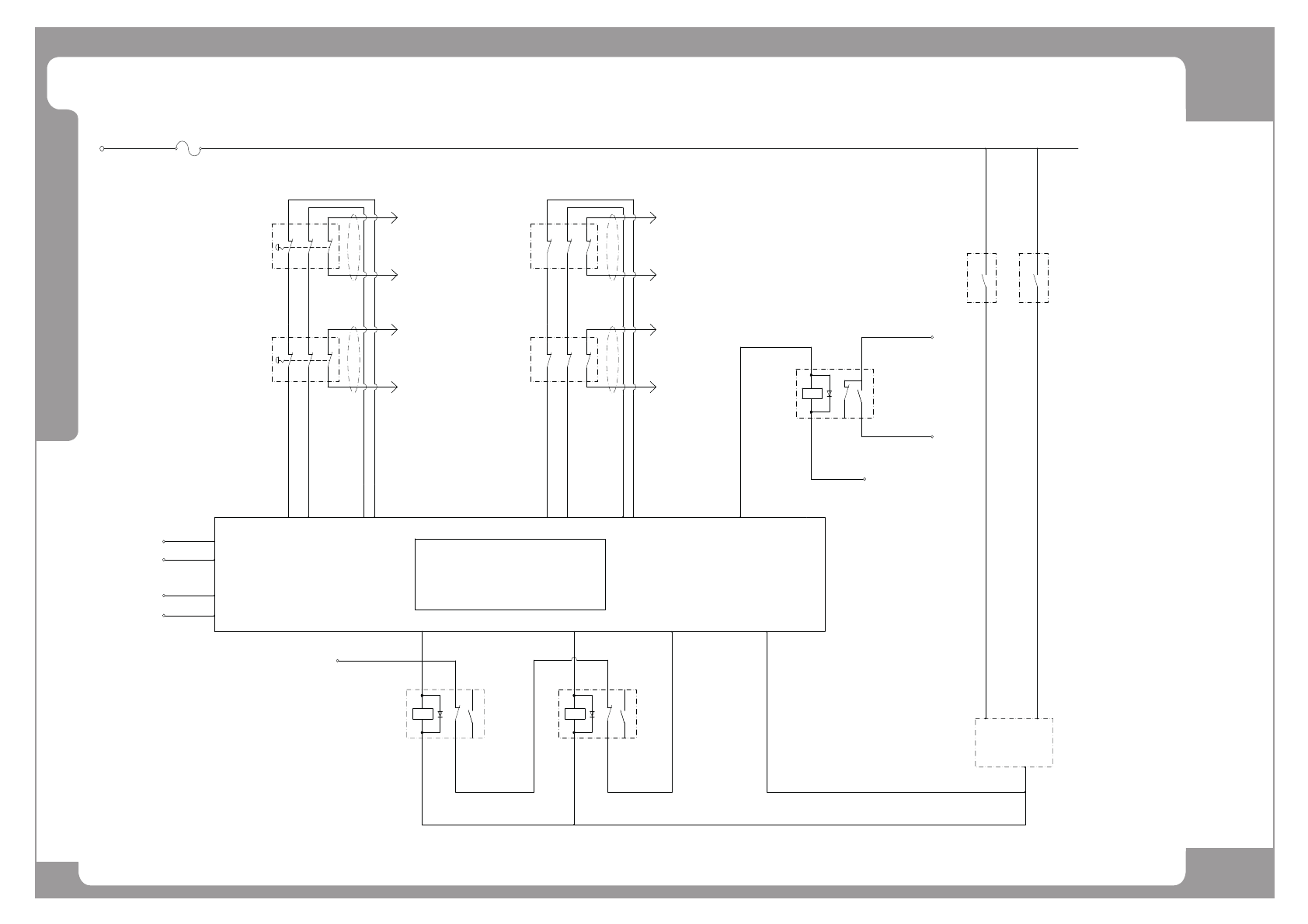
Page
+$1:+$
106
DECAN
S1
Harness Wiring Diagram (5/8)
+24V
SAFETY PLC
PILZ PNOZ_MM0P
FROP CONTROL BD
SF-003
SERVO READY OUT SIGNAL
Magnetic Contact #1 Feedback Magnetic Contact #3 Feedback
TB-21B
TB-22A
TB-23B
TB-24A
-FUSE1
(250V,0.5A)
IM1 IM0
32
22
-EM S/W
31
21
(REAR)
-EM S/W
(FRONT)
31
32
21
22
12
11
12
11
EM2
(S/W MONITOR)
(S/W MONITOR)
24G
EM1
(S/W MONITOR)
(S/W MONITOR)
24G
12
22
-DOOR S/W
11
21
(REAR)
-DOOR S/W
(FRONT)
11
12
21
22
REM1
32
31
32
31
RD
(S/W MONITOR)
(S/W MONITOR)
24G
FD
(S/W MONITOR)
(S/W MONITOR)
24G
IM3 IM2
o0
A1
A2
-SERVO READY
-READY OUT
-MC1
A1 21 33
A2 22 34
-MC3
A1 21 33
A2 22 34
o1 i15 i7
T0 T1 T2 T3
24V
0V
TB-21D
IM19
SAFETY PLC OUTPUT MONITOR
RY
A1 11
A2 12 14
(SWITCH)
(S/W SIGNAL)
CANCV CN19
TB-24B
CN18
AM03-027501A
D-S1_SF003
AM03-027501A
D-S1_SF003
AM03-027502A
D-S1_SF004
AM03-027504A
D-S1_SF002
AM03-027503A
D-S1_SF001
AM03-027503A
D-S1_SF001
AM03-027508A
D-S1_SF009
AM03-027508A
D-S1_SF009
AM03-027510A
D-S1_SF010
AM03-027510A
D-S1_SF010
AM03-027509A
D-S1_SF008
AM03-027509A
D-S1_SF008
AM03-027507A
D-S1_SF007
AM03-027507A
D-S1_SF007
AM03-027507A
D-S1_SF007
AM03-027506A
D-S1_SF006
AM03-027506A
D-S1_SF006
AM03-027505A
D-S1_SF005