DECAN_S1_TRM - 第119页
Page +$1:+$ 11 7 DECAN S1 Electric Power (4/8) NO. P ART NO. P ART NAME Q'TY Old No. Supply Supply L T Reference 1 AM03-007057A CABLE ASSY -TB1_FS1_FS 2 1 2 AM03-027102A CABLE ASSY -PS1_PS4_AC_PW_ T5L 1 3 AM03-02709…

Page
+$1:+$
116
DECAN
S1
Electric Power (4/8)
1
2
3
10
11
12
13
4
5
6 7
8
9
1L2
1L1
AC220V
FROM CP1
1L21L1
-FUSE1 (AC250V,10A)
SC-CN1
+24V 24G
+24V
24G
-FUSE2 (AC250V,10A)
1L1 1L2
-PS2
24G
-PS3
+24V
-PS1
AM03-027094A
T5L
A1
A2
(CONN)
A5
A3
A6
AM03-027102A
+24V
SM48_PW111-2
A2
A1
A4A3
T6L
(CONN)
SC-CN2
AM03-014501A
-PS4
Z-DRV-PWR
B1 B2
B4 B5
B3
B6
TO FRONT
0.75mm(BLK)
0.75mm(BLK)
0.75mm(BLK)
A4
RY1
7
8
34
56
(SM511C_PW005)
0.5mm(BLK)
-TB2
1A
1B
2A
2B
AM03-014721B 0.2mm(BLK)
(SM511C_FD003) 0.2mm(BLK)
0.2mm(BLK)
0.5mm(BLK)
A1
A2
A5
A3
A6
B1 B2
B4 B5
B3
B6
A4
A2
A1
A4A3
1,2
3,4
1,2
3,4
FEEDERBASE
24G
TO REAR
FEEDERBASE
6A(Max 16A)
6A(Max 16A)
6A(Max 16A)
GENERAL IO
R STEP
CONV STEP
AM03-014720A
(SM511C_FD002)
AM03-014722B
D-S1_PW201
D-S1_PW101
A5
A6
B1
B2
TB1
11A
12A
11C
12C
STEP DRV(FULL DUAL)
A5
A6
B1
B2
B3 B4
B5 B6
B3 B4
B5 B6
0.8mm(BLK)
0.2mm(BLK)
SM48C_PW202
EP18-900034
LY1N(AC200/220V)
AM03-007057A
< FRONT_REAR OPERATION>
AM03-014712B
0.5mm(BLK)
SM511C_PW112
4A
F1A
F1-C
9C
F2-C
10C
4B 5B5A
F1B
F2A
F2B
4C
9A
DC POWER(400W)
(+)
PE06
(-)
AC IN
24VDC
DC POWER(400W)
(-)
24VDC
(+)
AC IN
PE07
DC POWER(400W)
(-)
24VDC
(+)
AC IN
DC POWER(400W)
(-)
24VDC
(+)
AC IN
PE06-1 PE07-1
2
2
2
2
2
2
F FEEDER IO CN13
R FEEDER IO CN13
REMOTE CON
PS3
REMOTE CON
PS4
2
2
REMOTE CON
REMOTE CON
AM03-026997A
D-S1_PW124
REMOTE CON
PS3
PS4
TB2-1A
RY1-5
TB2-2A
RY1-6
2
2
SM511C_FD004
AM03-014713A
SM511C_FD005
AM03-014714A
SM511C_FD006
AM03-014716A
SM511C_FD007
AM03-014717A
Changes when the front operation mode is selected
(-)
2

Page
+$1:+$
117
DECAN
S1
Electric Power (4/8)
NO. PART NO. PART NAME Q'TY Old No. Supply Supply LT Reference
1 AM03-007057A CABLE ASSY-TB1_FS1_FS2 1
2 AM03-027102A CABLE ASSY-PS1_PS4_AC_PW_T5L 1
3 AM03-027094A CABLE ASSY-PS1_PS4_AC_PW_T5L 1
4 AM03-014712B CABLE ASSY-PS1_PS4_DC_PW_T6L 1
5 AM03-014501A #N/A #N/A
6 AM03-014713A CABLE ASSY-F LEFT FEEDER BASE PWR 1
7 AM03-014714A CABLE ASSY-F RIGHT FEEDER BASE PWR 1
8 AM03-014716A CABLE ASSY-R LEFT FEEDER BASE PWR 1
9 AM03-014717A CABLE ASSY-R RIGHT FEEDER BASE PWR 1
10 AM03-014720A CABLE ASSY-AC_RELAY_ POWER 1
11 EP18-900034 RELAY LY1N(AC200/220V) 6
12 AM03-014721B CABLE ASSY-F FDR PWR RELAY 1
13 AM03-014722B CABLE ASSY-R FDR PWR RELAY 1

Page
+$1:+$
118
DECAN
S1
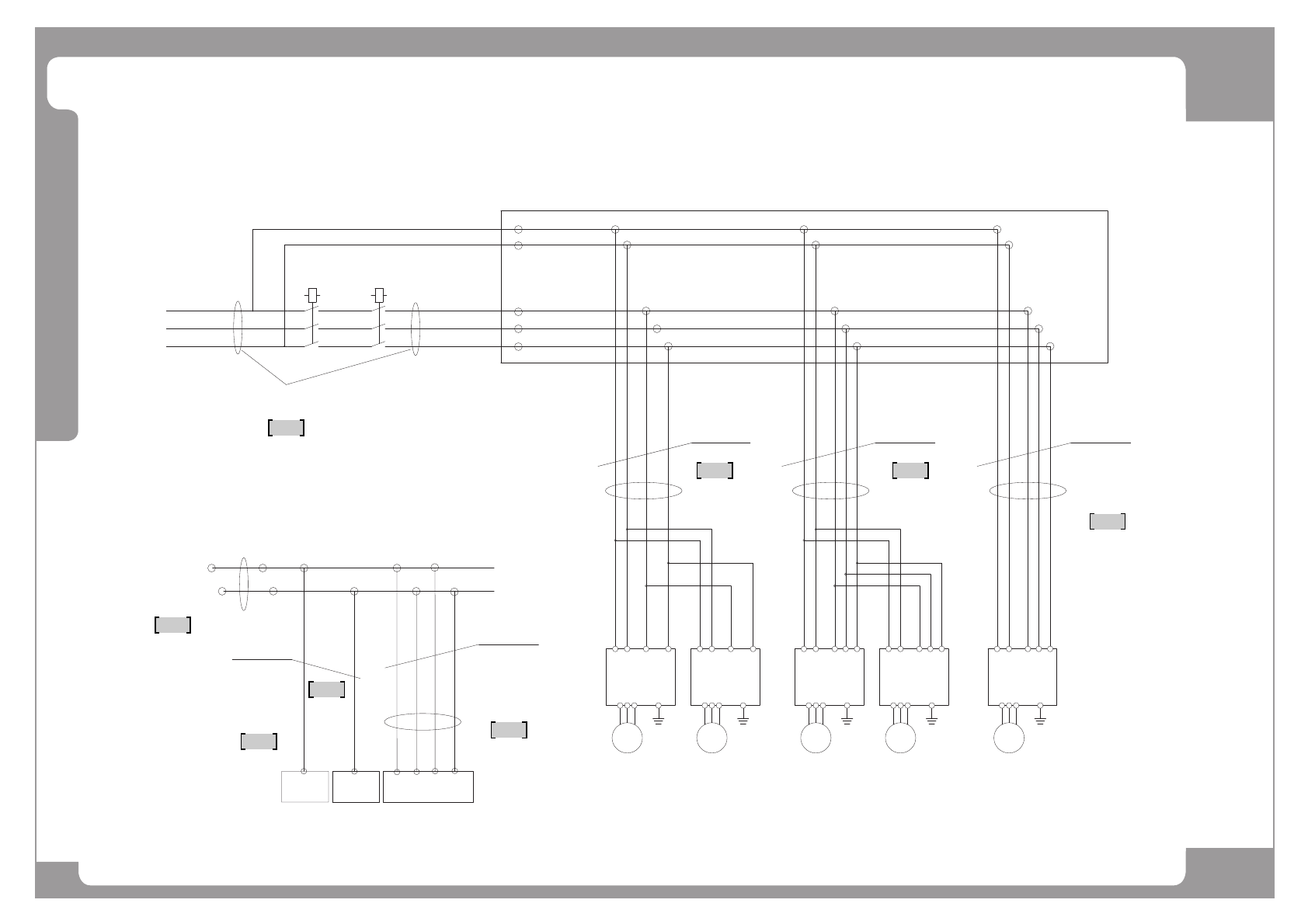
Electric Power (5/8)
1
2
3
4
5
6 7
8
22L1
22L3
22L2
22T
22R
SM48_PW018_LIQI
0.75mm(BLK)
SM48_PW019 SM48_PW020
3P AC220V
22R
22S
22T
0.75mm(BLK) 0.75mm(BLK)
FROM CP2
2.5 mm (BLK)
2.5 mm (BLK)
2.5A(Max 19A)
AM03-014671A
AM03-006960A
AM03-006961B
D-S1_PW000_LT
AM03-027391A
(LC1D096BD-9A,440V)
-MC1 -MC3
23A
23B
24A
24B
26B
26A
25B
25A
FROM PS1
24V
GND
AM03-026877A
D-S1_PW010
MC1
21
TB-RY
A2
SAFETY PLC
24V
0V
A1
A2
0.5mm(BLUE)
0.5mm(BLUE)
0.75 mm (BLK)
17C17B
19B
21B
19C
21C
15B
13B
15C
13C
18B
22B
20B
16B
14B13A
15A
17A
19A
21A
1
3
5
2
4
6
1
3
5
2
4
6
DRIVERDRIVER
PE15
U
-M1
3~
M
WV E
3~
-M2
M
UV
PE14
W E
L3
SERVO
r
-SD1
L1
t
SERVO
rt
-SD2
L3L1
DRIVERDRIVER
PE16
U
-M3
3~
M
VW E V
M
3~
-M4
U
PE17
W E
SERVO
r
-SD3
L2L1
t
SERVO
t
L3
r
-SD4
L2 L3L1
2
DRIVER
E
PE18
-M5
3~
M
W
UV
L2
-SD5
r
L1
t
SERVO
L3
50W
SW-AXIS
100W
WD-AXIS
750W
X-AXIS
1KW
Y2-AXIS
1KW
Y1-AXIS
2 2
2
2
AM03-026997A
D-S1_PW124
AM03-027505A
D-S1_SF005
AM03-027508A
D-S1_SF009
2
2
2