DECAN_L2_Technical(Kor_Ver1) - 第57页
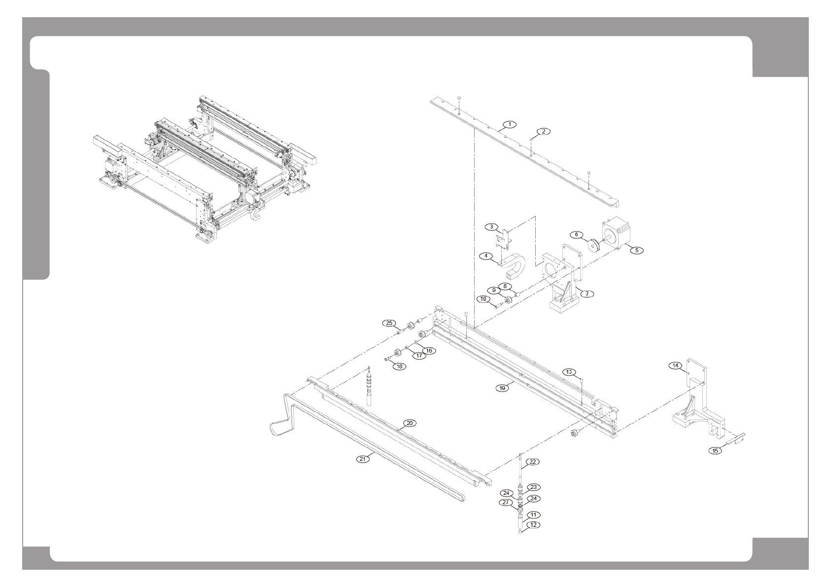
Page SAMSUNG TECHWIN 55 DECAN L2 Shuttle Conveyor (9/10) NO. P ART NO. P ART NAME Q'TY Old No. Supply Supply L T Reference 1 FC29-001514A PCB GUIDE RC 1 2 J7153373A FIDUCIAL_DISK 3 3 J70531 103A CV_SUPPO RT_M_RA IL …

Page
SAMSUNG TECHWIN
54
DECAN
L2
Shuttle Conveyor (9/10)

Page
SAMSUNG TECHWIN
55
DECAN
L2
Shuttle Conveyor (9/10)
NO. PART NO. PART NAME Q'TY Old No. Supply Supply LT Reference
1 FC29-001514A PCB GUIDE RC 1
2 J7153373A FIDUCIAL_DISK 3
3 J70531103A CV_SUPPORT_M_RAIL 1
4 EP03-000170 CABLE_VEYOR HSP0130-1B-18R-28LINK 1 EP03-900049
5 AM03-011141A CABLE ASSY-BELT MOTOR(BW1-2) 1
6 MC19-001136A PULLEY_B_M 1 J71531009A
7 J70531012C SUPPORT_MOVE_RAIL_II 1
8 J70531020A IDLER_SPACER_11 4
9 J72531001A IDLER_2 5
10 J70531021A IDLER_SHAFT_M 4
11 FC01-000022A ADJUST SHAFT 2 J7153010B
12 FC29-004426A STOPPER 2 J7253008A
13 FC29-004427A STOPPER 2 2 J7253009B
14 J70531011A SUPPORT_MOVE_RAIL_TR 1
15 FC29-004248A WORK_WIDTH_SENSOR_DOG 1 J70531066A
16 J7053184A SQUARE NUT M4 1
17 FC18-001478A IDLER SPACER-S 1 J7053047A
18 MC19-001112A IDLER SHAFT-S 1 J2101818
19 FC39-001336A WORK_REAR_FRAME 1
20 J71531046B CLAMP-REAR-FRAME 1
21 MC05-900057 BELT_WORK MAM-5P-1550-6W 1
22 J7153034A CLAMP SHAFT 1
23 FC18-001480A BUSH SPACER 2 J7153033A
24 MC06-900006 BALL_BUSH LMU5 4
25 J70531019A IDLER_SPACER_13 3
26 FC18-901355 C-RING 2
27 FC18-900900 HEX NUT 2

Page
SAMSUNG TECHWIN
56
DECAN
L2
Shuttle Conveyor (10/10)