Panasonic NPM-W PartList - 第273页
Ref No. Remark s R 1 Q'ty 24 シングルトレイフィーダ連結部(本体側):NPM-W Single Tray Feeder Connecting Unit:NPM -W イラスト No. Part No. 品 名 品番 数量 R 2 パーツリスト Kit N o . キット品 番 Kit Name キット名称 N610121945AA Part Name 備 考 セクションNo. PARTS LIST …

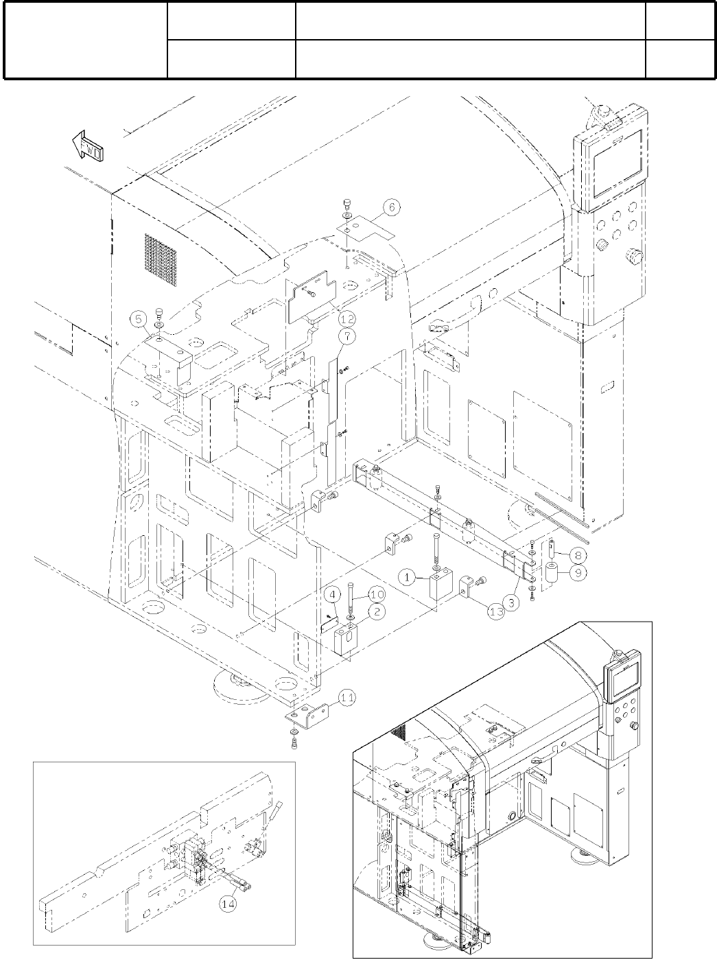
24
シングルトレイフィーダ連結部(本体側):NPM-W
Single Tray Feeder Connecting Unit:NPM-W
パーツレイアウト
Ki
t
N
o
.
キット
品番
Kit Name
キット名称
N610121945AA
セクションNo.
PARTS LAYOUT
Section No.
--
O79
( KN610121945AA-03 )

Ref
No.
Remarks
R
1
Q'ty
24
シングルトレイフィーダ連結部(本体側):NPM-W
Single Tray Feeder Connecting Unit:NPM-W
イラスト
No.
Part No.
品 名品番 数量
R
2
パーツリスト
Kit N
o
.
キット品
番
Kit Name
キット名称
N610121945AA
Part Name
備 考
セクションNo.
PARTS LIST
Section No.
R
3
BLOCK
1
1 N210101299AA
BLOCK
1
2 N210098282AB
BRACKET
1
3 N210144362AB
COVER
1
4 KXFB05J2A00
COVER
1
5 N210151743AA
COVER
1
6 N210151744AA
COVER
2
7 N210152167AA
POST
3
8 N510057011AA 87ETKR12-50
URETHANE
3
9 N510046208AA 87AXNHK30-45
BOLT
4
10 N510017494AA
Hexagon socket head cap screw M8X85-10.9 A2J (Trivalent)
BRACKET
1
11 N210147275AB
PLATE
1
12 N210153353AA
BRACKET
3
13 N210153390AA
JOINT
4
14 KXF09ZBAA00 KQ2P-06
O80
--
( KN610121945AA-03 )

25
シングルトレイフィーダ連結部(トレイ側):NPM-W
Single Tray Feeder Connecting Unit:NPM-W
パーツレイアウト
Ki
t
N
o
.
キット
品番
Kit Name
キット名称
N610121946AB
セクションNo.
PARTS LAYOUT
Section No.
--
O81
( KN610121946AB-00 )