1G4C-E-MP1-3 - 第25页
㪈㪇㪄㪙 ៝ㅍ 䉮䊮䊔䉝㩿㪣㪀 Transport Conveyor(L) 䊌䊷䉿䊧䉟䉝䉡䊃 Kit No. 䉨䉾䊃ຠ ⇟ Kit Name 䉨䉾䊃ฬ⒓ KXFX03BTA00 䍜䍖䍚䍌䍻㪥㫆㪅 PARTS LAYOUT Section No. M69 --:(:$6#

Ref
No.
Remarks
R
1
Q't
y
㪈㪇㪄㪘
៝ㅍ
䉮䊮䊔䉝㩿㪣㪀
Transport Conveyor(L)
䍐䍵䍛䍢
㪥㫆㪅
Part No.
ຠ䇭䇭ฬຠ⇟ ᢙ㊂
R
2
䊌䊷䉿䊥䉴䊃
Kit No.
䉨䉾䊃ຠ
⇟
Kit Name
䉨䉾䊃ฬ⒓
KXFX03BTA00
Part Name
䇭䇭䇭⠨
䍜䍖䍚䍌䍻㪥㫆㪅
PARTS LIST
Section No.
R
3
GUIDE
4
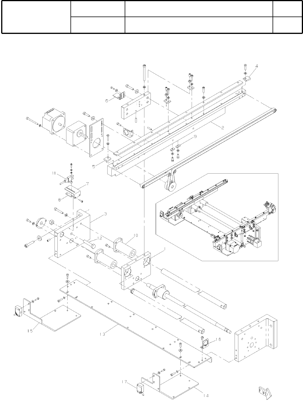
1 KXFB08MEA00
PULLEY
4
2 KXFB02QLB00
FRAME
2
3 KXFB08PFB00
BRACKET
1
4 N210023315AA
GUIDE
3
5 KXFB01J2A00
GUIDE
1
6 KXFB031QA00
PLATE
4
7 N210069932AA
PLATE
8
9 KXFB022TA00
BRACKET
1
10 KXFB031XA01
BRACKET
4
11 KXFB031ZA01
BRACKET
5
12 KXFB0320A00
BRACKET
2
13 KXFB022QA00
NUT
5
14 KXFB01UAA00
BRACKET
4
15 KXFB0323A00
BRACKET
2
16 KXFB0321A00
BRACKET
1
17 N210070180AA
MOTOR
4
18 KXF0DX4XA00
S
KO433-M(DDA)
GEAR-HEAD
4
19 KXF0DX4YA00 2GN5K-D5(DDA)
BEARING
4
20 KXF03G0AA00 SFB38-10
BOLT
16
21 N510017368AA
Hexagon socket head cap screw M4X45-10.9 A2J (Trivalent)
SCREW
14
22 N510018441AA
Hexagon socket set screw Flat point M5X10-45H A2J
NUT
8
23 N510017865AA
Hexagon nut Type-3 Best class M5-6H-4T A2J (Trivalent)
SHAFT
2
24 N510032571AA SP16529M05B
BALL-SCREW
2
25 N510032362AA XSTR01204C1DFC7-607-P0(NA120501)
SHAFT
2
26 N510032572AA SF16545M05B
COUPLING
2
27 KXF0DXEBA00 MOL-25-D5XD8
SPACER
8
28 N510015646AA ASF-360E
MOTOR
2
29 KXF0DXECA00
S
103H5332-0340
RING
4
30 N210088855AA
PLUG
2
31 KXF02CQAA00 KQP-04
SENSOR
3
32 KXF09TDAA00
A
EX-14B
CAM-FOLLOWER
16
34 KXF0DWP0A00
A
CF4-17WVBRE01(DDA)
BELT
5
35 KXF0E0R1A00
A
(DA KXF0E0R1A00)
Cylinder Unit
2
36 N610027548AA
SPACER
2
37 N510020122AA 3382330-90300
SPACER
2
38 N510020120AA 3382330-90125
SENSOR
6
39 KXF0DXF5A00
A
E3S-LS3N
BOLT
2
40 N510018916AA
Hexagon head bolt M8X90-6g 4T A2J all screws(no mark)
PIN
4
41 KXF08Q5AA00 SPP4-16
BOLT
6
42 N510017258AA
Hexagon socket head cap screw M2X5-10.9 A2J (Trivalent)
SCREW
8
43 N510018416AA
Hexagon socket set screw Flat point M3X12-45H A2J
SPACER
2
44 KXF01S7AA00 CU-415
PIN
4
45 KXF02YGAA00 MS5-15
BOLT
8
46 N510017412AA
Hexagon socket head cap screw M5X55-10.9 A2J (Trivalent)
WASHER
8
47 KXF0E0X9A00 WSSB8-3-5
BRACKET
1
48 N210070179AA
PW106A1
1
49 KXFB02RKA00
BRACKET
2
50 KXFB00JJA01
BOLT
8
51 N510026953AA SLH0416
M68
--:(:$6#

㪈㪇㪄㪙
៝ㅍ
䉮䊮䊔䉝㩿㪣㪀
Transport Conveyor(L)
䊌䊷䉿䊧䉟䉝䉡䊃
Kit No.
䉨䉾䊃ຠ
⇟
Kit Name
䉨䉾䊃ฬ⒓
KXFX03BTA00
䍜䍖䍚䍌䍻㪥㫆㪅
PARTS LAYOUT
Section No.
M69
--:(:$6#

Ref
No.
Remarks
R
1
Q't
y
㪈㪇㪄㪙
៝ㅍ
䉮䊮䊔䉝㩿㪣㪀
Transport Conveyor(L)
䍐䍵䍛䍢
㪥㫆㪅
Part No.
ຠ䇭䇭ฬຠ⇟ ᢙ㊂
R
2
䊌䊷䉿䊥䉴䊃
Kit No.
䉨䉾䊃ຠ
⇟
Kit Name
䉨䉾䊃ฬ⒓
KXFX03BTA00
Part Name
䇭䇭䇭⠨
䍜䍖䍚䍌䍻㪥㫆㪅
PARTS LIST
Section No.
R
3
PLATE
2
1 KXFB031JA00
FRAME
2
2 KXFB08PEB00
BRACKET
1
3 KXFB031MA01
GUIDE
3
4 KXFB01J3A00
GUIDE
1
5 KXFB031PA00
DOG
2
6 KXFB06HSA00
BRACKET
2
7 KXFB01XPA01
NUT
2
8 KXFB009DA01
NUT
4
9 KXFB0020A00
LINEAR-BUSH
4
10 N510032573AA LMH16LUU
SENSOR
2
11 KXF07B2AA00
A
PM-T53-C1
BOLT
2
12 N510018908AA
Hexagon head bolt M8X40-6g 4T A2J all screw(no mark)
BRACKET
2
13 N210063706AD
BRACKET
2
14 N210063705AD
BRACKET
2
15 N210063704AD
BRACKET
2
16 KXFB0323A00
Sensor
1
17 N610067799AA
M70
--:(:$6#