YG12F_mpl_je - 第38页
Rev . :It had a change without the compatibility . Please be careful at the time of the parts ordering. Rev.: 過去に互換性の無い変更が入った部品。部品発注時は注意してください。 No. Part No. Part Name Q'ty Remarks Rank Level No. Part No. Part Name Q…

36
40
40
5
41
40
4
20
39
34
35
16
35
28
35
1
31
38
31
2
32
21
42
34
3
12
19
18
21
42
37
17
35
41
20
14
13
14
32
40
40
36
5
31
38
31
8
30
43
11
11
7
6
26
31
31
35
41
20
38
22
40
4
9
9
7
43
30
8
11
11
26
6
22
40
22
20
41
17
5
8
31
38
35
31
8
5
10
44
45
34
28
15
40
22
23
23
R>L
16
34
39
10
L>R
24
47
47
26
26
27
27
29
29
25
33
39
24
25
26
26
27
27
29
29
33
39
46
KKS-1011
7
3
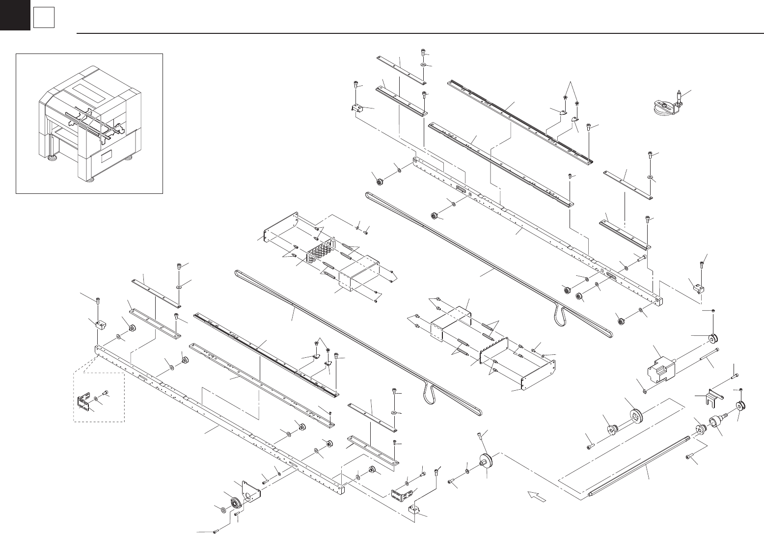
Main Conveyor
Conveyor

Rev. :It had a change without the compatibility. Please be careful at the time of the parts ordering.
Rev.: 過去に互換性の無い変更が入った部品。部品発注時は注意してください。
No. Part No. Part Name Q'ty Remarks Rank Level No. Part No. Part Name Q'ty Remarks Rank Level
1
KHY-M9113-00 PULLEY 1,MOTOR
1 /
Í
33
91312-04008 BOLT HEX.SOCKET HEAD
8
M4X8
2
KHY-M9117-00
SPLINE 1
1
/
Í
34
91312-04010 BOLT HEX.SOCKET HEAD
8
M4X10
3
KHY-M9118-00 BRACKET F,COLLAR
1 /
Í
35
91312-04012 BOLT HEX.SOCKET HEAD
10
M4X12
4
KHY-M9121-00 FRAME,CONVEYOR
2
1250
/
Í
36
91312-05020 BOLT HEX.SOCKET HEAD
2
M5X20
KHY-M9121-10 FRAME,CONVEYOR
2
1460
/
Í
37
91317-04055 BOLT HEX.SOCKET HEAD
4
M4X55
5
KHY-M9123-00 GUIDE 1
4
1250
/
Í
38
92902-03200 WASHER PLAIN
16
KHY-M9123-10 GUIDE 1
1
1460
/
Í
39
92902-04200 WASHER PLAIN
11
6
KHY-M9124-00 PLATE 1,GUIDE
2
1250
/
Í
40
92902-05200 WASHER PLAIN
8
KHY-M9124-10 PLATE 1,GUIDE
1
1460
/
Í
41
92902-05600 WASHER PLAIN
4
7
KHY-M9125-00 PLATE 2,GUIDE
2
1250
/
Í
42
92A08-04303 SET SCREW
4
KHY-M9125-10 PLATE 2,GUIDE
2
1460
/
Í
43
98702-03005 SCREW FLAT HEAD
32
8
KHY-M9126-00 GUIDE 1-1
4
1250
/
Í
44
KH2-M9121-00 BEARING
1 /
Í
KHY-M9126-10 GUIDE 1-1
2
1460
/
Í
45
91312-04006 BOLT HEX.SOCKET HEAD
2
M4X6
9
KHY-M9129-00 BELT 1,CONVEYOR
2
1250
E
46
KHY-M920D-00 PUSH UP PIN UNIT
9 /
KHY-M9129-10 BELT 1,CONVEYOR
1
1460
E
47
KJJ-M4554-00 TERMINAL BOARD ASSY
2
10
KHY-M912A-01 BRKT.,SENSOR
1 /
Í
48
11
KHY-M9135-00 PLATE,EDGE 2
16 /
49
12
KHY-M9157-00 SHAFT,MOTOR
1
/
Í
50
13
KG2-M9105-00 PULLEY 1,SPLINE
1 /
Í
51
14
KG2-M9108-11 COLLAR,CONVEYOR
2
/
Í
52
15
KHY-M9111-00
BRKT.1,SPLINE
1 /
Í
53
16
KGA-M9113-00 GUIDE 1,END
2 /
54
17
KGA-M9114-00 GUIDE 2,END
2 /
55
18
KGK-M9170-00 DC MOTOR ASSY.
1 B
56
19
KGT-M9193-00 NUT PLATE
4 /
57
20
KGY-M9140-A0 PULLEY,CONV. ASSY
4 A
58
21
KH2-M9105-11 PULLEY,MOTOR:P30-3GT
2 /
59
22
KV1-M9140-A0 PULLEY CONV.ASSY.
4 A
60
23
KV7-M9140-A0 PULLEY CONV.ASSY.
2 A
61
24
KHY-M911G-00 COVER,TERMINAL
2 /
62
25
KHY-M911Y-00 PLATE,TERMINAL
2 /
Í
63
26
90563-03J100 SPACER BOLT
8 64
27
90563-03J400 SPACER BOLT
8 65
28
90990-28J076 WASHER
2 66
29
91312-03005 BOLT HEX.SOCKET HEAD
8
M3X5
67
30
91312-03006 BOLT HEX.SOCKET HEAD
16
M3X6
68
31
91312-03008 BOLT HEX.SOCKET HEAD
46
M3X8
69
32
91312-03010 BOLT HEX.SOCKET HEAD
8
M3X10
70
KKS-1011
7
3
Main Conveyor
Conveyor

2
5
9
2
8
10
7
3
4
8
7
6
6
5
4
2
3
7
8
8
10
7
7
10
9
1
1
1
1
1
2
1
1
1
1
1
1
1
7
10
L>R
R>L
KKS-1011
7
4
Sensor
Conveyor