N7201A642C03(1)DX操作手册 - 第292页
NPM - DX EJM8D C - MB - 08O - 00 规格 对应基板规格 8-1-4 -1 操作 手册 8 - 1 - 4 项目 规格 尺寸 ( mm ) 短规格 单轨模式 ●最小 L 50 × W 50 ●最大 L 460 × W 590 双轨模式 ●最小 L 50 × W 50 ●最大 L 460 × W 300 长规格 单轨模式 ●最小 L 50 × W 50 ●最大 L 510 × W 590 双轨模式 ●最小 L …
NPM-DX EJM8DC-MB-08O-00
8-1-3-2

NPM-DX EJM8DC-MB-08O-00
规格
对应基板规格
8-1-4-1
操作手册
8-1-4
项目 规格
尺寸
(mm)
短规格
单轨模式 ●最小 L 50 × W 50 ●最大 L 460 × W 590
双轨模式 ●最小 L 50 × W 50 ●最大 L 460 × W 300
长规格
单轨模式 ●最小 L 50 × W 50 ●最大 L 510 × W 590
双轨模式 ●最小 L 50 × W 50 ●最大 L 510 × W 300
厚度
(mm)
0.3 ~ 8.0
重量 (kg)
3.0 以下 (贴装后的重量)
基板弯曲
容许范围
(mm)
贴装・点
胶可能范
围
(mm)
短规格
单轨模式
a:50 ~ 590 b:44 ~ 584 c:3 d:50 ~ 460
双轨模式
a:50 ~ 300 b:44 ~ 294 c:3 d:50 ~ 460
长规格
单轨模式
a:50 ~ 590
b:44 ~ 584 c:3
d:50 ~ 510
双轨模式
a:50 ~ 300 b:44 ~ 294 c:3 d:50 ~ 510
死区
(mm)
向下弯曲: 0.5 以内
Y
X
固定侧
a b
c
d
c
基板传送方向
禁止有元件的范围
*1)
*1)
3
28
轻量16吸嘴贴装头: 最大 6.5
轻量8吸嘴贴装头: 最大 12
4吸嘴贴装头: 最大30
*1)
3
向上弯曲: 0.5 以内
基板断面
弯曲量
禁止有元件的范围
∗1)
支撑销
∗1) 离背面元件距离需在2 mm以上。
●基板支撑块由客户制作时,请向本公司咨询。

NPM-DX EJM8DC-MB-08O-00
8-1-4-2
基板
的
基板是,和的位。
和基板要的。
和背
的背和、保的。
是。
的位
基板,要基板的2位。
出送 (L) : 275 mm、长: 350 mm的基板,贴
装 (单)。要在2。
(长)
c
350 mm < L ≤ 510 mm
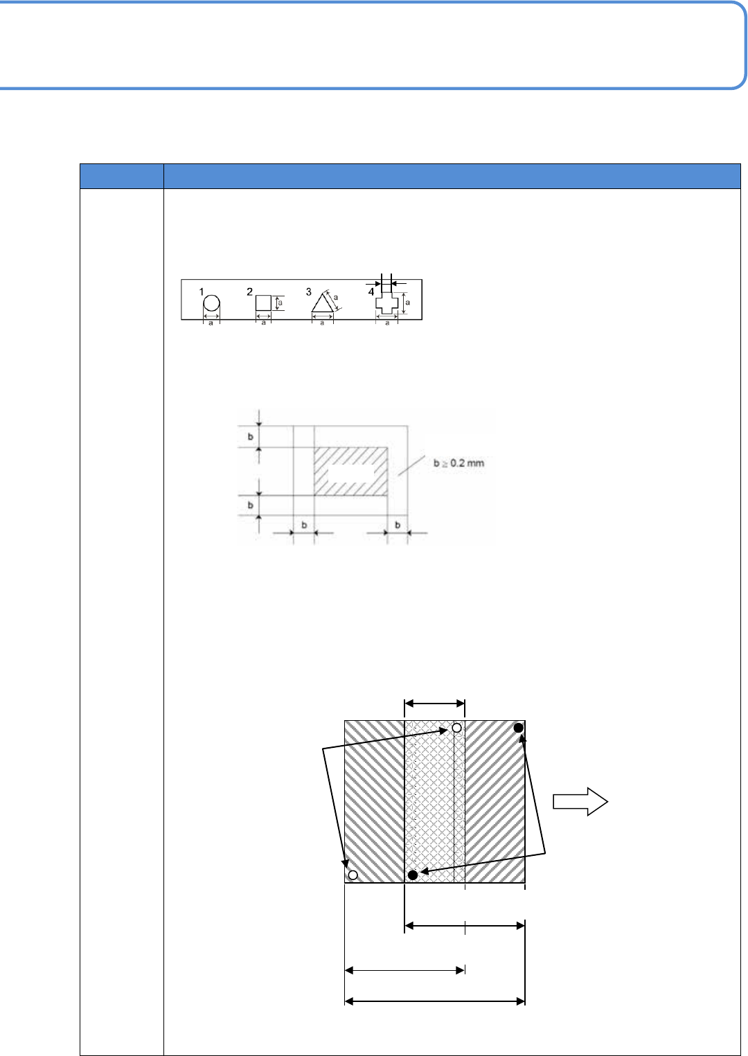
3的:、
4的线:0.3 mm
0.5 mm a 1.6 mm
0.3 mm c
基板
(在贴装)
基板要的
基板
基板
(在贴装)
350 mm
贴装的
350 mm
贴装的
※是的,的基板,。