KE-1070使用说明书 - 第26页
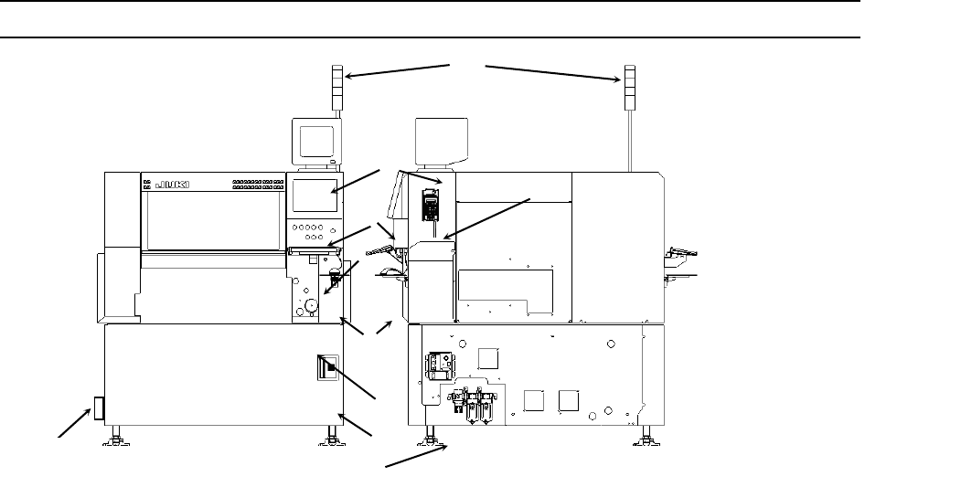
第 1 部 基本编 第 1 章 设备概要 1-7 1-2 本设备的构成 1-2-1 本设备的构成 图 1 -2-1-1 正面图 图 1-2-1-2 右面图 ① 监视器 ⑤ 鼠标器 ⑨ 风速计/3.5FDD 单元(选项) ② 液晶显示器 ⑥ 信号灯 ⑩ 强力制动器解除开关 ③ HOD 单元 ⑦ 主开关 ④ 键盘 ⑧ 过滤器调节器 ⑥ ① ② ③ ④ ⑤ ⑦ ⑨ ⑧ ⑩

第 1 部 基本编 第 1 章 设备概要
1-6
1-1-3-3 KE-1080 系统构成
紧急停止按钮
不间断电源装置 (UPS) 外体
漏电断路器
*1
电源装置
CPU 板
I/O 控制装置
马达控制装置
X-Y 定位装置
贴片头
图像识别装置
对应 12mm 元件(NC)
对应 20mm 元件(HC)
*1
基板传送装置
ATC(工具自动交换装置)
外形基准
信号灯(带蜂鸣器)
微型信号灯
*1
超级底座
*1
脚轮
*1
液晶显示器
鼠标
键盘
HOD
HDD、SSD
100 BASE / 10 BASE T
以太网卡
USB 端口
触摸屏
*1
背面操作装置
*1
CD 驱动器(USB)
FD 驱动器(内置/USB)
激光识别贴片头(LNC60)
MNVC
*1 *3
图像识别专用贴片头(CDS)
位置校正摄像机(OCC)L
坏板标记识别器(BMR)
*1
元件识别摄像机(VCS) 标准摄像机(视野 54mm)
高分辨率摄像机(视野 27mm)
*1
贴片站点
销基准
*4
0402 元件对应功能
对应 25mm 元件(EC)
*1*2
供料器台
供料器悬浮检测装置
统一更换台功能
*1
连接器托架
*1
备用更换台
主线过滤器
*1
气压设备管道系统
SOT 方向检查功能
*1
不间断运行功能
*1
自动切带器
IC 回收带
带卷安装台
带式供料器
*5
・
散件供料器
・
管式供料器
・
多层管式供料器
双托盘服务器(TR-1SNR)
矩阵托盘交换器(TR-6SNR、TR-6DNR)
*5
矩阵托盘服务器(TR-5SNR、TR-5DNR)
*5
SCS(防止元件误装系统)
EPU(外部编程装置)
垃圾盒
框 内的机器·功能为选购项。
*1 带有*1 标志的选项为出厂选项。
*2 只限 E 尺寸基板对应 25mm 元件。
*3 短边 3mm 以下的高分辨率摄像机识别元件,
不受 MNVC 选项的影响,可用 LNC60 贴片头进行生产。
*4 不包括 E 尺寸基板规格。
位置校正摄像机(OCC)R
高度测量装置(HMS)
*1
基板宽度自动调整装置
*1
传送延长
*1
FPI(供料器位置指示功能)
*1
FCS(Flexible Calibration System)
托盘支架
元件供应装置
KE-1080

第 1 部 基本编 第 1 章 设备概要
1-7
1-2 本设备的构成
1-2-1 本设备的构成
图 1-2-1-1 正面图 图 1-2-1-2 右面图
① 监视器 ⑤ 鼠标器 ⑨ 风速计/3.5FDD 单元(选项)
② 液晶显示器 ⑥ 信号灯 ⑩ 强力制动器解除开关
③ HOD 单元 ⑦ 主开关
④ 键盘 ⑧ 过滤器调节器
⑥
①
②
③
④
⑤
⑦
⑨
⑧
⑩

第 1 部 基本编 第 1 章 设备概要
1-8
图 1-2-1-3
① ATC单元 ④ OCC 单元(R) (只限 KE-1080) ⑧ 基板传送单元
② LNC60贴片头单元 ⑤ OCC 单元(L) ⑨ CAL块单元
③ IC 贴片头单元(KE1080) ⑥ VCS 单元 (
只限 KE-1080) ⑩ 送料器台单元
⑦ X-Y 单元 ⑪ HMS 单元
确认手把已推到
里面并且稳定。
◆打开安全盖时要把盖子向上开足直到上了锁,
确认上了锁之后再放开手。
(把盖子开到最大限度就会进入上锁状态。)
﹡
没有上好锁就放开手时,
盖子有落下来的危险。
◆关盖子时先解开锁,再关闭盖子。
把盖子向上提,在全开状态下,
把手把向上移动解开锁。
(请注意,解开锁时不要使盖子落下来受伤。)
﹡不要过渡增加盖子、手把等的负荷。
把手把向上提,解开锁后,
再关闭盖子。
〈安全盖打开状态〉
③
⑤
④
①
②
⑦
⑧
⑨
⑥
⑪
⑩