KE-1070使用说明书 - 第403页
第 1 部 基本篇 第 4 章 制作生产程序 4-3-8 数据完成状态 检查数据的完成 状态。若未完成则不 能进行优化。 从菜单栏中单击 “数据” / “数据 完成状态”,显示 如下画面。 图 4.3.8 .1 数据 完成状态 如果记录数目和 完成数目一致 ,则表示数据 已完成,在 完成的“ ( ) ”中显示“ * ”。 另外 , “吸取数据”及 记录数目 为 0 的项目, 即使不显示“ * ”,也被看作完 成。 当有未完成的项 目时,…

第 1 部 基本篇 第 4 章 制作生产程序
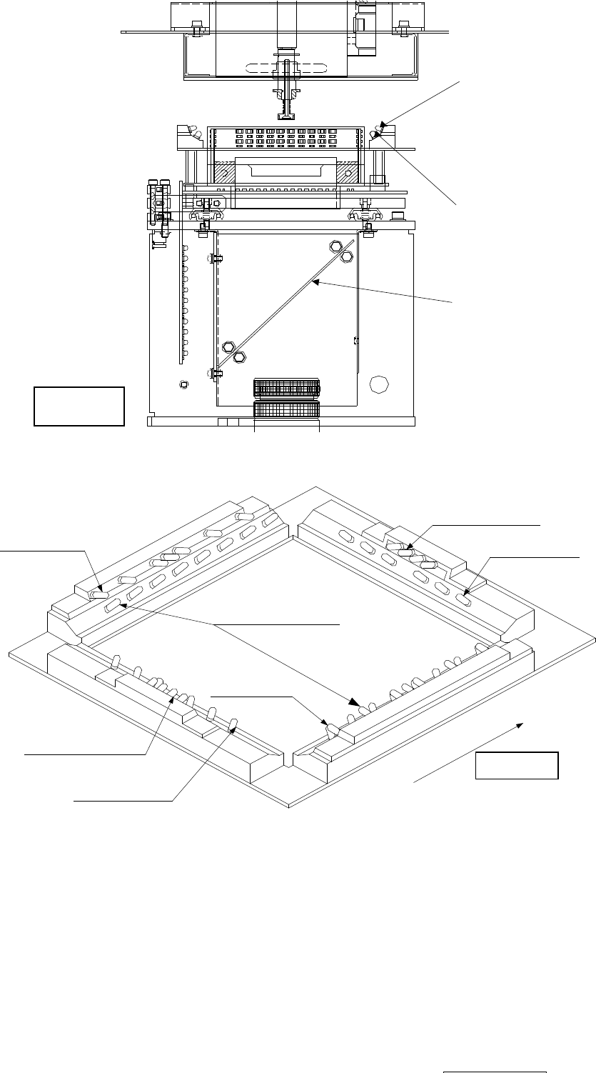
图 4.3.7.7.3 透射照明设备
右侧面
上层透射照明前后
下层透射照明前后
下层透射照明左右
下层透射照明前后
上层透射照明前后
上层透射照明左右
上层透射照明左右
上层透射照明前后
下层透射照明前后
(半透半反镜)
机器近前侧
4-108

第 1 部 基本篇 第 4 章 制作生产程序
4-3-8 数据完成状态
检查数据的完成状态。若未完成则不能进行优化。
从菜单栏中单击“数据”/“数据完成状态”,显示如下画面。
图 4.3.8.1 数据完成状态
如果记录数目和完成数目一致,则表示数据已完成,在完成的“( )”中显示“*”。
另外,“吸取数据”及记录数目为0的项目,即使不显示“*”,也被看作完成。
当有未完成的项目时,请完成该项目。
4-109

第 1 部 基本篇 第 4 章 制作生产程序
4-3-9 数据一致性检查
检查已制作的程序和机器设置中的设置内容是否矛盾,并检查程序本身是否矛盾。
一致性检查结束后,即可进行优化。当检查结果显示有错误发生时,则显示错误内容。
此时,请参考显示内容,修改程序或“机器设置”。
1) 执行一致性检查
从菜单栏中选择“数据(D)”/“数据一致性检查(L)”,执行一致性检查。
2) 检查的结果报告
进行一致性检查后,显示如下信息。
① 正常结束时
② 检测出错误时
在此,按下“确定”按钮,显示是否显示错误内容的确认画面。
选择“确定”则显示错误内容。
3) 错误信息内容
数据种类 数据内的制作No 错误内容
在 KE-2080 中的错误内容。
用元件数据的第 1 个元件指定的 VCS(因主
体上未安装或在机器设置中设置为未使
用等原因)不能使用。
图 4.3.9-1
图 4.3.9-2
图 4.3.9-3
4-110