KE-1070使用说明书 - 第52页
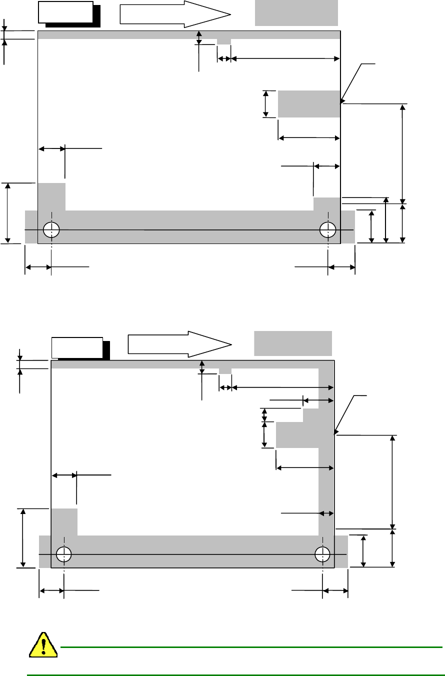
第 1 部 基本编 第 1 章 设备概要 1-33 (2) 支撑销不可设置的范围(基板下底面图) 基板下面 基板下面 支撑 销 不可 置范 设围 基板 送方向 传 34mm 17.5mm 91mm 4mm 164m m ( M 基板 格 规 ) 244m m ( L 基板 格 规 ) 22mm 20mm 63.5mm 7mm 25mm 17.5mm 21mm 39.5mm 22mm 置位置 挡块设 0 ~ 90 m m ( M 基板 格…

第 1 部 基本编 第 1 章 设备概要
1-32
1-2-5 基板规格
1. 基板条件
机型 M 基板规格 L 基板规格 E 基板规格
最小 (X)50mm×(Y)30mm
注1
基板尺寸
最大
(X)330mm×
(Y)250mm
(X)410mm×
(Y)360mm
(X)510mm×
(Y)460mm
最小 0.4mm
基板厚度
最大 4.0mm
最大允许重量 2000g
翘曲允许值
每 50mm 允许在 0.2mm 以下。上翘,下翘的总和在 1mm 以下
(根据 JIS B 8461)
基板材质 纸酚、环氧玻璃
(X):基板传送方向 (Y):与基板传送垂直的方向
注1 :有基板自动调整选项功能时,最小基板尺寸为(X)50mm×(Y)50mm 。
2. 基板限制条件
(1) 不可贴片的范围
图 1-2-5-1 基板上表面不可贴片的范围(基板上面图)
基板传送方向
不可贴片范围
[M] 30~250 (基板宽度自动调整时 50~250mm)
[L] 30~360 (基板宽度自动调整时 50~360mm)
[E] 30~460 (基板宽度自动调整时 50~460mm)
标准φ4 mm、选项φ2.5~φ4 mm
+0.1
0
+0.1
0
5±0.1mm
特殊定货 5~7mm(出厂对应)
标准 5±0.1mm(注)
基板上表面图
基板上表面图
传送轨
固
定
侧 [M] 50~330mm
[L] 50~410mm
[L] 50~510mm
注: 为出厂时的尺寸 外形基准(标准)时不需要。

第 1 部 基本编 第 1 章 设备概要
1-33
(2) 支撑销不可设置的范围(基板下底面图)
基板下面
基板下面
支撑销
不可 置范设围
基板 送方向传
34mm
17.5mm
91mm
4mm
164mm( M基板 格规 )
244mm( L 基板 格规 )
22mm
20mm
63.5mm
7mm
25mm
17.5mm
21mm
39.5mm
22mm
置位置挡块设
0 ~ 90mm( M基板 格规 , 前面基准)
0 ~ 50mm( M基板 格规 , 后面基准)
0 ~185mm( L 基板 格规 , 前面基准)
0 ~145mm( L 基板 格规 , 后面基准)
送道固定传轨 侧
图 1-2-5-2 基板下面不可贴片图 (M,L 基板规格、基板下面图)
基板下面
基板下面
支撑销
不可设置范围
基板传送方向
34mm
17.5mm
91mm
4mm
265mm(右左流向为 223mm)
22mm
20mm
63.5mm
7mm
15.5mm
17.5mm
21mm
22mm
挡块设置位置
0 ~ 210mm
传送轨道固定侧
11mm
14mm
図 1-2-5-3 基板下面設定不可範囲 (E 基板仕様、基板下面図)
基板传送方向为反方向(向左流)时,支撑销不可设置范围与图成左右对称。
注意

第 1 部 基本编 第 1 章 设备概要
1-34
① 贴片元件高度及基板下面传送高度范围
图 1-2-5-4 高度方向的不可贴片范围
表 1-2-5-1 元件高度规格
机种 元件高度规格 h
1
(mm)
SC 规格机 6
KE-1070
NC 规格机 12
SC 规格机 6
KE-1070C
NC 规格机 12
NC 规格机 12
HC 规格机 20
KE-1080
EC 规格机 25
基板
h1:尺寸,请参见下表 1-2-5-1
基板下面
不可贴片范围
最大
40mm
3
3