KE-1070使用说明书 - 第781页
第2部 功能详细篇 第1 2章 选项元件 12-7 3)主机右侧界面板上有“MTC 电源插头①” 、 “信号插头②” 、 “MTC 用气管接头” ,请接上电线·气 管。 电缆和气管,请使用 MTC 附件。 图 12-3-2 ① MTC用电源插头 ② MTC用界面插头 ③ MTC用 φ 6管取出口 ① ② ③ 注意:

第2部 功能详细篇 第12章 选项元件
12-6
12-3 矩阵·托盘更换器(MTC)的设置方法
注意
为了防止意外启动引起事故,请切断电源后再进行操作。
12-3-1 安装方法
图 12-3-1
1) 从主机正面看,为了使“MTC
滑梭部③”进入右侧里(后)
部的 “MTC 导盖①”中,从
后方移动“MTC 主机④”。
2) 贴片机和 MTC 的位置关系如
图 12-3-3 所示。
把传送带轨道高度、基准轨
道对准后请检查贴片机的贴
片头是否可移动到滑梭的吸
取位置上。
①
②
③
④
①MTC 导盖
②RUR 罩
③MTC 滑梭部
④MTC 主体
关于MTC的操作方法,请参照另册的使
用说明书。
注意:

第2部 功能详细篇 第12章 选项元件
12-7
3)主机右侧界面板上有“MTC 电源插头①”、“信号插头②”、“MTC 用气管接头”,请接上电线·气
管。
电缆和气管,请使用 MTC 附件。
图 12-3-2
① MTC用电源插头
② MTC用界面插头
③ MTC用φ6管取出口
①
②
③
注意:

第2部 功能详细篇 第12章 选项元件
12-8
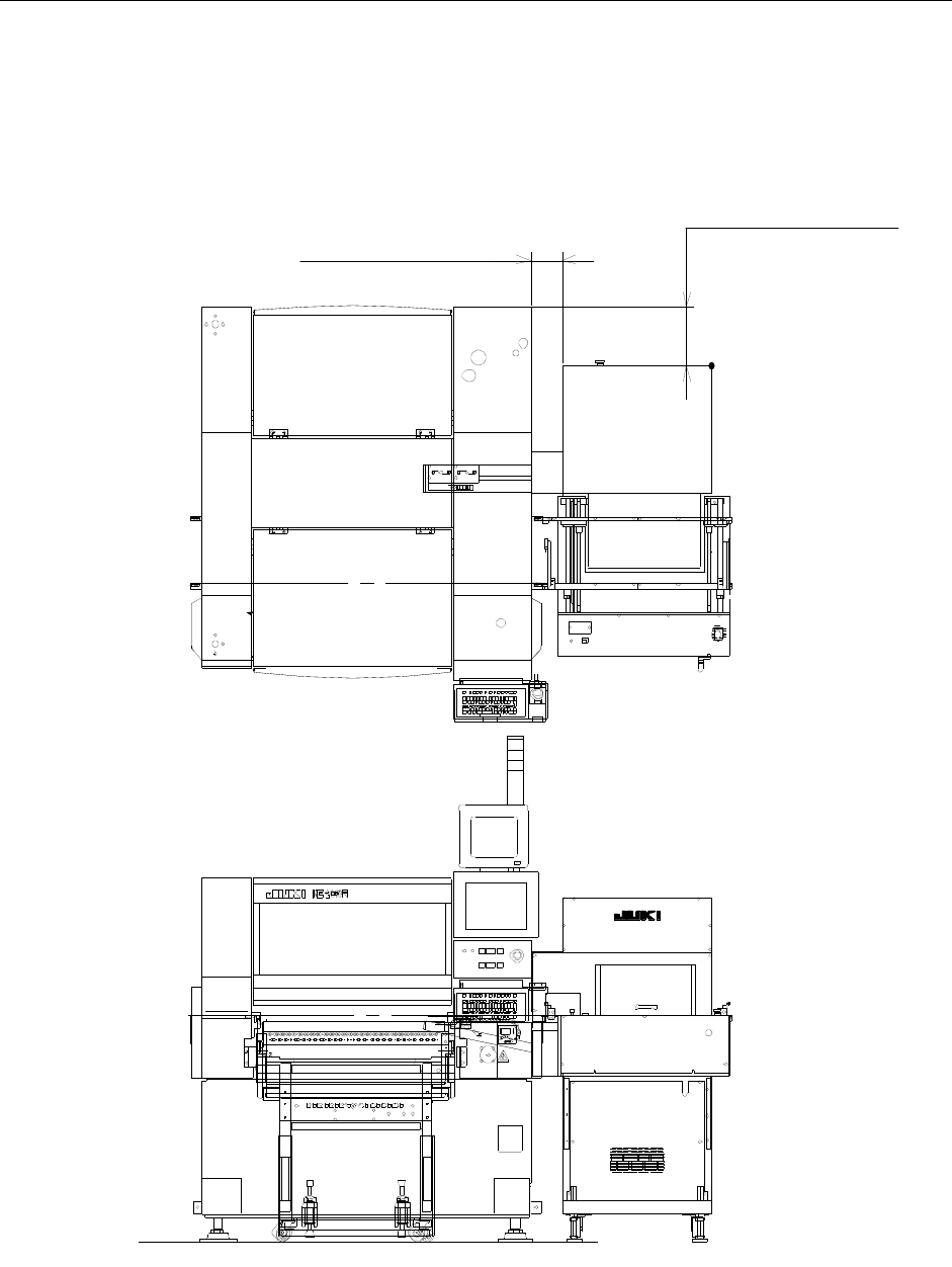
12-3-2 安装位置
12-3-2-1 TR-6SNR/TR-6DNR的安装位置
图 12-3-3 TR-6SNR,TR-6DNR 的安装外观
TR-6SNR M(124.2)
L(124.2)
E(265.3)
TR-6DNR M(124.2)
L(124.2)
E(210.7)
TR-6SNR M(236.5)
L(236.5)
E(236.5)
TR-6DNR M(165.7)
L(165.7)
E(165.7)