NPM-W2--PARTS LIST.pdf - 第223页
Ref No. Remarks R 1 Q'ty 4 基板下受けブロックシングル対応:NPM-W Board Support Block For Single:NPM -W イラスト No. Part No. 品 名 品 番 数量 R 2 パーツリスト Kit No. キット品番 Kit Name キット名称 N610118877AB Part Nam e 備 考 セク ショ ンNo . PARTS LIST Section …

4
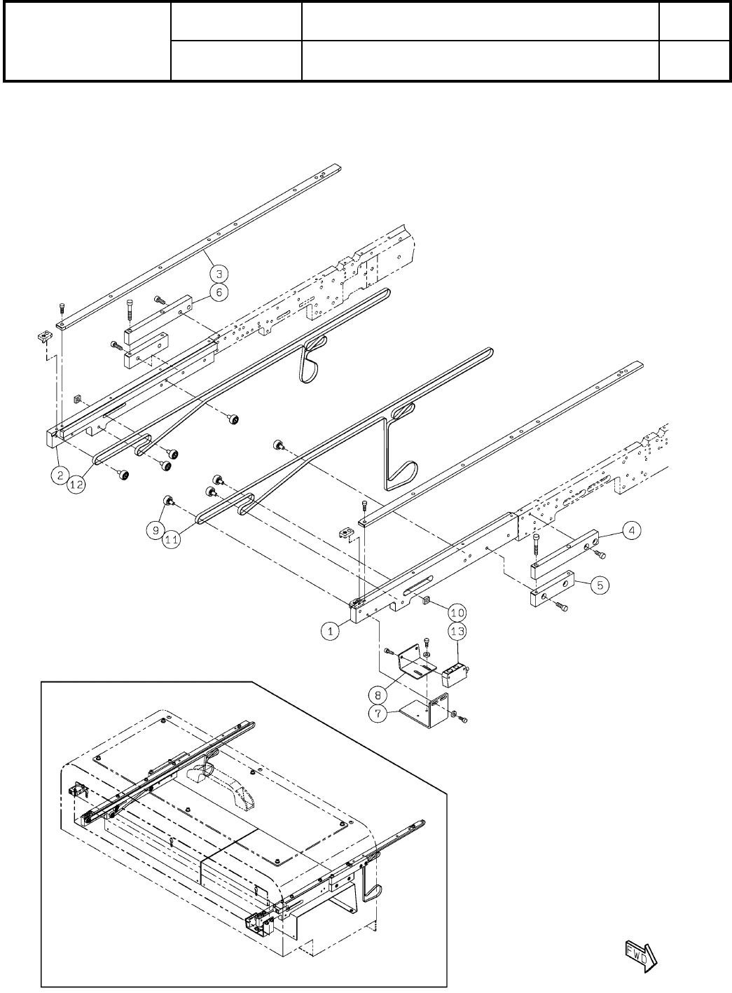
基板下受けブロックシングル対応:NPM-W
Board Support Block For Single:NPM-W
パーツレイアウト
Kit No.
キット品番
Kit Name
キット名称
N610118877AB
セクションNo.
PARTS LAYOUT
Section No.
--
O21
( KN610118877AB-00 )

Ref
No.
Remarks R
1
Q'ty
4
基板下受けブロックシングル対応:NPM-W
Board Support Block For Single:NPM-W
イラスト
No.
Part No.
品 名品 番 数量
R
2
パーツリスト
Kit No.
キット品番
Kit Name
キット名称
N610118877AB
Part Name
備 考
セクションNo.
PARTS LIST
Section No.
R
3
PLATE
1
1 N210146941AB
O22
--
( KN610118877AB-00 )

5-A
延長コンベア(シングル):NPM-W2
Extension Conveyor(Single):NPM-W2
パーツレイアウト
Kit No.
キット品番
Kit Name
キット名称
MTKA001466AA
セクションNo.
PARTS LAYOUT
Section No.
--
O23
( KMTKA001466AA-02-1 )