NPM-W2--PARTS LIST - 第618页
127- A 延長コンベ ア(デュアル):NPM -W2 Extension C onveyor(Dual):N PM- W 2 パーツレイアウト Kit No. キット 品番 Kit Name キット名称 MTKA001470AA セクションNo. PARTS LAYOUT Section No. - - O417 ( KMTKA001470AA-02-1 )

Ref
No.
Remarks R
1
Q'ty
126
基板下受けブロックデュアル(シングル対応):NPM-W
Board Support Block Dual(for Single):NPM-W
イラスト
No.
Part No.
品 名品 番 数量
R
2
パーツリスト
Kit No.
キット品番
Kit Name
キット名称
N610134594AB
Part Name
備 考
セクションNo.
PARTS LIST
Section No.
R
3
PLATE
1
1 N210166824AA
PIN
2
2 N210161075AA
COLLAR
2
3 N210156596AA
BRACKET
1
4 N210169130AA
BRACKET
2
5 N210161077AA
BLOCK
1
6 N210166704AA
BRACKET
2
7 N210156599AA
LEVER
1
8 N210161078AB
LEVER
1
9 N210161079AB
BOLT
12
10 N510067773AA Low Head Cap Screw M4X8-8.8 A2J(Trivalent)
CAM-FOLLOWER
2
11 KXF00BFAA00 CF3UU-A
O416
--
( KN610134594AB-01 )

127-A
延長コンベア(デュアル):NPM-W2
Extension Conveyor(Dual):NPM-W2
パーツレイアウト
Kit No.
キット品番
Kit Name
キット名称
MTKA001470AA
セクションNo.
PARTS LAYOUT
Section No.
--
O417
( KMTKA001470AA-02-1 )

Ref
No.
Remarks R
1
Q'ty
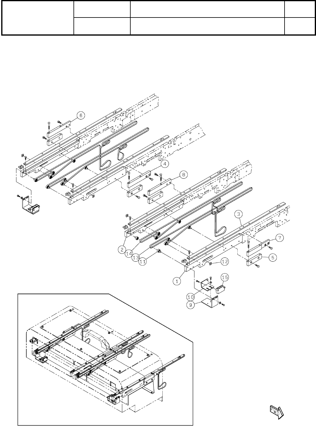
127-A
延長コンベア(デュアル):NPM-W2
Extension Conveyor(Dual):NPM-W2
イラスト
No.
Part No.
品 名品 番 数量
R
2
パーツリスト
Kit No.
キット品番
Kit Name
キット名称
MTKA001470AA
Part Name
備 考
セクションNo.
PARTS LIST
Section No.
R
3
FRAME
2
1 MTPA002247AA
FRAME
2
2 MTPA002248AA
GUIDE
4
3 MTPA002249AA
PLATE
1
4 MTPA002250AA
PLATE
4
5 MTPA002251AA
PLATE
1
6 MTPA002252AA
PLATE
1
7 MTPA002729AA
PLATE
1
8 MTPA002796AA
BRACKET
2
9 N210162350AA
BRACKET
2
10 N210143083AA
PULLEY
16
11 N610127907AA
NUT
4
12 N510048038AA NSMT-04-4
BELT
2
13 MTNK000184AA TA-4UEB M/D 4.5WX1602.0L
BELT
2
14 N510064634AA TA-4UEB M/D 4.5WX1394.0L
SENSOR(E3S-LS3N:900mm)
2
15 N610102197AA
O418
--
( KMTKA001470AA-02-1 )