NPM-W2--PARTS LIST - 第752页
171-C 可動カバー:NPM-W2 Mov able Cover:NPM -W 2 パーツレイアウト Kit No. キット 品番 Kit Name キット名称 N610152434AA セクションNo. PARTS LAYOUT Section No. - - O551 ( KN610152434AA-09-3 )

Ref
No.
Remarks R
1
Q'ty
171-B
可動カバー:NPM-W2
Movable Cover:NPM-W2
イラスト
No.
Part No.
品 名品 番 数量
R
2
パーツリスト
Kit No.
キット品番
Kit Name
キット名称
N610152434AA
Part Name
備 考
セクションNo.
PARTS LIST
Section No.
R
3
BRACKET
1
1 N210178917AB
PIN
2
2 N210178918AA
COLLAR
2
3 N210178920AA
NUT
1
4 N210193319AB
BLOCK
1
5 N210193318AC
SHAFT
1
6 N210201218AB
CAM
1
7 MTPA002493AB
BLOCK
1
8 N210201228AA
PLATE
1
9 MTPA002390AA
PIN
1
10 MTPA002505AA
PIN
1
11 MTPA002590AB
BRACKET
1
12 N210178925AD
PLATE
1
13 MTPB001459AC
COVER
1
14 MTPB001506AA
LEVER
1
15 MTPB002142AB
LEVER
1
18 MTKP000444AC
CYLINDER
1
19 MTKP002243AA
NUT
7
20 N510017859AA
Hexagon nut Type-3 Best class M4-6H-4T A2J (Trivalent)
SPACER
1
21 N510068748AA CU-607PH
SPACER
1
22 N510034994AA CF-402ZE
BEARING
5
23 N510022701AA MR84ZZ
BEARING
4
24 KXF03YBAA00 MF84ZZMC3
BEARING
2
25 N510013601AA 686AZZ
JOINT
2
27 N510066470AA KQ2L06-01AS
ROD-END
1
28 MTNB000088AA NHS10T P1.25
SHIM
8
29 N510069632AA BRF004006010
STOPPER
1
30 N510036432AA SPM-M4
SWITCH
1
31 N510055356AA
S
D4NH-1DBC
JOINT
1
32 KXF06F4AA00 53015030-WM
SPACER
2
33 N510019897AA ASF-520E
BOLT
2
34 N510001582AA SRBS-M4X30
BOLT
2
35 N510000282AA SRBS-M5X10
SHIM
1
36 MTNK000355AA BRF010014100
BLOCK
1
37 MTPA006224AA
BLOCK
1
38 MTPA006225AA
STOPPER
2
39 MTPA006226AA
SPACER
4
40 N510008934AA CF-408ZE
BOLT
1
41 N510017676AA
Hexagon head bolt Best class M10X20-6g 4T A2J (Trivalent)
O550
--
( KN610152434AA-09-2 )

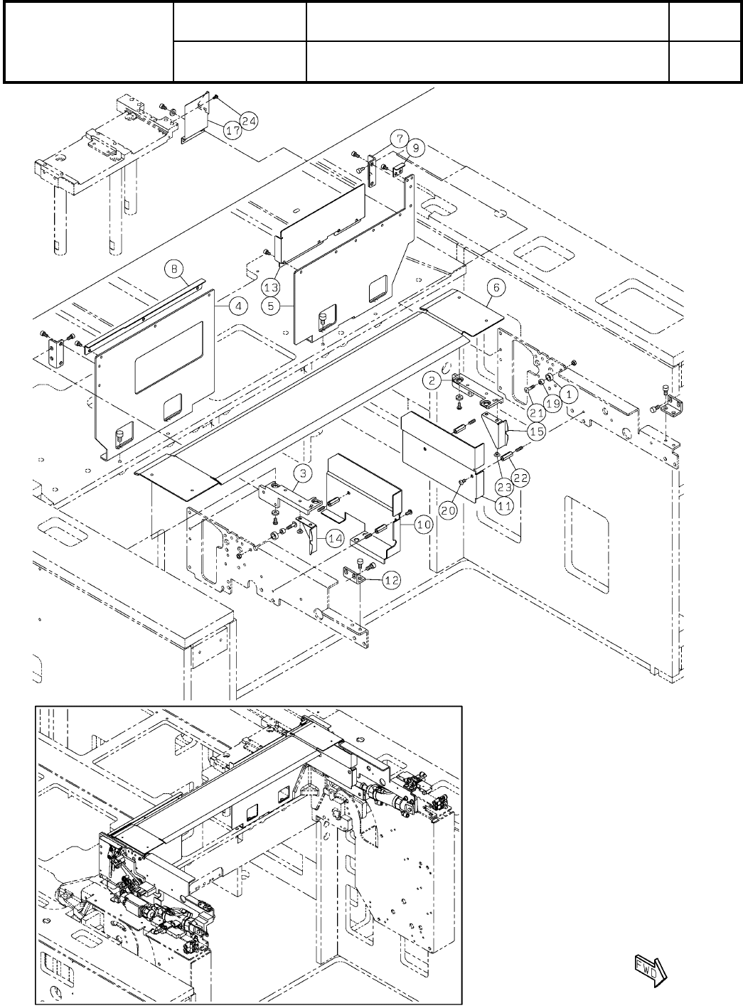
171-C
可動カバー:NPM-W2
Movable Cover:NPM-W2
パーツレイアウト
Kit No.
キット品番
Kit Name
キット名称
N610152434AA
セクションNo.
PARTS LAYOUT
Section No.
--
O551
( KN610152434AA-09-3 )

Ref
No.
Remarks R
1
Q'ty
171-C
可動カバー:NPM-W2
Movable Cover:NPM-W2
イラスト
No.
Part No.
品 名品 番 数量
R
2
パーツリスト
Kit No.
キット品番
Kit Name
キット名称
N610152434AA
Part Name
備 考
セクションNo.
PARTS LIST
Section No.
R
3
WASHER
2
1 N210160059AA
BRACKET
1
2 N210179380AB
BRACKET
1
3 N210193339AB
COVER
1
4 N210178932AE
COVER
1
5 N210178933AE
COVER
1
6 N210178934AC
BRACKET
2
7 N210193340AB
COVER
1
8 N210193341AC
COVER
1
9 N210194620AC
COVER
1
10 N210201235AC
COVER
1
11 N210201236AD
BRACKET
2
12 MTPB001359AB
COVER
1
13 MTPB001360AB
COVER
1
14 MTPB001504AC
COVER
1
15 MTPB001505AC
COVER
1
17 MTPB002137AB
SPACER
2
19 N510017097AA CB-405E
BOLT
12
20 N510000423AA SRBS-M4X8
SCREW
2
21 N510018266AA
Cross recessed Truss head machine screw M4X16-4.8 A2S (Trivalent)
SPACER
4
22 N510049870AA ASB-420E
SCREW
4
23 N510036791AA
Cross recessed Truss head machine screw M4X4-4.8 A2S (Trivalent)
BOLT
2
24 N510022475AA SRBS-M3X6
O552
--
( KN610152434AA-09-3 )