KD-2077_Installation - 第6页
Rev1.1 第 1 章 安装要领书 1-2 2. 主机的搬运方法 <程序> 1. 用叉车移动时,请把叉车的爪从主机前方放入, 确认叉车爪全部伸出主机的后方之后, 再 抬起移动。 2. 如果有选购的脚轮,请升起调节器, 使脚轮充分接触地板(地面) 后再进行机器的搬运及 移动。 < 注意 > 1. 用叉车移动时,请把货物重心标志放到叉车爪的中央位置。 ( 板条货架也同样。 ) 2. 请不要安装着视觉监视器、信号灯的状态用叉车移动主机。 (…

Rev1.1
第 1 章 安装要领书
1-1
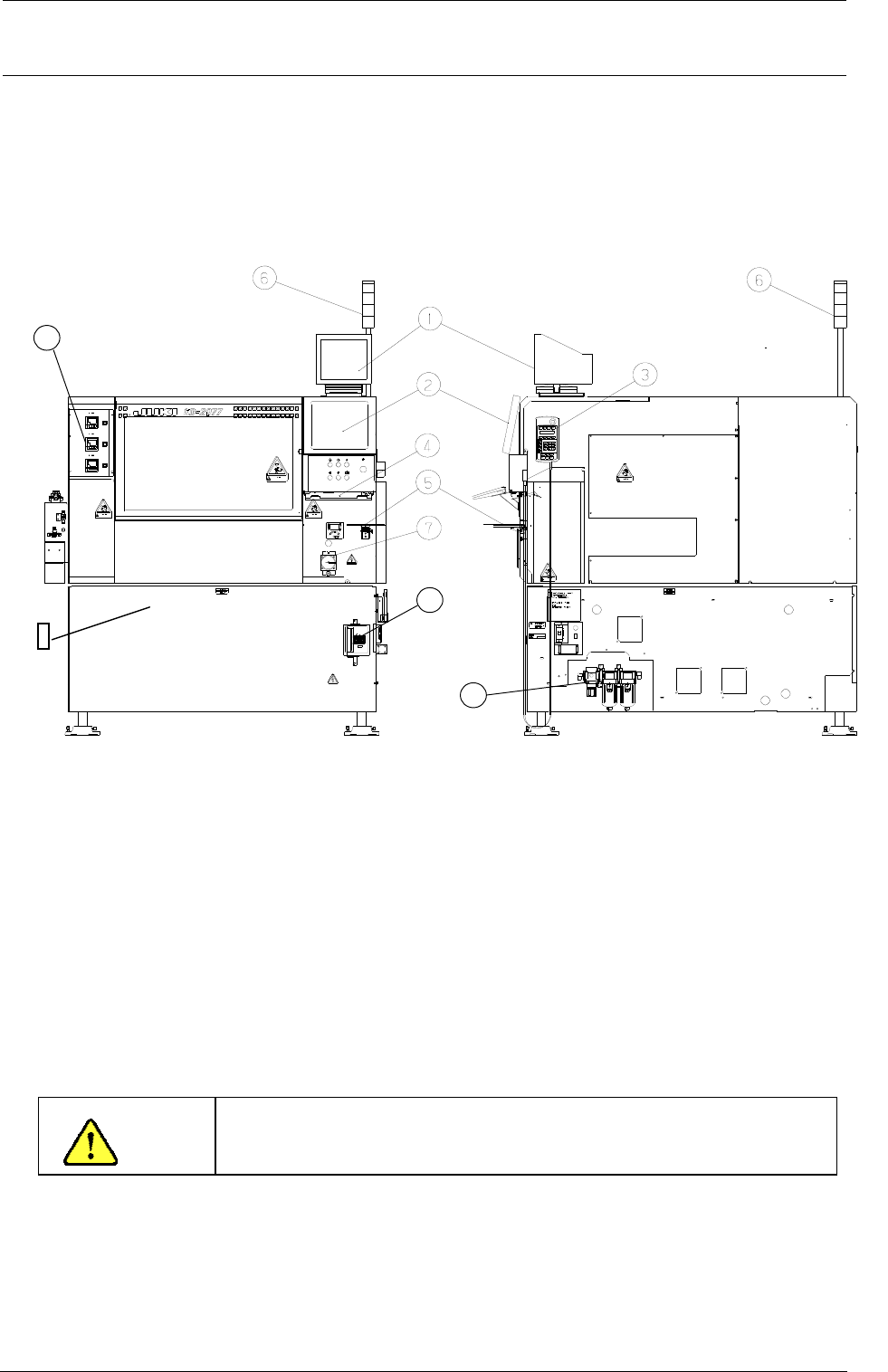
1. 基本构成和各部分的名称
1-1. KD-2077
图 1-1-1 正面图 图 1-1-2 右侧面图
① 视觉监视器 ⑥ 信号灯
② 液晶显示器 ⑦ 主开关
③ HOD 装置 ⑧ 滤光镜调整器
④ 键盘 ⑨ 气压表/FDD 装置(选购)
⑤ 鼠标 ⑩ 温度调节器
注意
如果刚开封就发现机器有故障部位、缺少零件等,请拍下照片并记录下来。
索赔处理时可能需要提供。
⑧
9
10
8

Rev1.1
第 1 章 安装要领书
1-2
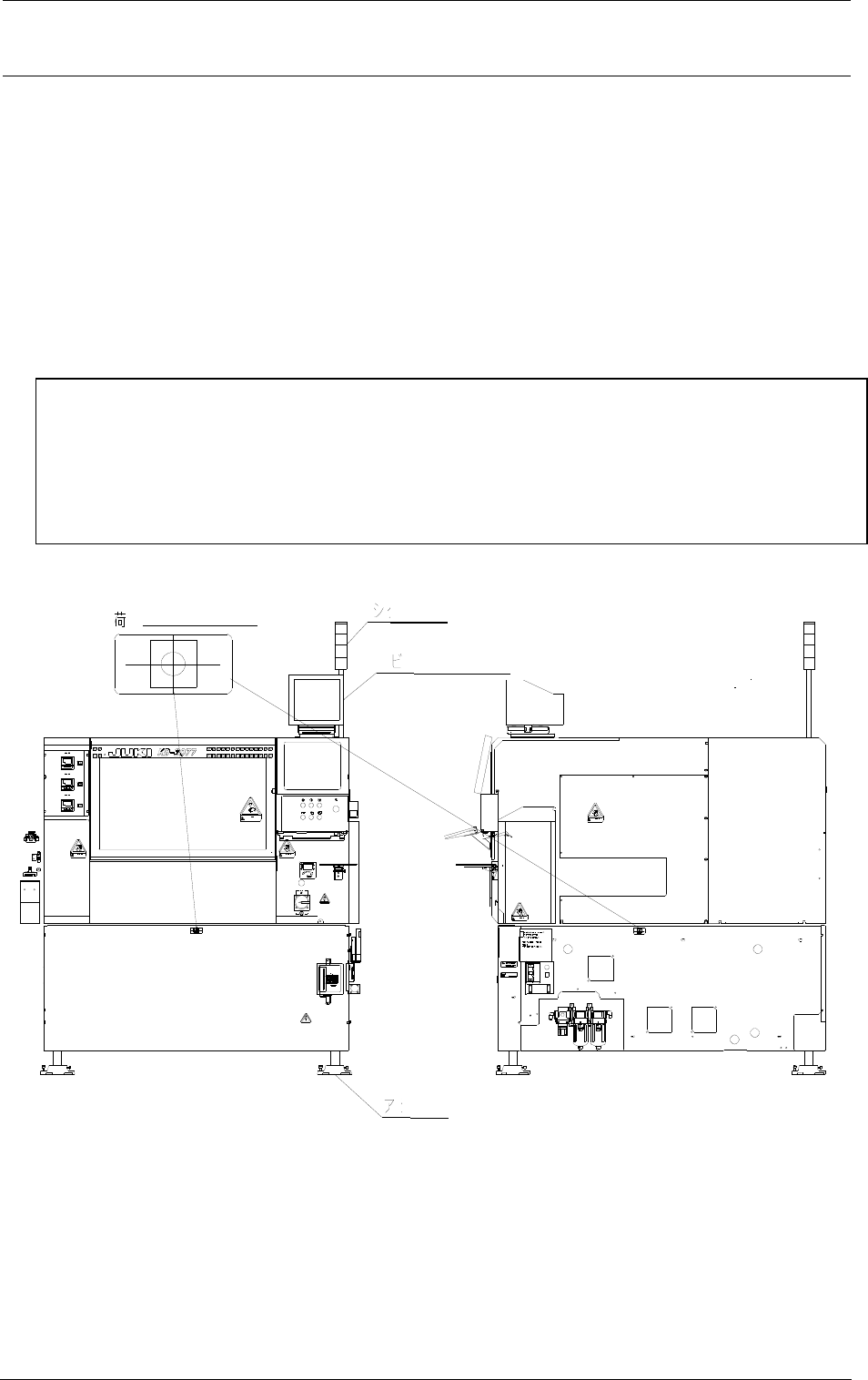
2. 主机的搬运方法
<程序>
1. 用叉车移动时,请把叉车的爪从主机前方放入,确认叉车爪全部伸出主机的后方之后,再
抬起移动。
2. 如果有选购的脚轮,请升起调节器,使脚轮充分接触地板(地面)后再进行机器的搬运及
移动。
<注意>
1. 用叉车移动时,请把货物重心标志放到叉车爪的中央位置。
(板条货架也同样。)
2. 请不要安装着视觉监视器、信号灯的状态用叉车移动主机。
(板条货架也同样。)
图 2-1 货物重心标志
信号灯
视觉监视器
货物重心标志
脚轮

Rev1.1
第 1 章 安装要领书
1-3
3. 有关包装箱包装材料等的除去
3-1. 机器主体
请取下包装机器的塑料包装。(仅限对国内出货机器)
塑料包装尺寸∶1800×1700×1500(横宽×纵深×高度) t 0.05(厚度)单位=mm
注) 所有的塑料包装尺寸,均是按照对应最大基板尺寸的机器外形尺寸设定的。
图 3-1