00194440-10_SM_X-Series_Customer_en - 第384页
Item no.: 00194440-10 ASM Assembly Systems GmbH & Co. KG Rupert-Mayer-Strasse 44 81379 München Germany www.siplace.com

Description of the Circuit Boards
Stationary cameras 6.7.2 Vision Control Board for IC Camera or FC Camera
382 Service Manual SIPLACE X Series
6.7.2
6.7.2 Vision Control Board for IC Camera or FC Camera
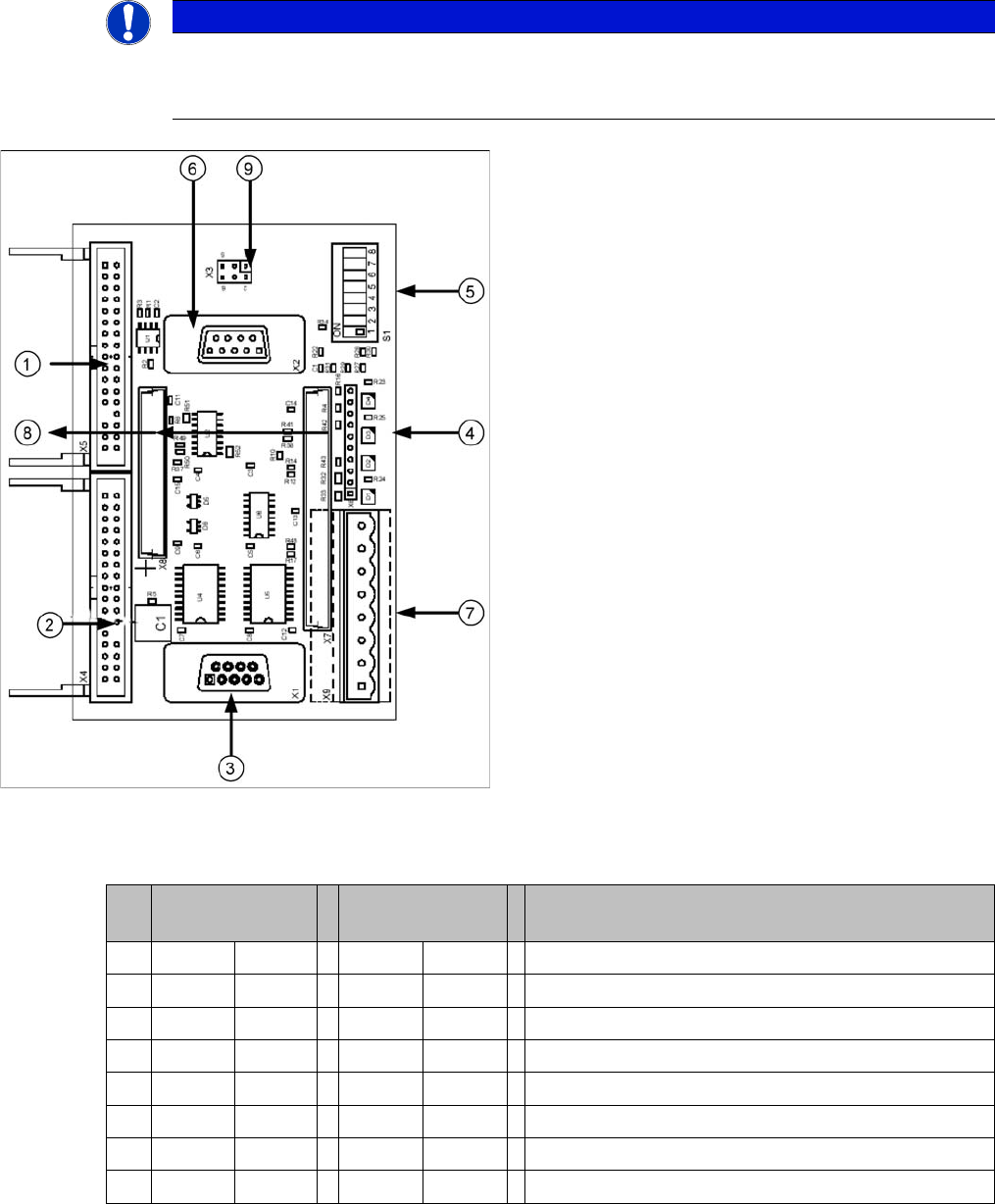
Vision Control Board for IC Camera or FC Camera
The vision control board is installed in sector 2 and sector 4 for the stationary cameras.
to 5) DIP switch
NOTICE
Vision control board
When using stationary camera ≧ version 04, the Vision control board is integrated into the
cameras. The Vision control board no longer applies in the sectors.
Vision control board TwinHead IC camera
1. Connector for FC Camera illumination
2. Connector for IC Camera illumination
3. Service connector
4. LEDs (downwards D4 - D1)
+5 V/-15 V/+15 V/+40 V
5. DIP switch
6. Connector CAN Bus
7. Voltage supply for Vision control
Connector for DC/DC converter (sector 2)
DC/DC distributor (sector 4)
8. Connectors for 16 bit CAN Bus processor (TQM mod-
ules)
9. Flash signal (not used for Siplace Vision)
S Sector 2
Main distributor
Sector 4
Subdistributor
Description
1 Off Off CAN terminating resistor - 120 Ohm not set
2 Off Off Reset
3 Off Off Bootstrap
4 Off Off TEST
5 Off ON P1 address switch, gantry ID 1
6ON ONP0 address switch, gantry ID 2
7 Off Off CAN - ID 1
8 Off Off CAN -ID 0
acpage

Item no.: 00194440-10 ASM Assembly Systems GmbH & Co. KG
Rupert-Mayer-Strasse 44
81379 München
Germany
www.siplace.com