P228001e.pdf - 第121页
MODEL TIM-5000 9905-001 TT- 1 Key No. PART No. PART NAME Q'ty REMA RKS 2 630 071 8997 SUPPORT 2 3 630 071 9000 SUPPORT 1 4 630 071 8980 PLATE 1 56 411 141 4503 W ASHER V 12X24X2.5 18 FW 8 57 411 141 3100 W ASHER SPR…

MODEL TIM-5000
9905-001
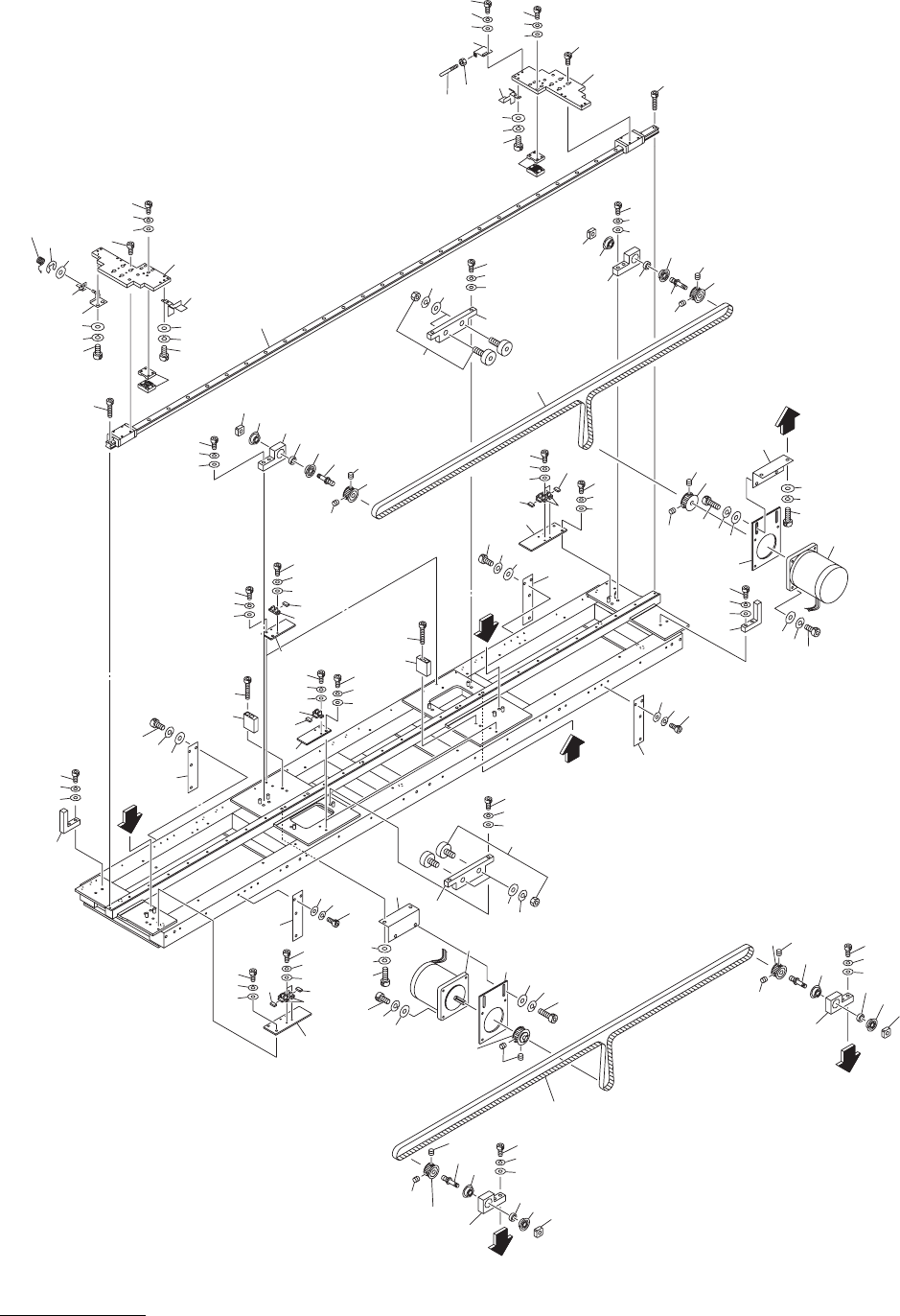
トラバ−ス部 TRAVERS SECTION
Fig. TT-1トラバ−ス取付ブロック Travers Mounting Block
2
4
2
59
57
56
59
57
56
58
57
56
See Fig.TT-2
Key No.137
3
59
57
56
60
57
56
59
57
56
60
57
56
58
57
56
58
57
56

MODEL TIM-5000
9905-001
TT- 1
Key No. PART No. PART NAME Q'ty REMARKS
2 630 071 8997 SUPPORT 2
3 630 071 9000 SUPPORT 1
4 630 071 8980 PLATE 1
56 411 141 4503 WASHER V 12X24X2.5 18 FW8
57 411 141 3100 WASHER SPR 8 18 SW8
58 630 000 8012 BOLT,HEX-SCT 6 M8X20
59 630 000 8036 BOLT,HEX-SCT 8 M8X30
60 630 000 8067 BOLT,HEX-SCT 4 M8X45
NOTE

MODEL TIM-5000
9905-001
トラバ−ス部 TRAVERS SECTION
Fig. TT-2テ−ブル駆動部 Table Driving Section
171
188
132
133
172
173
171
173
127
129
171
173
109
116
176
130
131
171
172
173
163
162
161
174
106
157
163
161
120
105
192
192
101
122
104
138
121
108
101
162
156
107
110
110
172
172
175
171
129
172
173
175
172
171
173
127
174
163
161
108
101
121
138
101
122
192
104
192
162
173
172
171
170
126
168
166
128
167
B
C
A
188
187
186
113
112
124
169
167
166
125
173
172
171
113
113
112
173
172
171
128
120
157
156
107
166
167
168
188
187
186
112
113
124
188
187
186
123
169
166
102
117
118
161
162
163
191
103
105
161
162
163
167
163
162
161
170
126
128
166
168
167
163
162
161
138
101
122
101
108
104
192
192
B
163
162
161
138
101
122
101
108
104
192
192
A
188
187
186
123
112
113
113
161
118
191
103
191
163
162
161
117
125
166
168
167
162
163
102
166
167
169
166
167
168
128
173
172
171
C
121
121