NXTII机械手册 - 第302页
6. 预防保养 QD145-15 278 NXT II 机械手册 7. 请用刷子在 Z 轴导向轴 (2) 上均匀地涂敷润滑油。 8. 用手动将 Z 轴上下移动,使润滑油循环。 9. 用清洁的布,擦去渗出的多余的润滑油。 10.用绵棒擦去机械阀驱动用凸轮推 杆 (3)的污垢。 11.请使用绵棒在机械阀驱动用凸轮推杆 (3)的内部和外周涂敷 0.004cc 的 Daphne Ex - ponex No.2。 12.使用绵棒擦去渗出的多余的润…

QD145-15 6. 预防保养
NXT II 机械手册 277
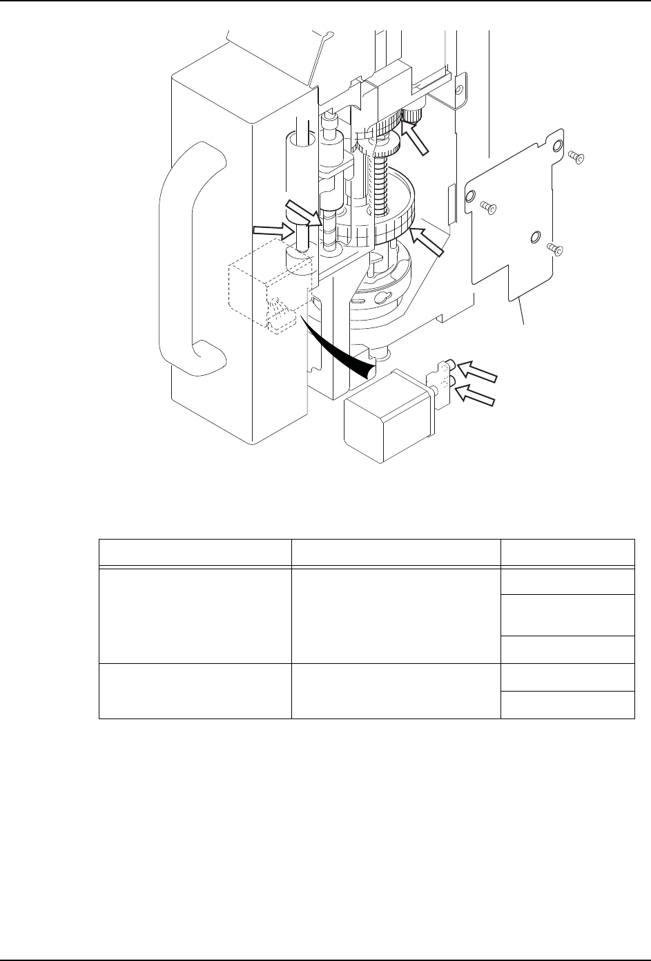
6.10.8 H08/H12(S) 工作头的加油
〈伺服轴〉
备注 )对于加油量少的加油作业,推荐使用治具的注射筒 (S61439) 。在注射筒上有刻度,
请作为加油量的基准。
1. 拆下贴装工作头。(详细请参考 「5.8 贴装工作头的拆除 / 安装」。)
2. 拆除盖罩。
3. 用清洁的布,擦去Z轴滚珠丝杆(1)和Z轴导向轴(2)的污垢。
4. 取 0.07cc 的 Daphne Exponex No.2 到毛刷上。
5. 请用刷子在 Z 轴滚珠丝杆 (1) 上均匀地涂敷润滑油。
6. H08 工作头取 0.063cc,H12(S) 工作头取 0.059cc 的 Daphne Exponex No.2 到毛刷上。
NXTPHD020Sb
3
3
2
1
4
5
Ⲫᵓ
润滑油 加油处 加油量 (cc)
Daphne Exponex No.2( 出光 ) (1) Z 轴滚珠丝杆 0.07
(2) Z 轴导向轴 0.063<H08>,
0.059<H12(S)>
(3) 机械阀驱动用凸轮推杆 0.004
Mobilith SHC460WT(Mobil) (4) Q 轴齿轮 ( 上部马达侧 ) 0.138
(5) R 轴齿轮 0.224

6. 预防保养 QD145-15
278 NXT II 机械手册
7. 请用刷子在 Z 轴导向轴 (2) 上均匀地涂敷润滑油。
8. 用手动将 Z 轴上下移动,使润滑油循环。
9. 用清洁的布,擦去渗出的多余的润滑油。
10.用绵棒擦去机械阀驱动用凸轮推杆 (3)的污垢。
11.请使用绵棒在机械阀驱动用凸轮推杆 (3)的内部和外周涂敷 0.004cc 的 Daphne Ex
-
ponex No.2。
12.使用绵棒擦去渗出的多余的润滑油。
13.用清洁的布,擦去 Q 轴齿轮 (4) 和 R 轴齿轮 (5) 的污垢。
14.取 0.138cc 的 Mobilith SHC460WT 到毛刷上。
15.请用刷子在 Q 轴齿轮 (4) 上均匀地涂敷指定润滑油。
16.取 0.224cc 的 Mobilith SSHC460WT 到毛刷上。
17.请用刷子在 R 轴齿轮 (5) 上均匀地涂敷指定润滑油。
18.用手动将 Q 轴齿轮 (4) 和 R 轴齿轮 (5) 旋转,不浪费润滑油进行涂敷。
19.用清洁的布,擦去渗出的多余的润滑油。
2
5
5
3
1;73+'6H
4
1
Ⲫᵓ

QD145-15 6. 预防保养
NXT II 机械手册 279
6.10.9 H12HS 工作头的加油
备注 )对于加油量少的加油作业,推荐使用治具的注射筒 (S61439) 。在注射筒上有刻度,
请作为加油量的基准。
1. 拆下贴装工作头。(详细请参考 「5.8 贴装工作头的拆除 / 安装」。)
2. 拆除盖罩。
3. 用清洁的布,擦去Z轴滚珠丝杆(1)和Z轴导向轴(2)的污垢。
4. 取 0.058cc 的 NS7 或者 SRL 到毛刷上。
5. 请用刷子在 Z 轴滚珠丝杆 (1) 上均匀地涂敷润滑油。
6. 取 0.064cc 的 Daphne Exponex No.2 到毛刷上。
7. 请用刷子在 Z 轴导向轴 (2) 上均匀地涂敷润滑油。
8. 用手动将 Z 轴上下移动,使润滑油循环。
9. 用清洁的布,擦去渗出的多余的润滑油。
10.用绵棒擦去机械阀驱动用凸轮推杆 (3)的污垢。
11.请使用绵棒在机械阀驱动用凸轮推杆 (3)的内部和外周涂敷 0.004cc 的 Daphne Ex
-
ponex No.2。
12.使用绵棒擦去渗出的多余的润滑油。
润滑油 加油处 加油量 (cc)
NS7(NSK) 或者 SRL* (协同油脂) (1) Z 轴滚珠丝杆 0.058
Daphne Exponex No.2( 出光 ) (2) Z 轴导向轴 0.064
(3) 机械阀驱动用凸轮推杆 0.004
3
3
01MEC-0195Sb
1
Ⲫᵓ
2