PTS-XPFL-04JE - 第240页
A A B B A A B B Ref. TRAY ELEVATOR 2/2 3 2 83 111 111 93 40 74 74 71 71 60 46 42 53 50 50 51 51 117 96 95 48 24 88 80 80 78 35 34 55 34 35 57 17 18 20 25 15 24 13 12 102 103 100 100 107 7 4 10 32 28 21 22 23 19 14 2 16 1…

MTU-A(TRAY ELEVATOR) 2/2
MTU-A(トレイ エレベータ) 2/2
AGGTF9512
No. Drg.No. & Code No. QTY Description Rating Materials Remarks
番号 図番 & コード番号 個数 品名 規格 材質 備考
75 W1023A 4 WASHER, LOCK ワッシャ スプリング 5M/M FE
76 GGTF3082 1 BKT BKT FE
77 H5300A 4 BOLT, HEX SOCKET ボルト 六角穴 M05X015 FE
78 W1023A 4 WASHER, LOCK ワッシャ スプリング 5M/M FE
79 W1044A 4 WASHER, FLAT ワッシャ 平 4W- 5 FE
80 GGTF3062 1 BKT BKT FE
81 H5305A 2 BOLT, HEX SOCKET ボルト 六角穴 M05X030 FE
82 W1023A 2 WASHER, LOCK ワッシャ スプリング 5M/M FE
83 H5306A 1 BOLT, HEX SOCKET ボルト 六角穴 M05X035 FE
84 GGTF3292 1 BKT BKT FE
85 H5297A 2 BOLT, HEX SOCKET ボルト 六角穴 M05X008 FE
86 W1023A 2 WASHER, LOCK ワッシャ スプリング 5M/M FE
87 A1042W 1 AMPLIFIER アンプ HPX-NT2 OT
88 K51710 2 SCREW, C/R TRUSS 小ネジ 十穴トラス M03X005(3カ シロ) FE
92 GGTF3360 1 PULLEY, MOTOR プーリ モータ OT
93 N4027A 1 SCREW, HEX SOCKET SET ネジ 六角穴止め M04X005 クボミサキ FE
94 N1039A 1 NUT, LOCK ナット ロック WBK12L-01 OT
95 N4027A 1 SCREW, HEX SOCKET SET ネジ 六角穴止め M04X005 クボミサキ FE
96 DETR6560 1 PULLEY プーリ OT
97 H45097 1 BELT, TIMING ベルト タイミング 480-3GT-15 OT
98 GGTF3370 1 CAP キャップ AL
99 H5275A 4 BOLT, HEX SOCKET ボルト 六角穴 M03X008 FE
100 W1021A 4 WASHER, LOCK ワッシャ スプリング 3M/M FE
101 W1089H 1 WASHER ワッシャ WSSB20-5-3 OT
102 H5295A 1 BOLT, HEX SOCKET ボルト 六角穴 M04X035 FE
103 W1022A 1 WASHER, LOCK ワッシャ スプリング 4M/M FE
104 H3326C 1 BUSHING ブシュ PSL-D-10 OT
105 H5268Y 4 BOLT, HEX SOCKET ボルト 六角穴 M02.5X012 FE
106 GGTF3132 2 BKT BKT FE
107 H5288A 4 BOLT, HEX SOCKET ボルト 六角穴 M04X010 FE
108 W1022A 4 WASHER, LOCK ワッシャ スプリング 4M/M FE
109 K4148L 1 FLEXIBLE TRACK ケーブルベア TKP0130-1BR18-27L OT
110 H5287A 4 BOLT, HEX SOCKET ボルト 六角穴 M04X008 ゼンネジ FE
111 W1022A 4 WASHER, LOCK ワッシャ スプリング 4M/M FE
112 GGTF3500 1 COVER カバー FE
113 H5286A 5 BOLT, HEX SOCKET ボルト 六角穴 M04X006 FE
114 W1022A 5 WASHER, LOCK ワッシャ ス
プ
リン
グ
4M/M FE
239
PTS-XPFL-04JE

AA
BB
AA
BB
Ref.
TRAY ELEVATOR 2/2
3
2
83
111
111
93
40
74
74
71
71
60
46
42
53
50
50
51
51
117
96
95
48
24
88
80
80
78
35
34
55
34
35
57
17
18
20
25
15
24
13
12
102
103
100
100
107
7
4
10
32
28
21
22
23
19
14
2
16
1
3
5
6
11
5
6
9
8
29
33
49
26
54
54
56
55
56
57
27
31
30
36
61
59
62
52
44
45
47
41
43
36
37
38
39
69
73
74
120
121
122
72
70.1
76
77
75
79
81
81
70.1
72
71
73
58
33
84
82
89
87
90
94
92
91
70
72
73
74
114
115
110
116
118
112
113
70
73
72
71
98
97
101
99
103
101
105
106
109
108
119
104
105
102
85
86
AGGTF9531
240
PTS-XPFL-04JE

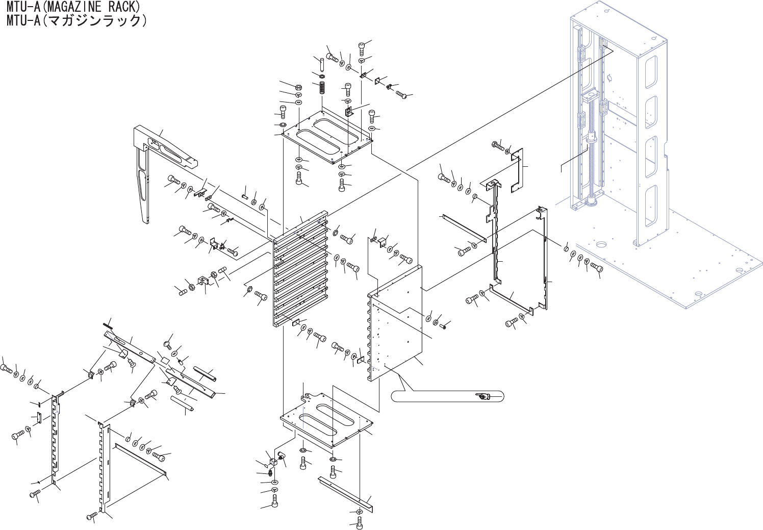
MTU-A(MAGAZINE RACK)
MTU-A(マガジンラック)
AGGTF9531
No. Drg.No. & Code No. QTY Description Rating Materials Remarks
番号 図番 & コード番号 個数 品名 規格 材質 備考
1 GGTF4012 1 PLATE, UPPER プレート 上 AL
2 H5298A 6 BOLT, HEX SOCKET ボルト 六角穴 M05X010 FE
3 W1012A 6 WASHER, CONICAL ワッシャ 皿 M- 5-L FE
4 H5350C 1 BOLT, HEX SOCKET ボルト 六角穴 M08X070(ゼンネジ) FE
5 W1025A 2 WASHER, LOCK ワッシャ スプリング 8M/M FE
6 W1046A 2 WASHER, FLAT ワッシャ 平 4W- 8 FE
7 N10799 1 NUT, HEX ナット 六角 M08(3カ クロ) FE
8 H5342A 1 BOLT, HEX SOCKET ボルト 六角穴 M08X025 FE
9 W1025A 1 WASHER, LOCK ワッシャ スプリング 8M/M FE
10 W1040X 1 WASHER, FLAT ワッシャ 平 8M/MX1.6X17(1W-8)(3カ クロ) FE
11 GGTF4400 2 GUIDE, SPRING ガイド スプリング FE
12 W1001C 2 WASHER ワッシャ WSJM25-16-3 OT
13 S3021K 2 SPRING スプリング WL22-60 OT
14 GGTF4133 1 BKT, TERMINAL BKT ターミナル FE
15 H5287A 2 BOLT, HEX SOCKET ボルト 六角穴 M04X008 ゼンネジ FE
16 W1022A 2 WASHER, LOCK ワッシャ スプリング 4M/M FE
17 GGTF4122 1 BKT BKT FE
18 H5275A 2 BOLT, HEX SOCKET ボルト 六角穴 M03X008 FE
19 W1021A 2 WASHER, LOCK ワッシャ スプリング 3M/M FE
20 H5275A 2 BOLT, HEX SOCKET ボルト 六角穴 M03X008 FE
21 W1021A 2 WASHER, LOCK ワッシャ スプリング 3M/M FE
22 W1042A 2 WASHER, FLAT ワッシャ 平 4W- 3 FE
23 GGTF4410 1 BKT, SENSOR BKT センサ FE
24 S4077L 2 SENSOR, PHOTO センサ フォト PM-L44P OT
25 K5173A 2 SCREW, C/R PAN 小ネジ 十穴鍋 M03X010(ステンレス) FE
26 GGTF4043 1 PLATE, SIDE プレート サイド AL
27 H5287A 16 BOLT, HEX SOCKET ボルト 六角穴 M04X008 ゼンネジ FE
28 W1011A 16 WASHER, CONICAL ワッシャ 皿 M- 4-L FE
29 GGTF3011 1 BKT BKT FE
30 H5342A 3 BOLT, HEX SOCKET ボルト 六角穴 M08X025 FE
31 W1025A 3 WASHER, LOCK ワッシャ スプリング 8M/M FE
32 W1040X 3 WASHER, FLAT ワッシャ 平 8M/MX1.6X17(1W-8)(3カ クロ) FE
33 GGTF4261 2 BOLT, HEX SOCKET ボルト 六角穴 FE
34 H4098A 2 BEARING ベアリング R-1350ZZ OT
35 W10611 2 WASHER, FLAT ワッシャ 平 SSWA7-1.0 OT
36 GGTF4241 2 SPACER スペーサ FE
37 GGTF4251 1 BKT, STOPPER BKT ストッパ FE
241
PTS-XPFL-04JE