P-0329-009_SIGMA-G5SII - 第63页
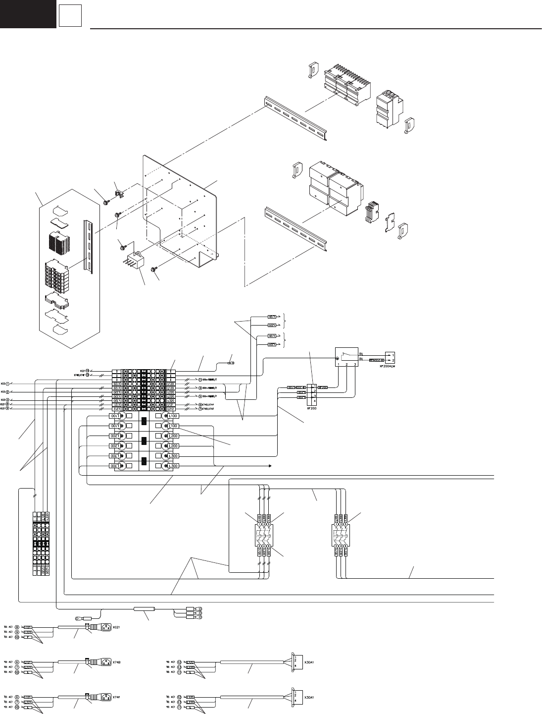
– 57 – ELEC TRI CA L S EC TIO N 2 2006-009 No. Part No. Part Name Qty . Detail Y amaha Hitachi 601 KYB-M657P-00 1010BA42 PCB-MOUNT 1 U95 604 90990-1 1J014 221DA058 SCREW ,P AN HEAD WW 7 P AN M3L18 6 11 KYB-M655M-00 1010G…

– 57 –
ELECTRICAL SECTION 2
2006-009
No.
Part No.
Part Name Qty. Detail
Yamaha Hitachi
601 KYB-M657P-00 1010BA42 PCB-MOUNT 1 U95
604 90990-11J014 221DA058 SCREW,PAN HEAD WW 7 PAN M3L18
611 KYB-M655M-00 1010GD07 HNS,LIGHT-CABLE1 1
612 KYB-M655N-00 1010GD08 HNS,LIGHT-CABLE2 1
613 KYX-M650W-00 HNS,XY-AB-F 1
614 KYX-M650V-00 HNS,XY-AB-B 1
615 KYB-M653V-00 1010BC2J HNS,U95-POW 1
616 KYB-M655R-00 1010GD0S HNS,PCB-LIGHT2 1
617 KYB-M655P-00 1010GD0R HNS,PCB-LIGHT1 1
618 KYB-M655L-00 1010GD06 HNS,PIO 1
619 KYB-M6572-00 1005BC5Y CORD-RS232C-2M 1
620 KYB-M6534-00 1010BA35 BOX 1
621 KYB-M65AB-00 226J0373 MOUNTING_BASE 1
622 90990-11J016 221DA053 SCREW,PAN HEAD WW 5 PAN M4L6 SW+FW
623 KYB-M656F-00 0921E203 ACCESS-WIRING 2
624 90990-11J009 221DA051 SCREW,PAN HEAD WW 2 PAN M3L6 SW+FW

– 58 –
D3
2006-009
8 AC Cable
P
C
P
C
P
C
P
C
L120
L220
E
3101011C8Z
SD
703
723
730
723
730
723
730
724
707
712
732
710
724
704
709
705
704
703
703
706
706
706
706
706
707
724
724
724
724
726
720
726
724
718
725
721
724
729
724
728
727
724
706
725
721
708
708
732
732
733
713
F200
TB:AC1
TB:AC2
Q206 Q221
F200
Q206
Q205
K29
K28
K10
Q221
TB:AC1
TB:AC2
701
702
724
718
723
722
723
722
723
722
725
721
724
719
724
719
723
722
724
706
711
724
706
724
719
724
706
706
708
725
721
724
706
708
Q205
K29 K28 K10
K33A
K33B
TB:AC3
R04F R04B
K33A
K33B
TB:AC3
