PTS-FIFEEDER-16.1.pdf - 第101页
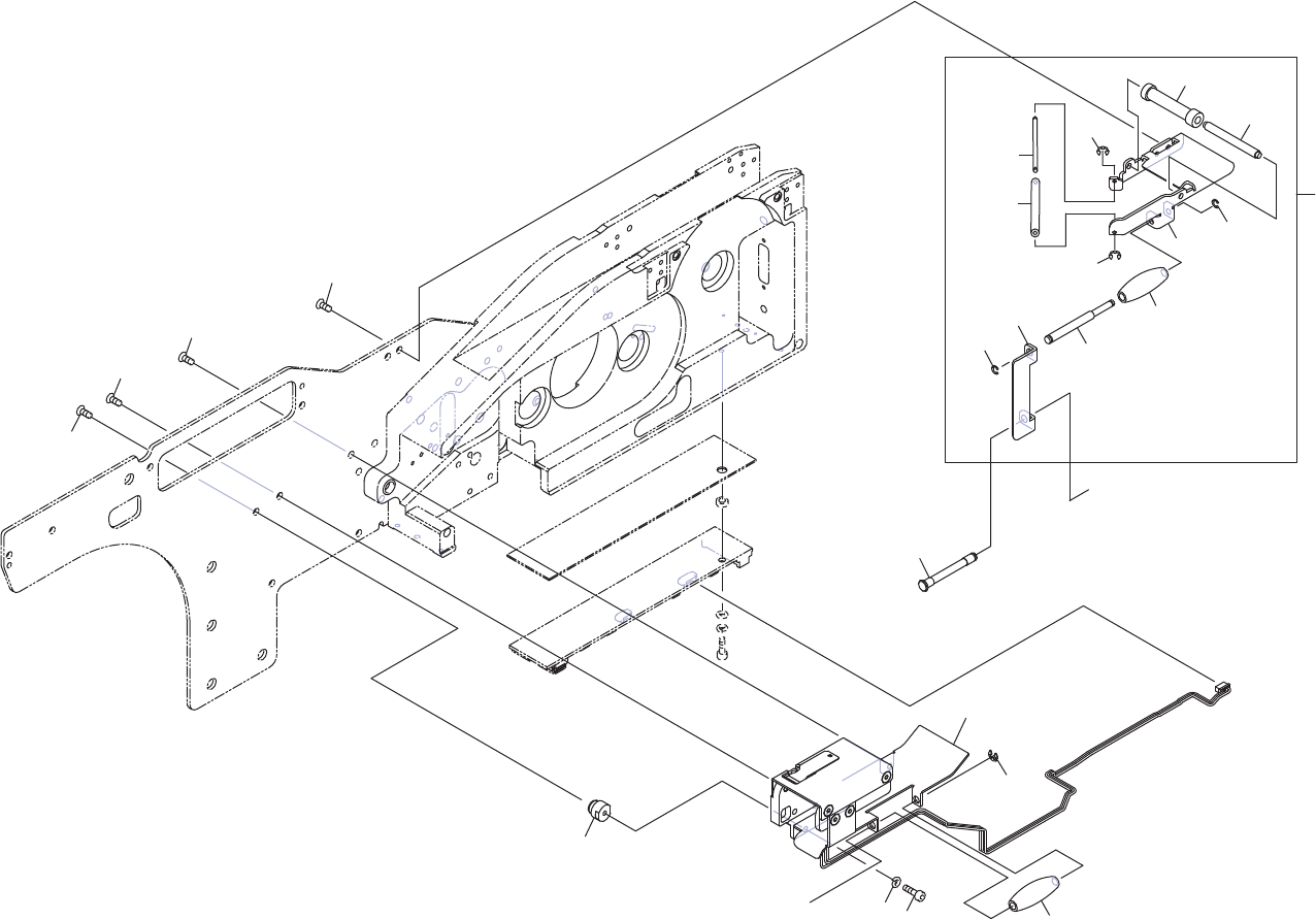
FEEDER W 32c 3/3 フィー ダ W3 2c 3/ 3 AB10323 No. Drg.No. & Code No. QTY Description Rating Remarks 番号 図番 & コード番 号 個数 品名 規格 備考 1 AA8GL0 4 1 SENSO R センサ 2 K5357 L 1 SCREW , HEX SOCKE T COUNTERSUNK 小ネジ 六角穴皿 M03X00 6(3…

GG
GG
2
5
32
33
3
4
18
19
13
22
15
16
17
20
21
14
11
22
23
31
1
9
8
12
AB10323ࣇ࣮ࢲ:F
FEEDER W32c 3/3
100
PTS- FI FEEDER- 16. 1

FEEDER W32c 3/3
フィーダ W32c 3/3
AB10323
No. Drg.No. & Code No. QTY Description Rating Remarks
番号 図番 & コード番号 個数 品名 規格 備考
1 AA8GL04 1 SENSOR
センサ
2 K5357L 1 SCREW, HEX SOCKET COUNTERSUNK
小ネジ 六角穴皿
M03X006(3カ シロ)
3 H54251 1 BOLT, HEX SOCKET
ボルト 六角穴
M03X006(3カ シロ)
4 W1106C 1 WASHER, LOCK
ワッシャ スプリング
3M/M(3カ シロ)
5 K65003 1 SCREW, HEX SOCKET COUNTERSUNK
小ネジ 六角穴皿
M03X005(3カ シロ)
8 PM87182 1 PIN
ピン
9 K5357L 1 SCREW, HEX SOCKET COUNTERSUNK
小ネジ 六角穴皿
M03X006(3カ シロ)
11 2ADLFC001700 1 BKT, ROLLER
BKT ローラ
12 K65003 2 SCREW, HEX SOCKET COUNTERSUNK
小ネジ 六角穴皿
M03X005(3カ シロ)
13 2MDLFC002900 1 BKT, ROLLER
BKT ローラ
14 PJ03983 1 ROLLER
ローラ
15 PM90412 1 PIN
ピン
16 S1003N 1 CIR-CLIP
サークリップ
ST-EW-2.5(3カ シロ)
17 S1003D 1 CIR-CLIP
サークリップ
ST-EW-2(3カ シロ)
18 PJ04522 1 ROLLER
ローラ
19 PM44111 1 PIN
ピン
20 PJ01095 1 ROLLER
ローラ
21 PM44141 1 PIN
ピン
22 S61924 2 CIR-CLIP, E-TYPE
サークリップ E形
E-1.5 (3カ シロ)
23 PB063F0 1 BKT, SUPPORT
BKT 支え
31 PM90421 1 PIN
ピン
32 PJ03983 1 ROLLER
ローラ
33 S1003N 1 CIR-CLIP
サークリップ
ST-EW-2.5(3カ シロ)
101
PTS- FI FEEDER- 16. 1

21
5
6
15
5
5
6
11
12
22
3
14
4
16
14
15
15
16
7
22
9
10
8
1
2
4
4
4
4
࣮ࣜࣝ࣍ࣝࢲ:Fࣥࢳ
REEL HOLDER W32c 15inch
AA85315
102
PTS- FI FEEDER- 16. 1