PTS-FIFEEDER-16.1 - 第124页
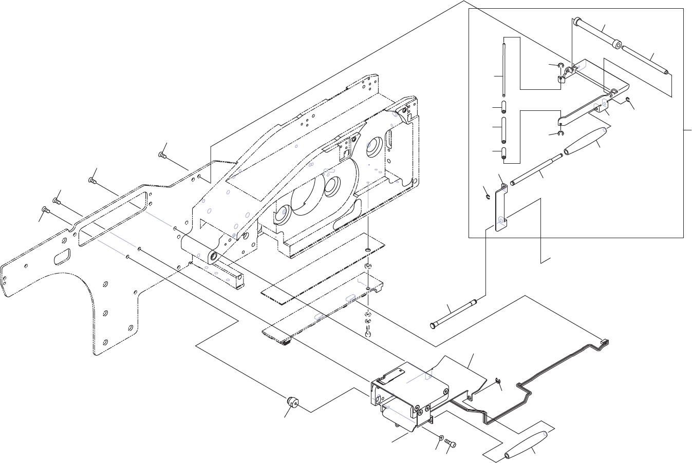
G G G G 2 5 9 8 18 19 13 24 15 16 17 23 14 11 24 25 20 22 21 31 12 32 33 3 4 1 AB10522 ࣇ࣮ࢲ:F FEEDER W56c 3/3 1 2 4 P T S- F I FEE D ER - 1 6 . 1
このページはブランクページです
This page is intentionally blank.
此页是空白页
123
PTS- FI FEEDER- 16. 1

GG
GG
2
5
9
8
18
19
13
24
15
16
17
23
14
11
24
25
20
22
21
31
12
32
33
3
4
1
AB10522ࣇ࣮ࢲ:F
FEEDER W56c 3/3
124
PTS- FI FEEDER- 16. 1

FEEDER W56c 3/3
フィーダ W56c 3/3
AB10522
No. Drg.No. & Code No. QTY Description Rating Remarks
番号 図番 & コード番号 個数 品名 規格 備考
1 AA8GN04 1 SENSOR
センサ
2 K5357M 1 SCREW, HEX SOCKET COUNTERSUNK
小ネジ 六角穴皿
M03X006
3 H5274A 1 BOLT, HEX SOCKET
ボルト 六角穴
M03X006
4 W1021A 1 WASHER, LOCK
ワッシャ スプリング
3M/M
5 K5357H 1 SCREW, HEX SOCKET COUNTERSUNK
小ネジ 六角穴皿
M03X005
8 PM87182 1 PIN
ピン
9 K5357M 1 SCREW, HEX SOCKET COUNTERSUNK
小ネジ 六角穴皿
M03X006
11 2ADLFC001900 1 BKT, ROLLER
BKT ローラ
12 K5357H 2 SCREW, HEX SOCKET COUNTERSUNK
小ネジ 六角穴皿
M03X005
13 2MDLFC003100 1 BKT, ROLLER
BKT ローラ
14 PJ03993 1 ROLLER
ローラ
15 PM90452 1 PIN
ピン
16 S1003N 1 CIR-CLIP
サークリップ
ST-EW-2.5(3カ シロ)
17 S1003D 1 CIR-CLIP
サークリップ
ST-EW-2(3カ シロ)
18 PJ04542 1 ROLLER
ローラ
19 PM44131 1 PIN
ピン
20 PJ00965 1 ROLLER
ローラ
21 PJ01095 1 ROLLER
ローラ
22 S61817 1 SPACER
スペーサ
C-2017-4
23 PM44162 1 PIN
ピン
24 S61924 2 CIR-CLIP, E-TYPE
サークリップ E形
E-1.5 (3カ シロ)
25 PB063F0 1 BKT, SUPPORT
BKT 支え
31 PM90461 1 PIN
ピン
32 PJ03993 1 ROLLER
ローラ
33 S1003N 1 CIR-CLIP
サークリップ
ST-EW-2.5(3カ シロ)
125
PTS- FI FEEDER- 16. 1