PTS-FIFEEDER-16.1.pdf - 第155页
このページはブランクページです This page is intentionally blank. 此页是空白页 1 5 5 P T S- F I FEE D ER - 1 6 . 1

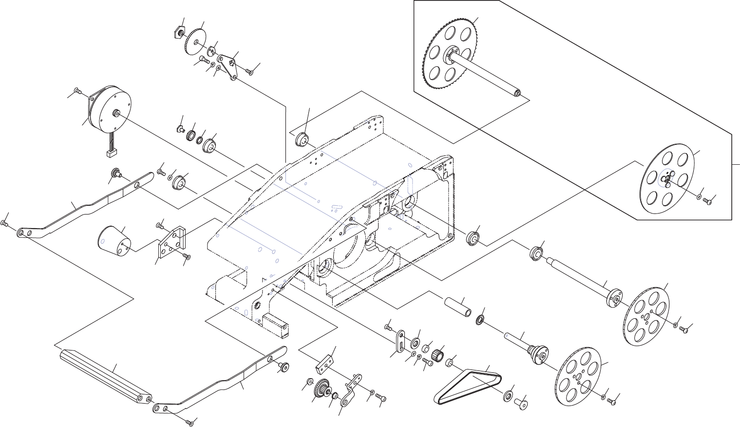
FEEDER W104 1/3
フィーダ W104 1/3
AA4EN28
No. Drg.No. & Code No. QTY Description Rating Remarks
番号 図番 & コード番号 個数 品名 規格 備考
57 PM09NZ1 1 PIN
ピン
58 K5357M 1 SCREW, HEX SOCKET COUNTERSUNK
小ネジ 六角穴皿
M03X006
61 PX06072 1 SEAL, BAR CODE
シール バーコード
unit serial number
62 PJ02962 1 BKT
BKT
63 K5358N 4 SCREW, HEX SOCKET COUNTERSUNK
小ネジ 六角穴皿
M03X018
64 N10795 4 NUT, HEX
ナット 六角
M03(3カ クロ)
65 PJ02971 1 SPACER
スペーサ
66 T4107K 1 DIGITAL SW
デジタルSW
A7BS-254-79-1
67 PX06061 2 SEAL
シール
W104
68 XK04823 1 BOARD, PRINTED CIRCUIT
基板 プリント
69 PB01842 1 PLATE
プレート
70 2MDLFB000302 1 SHEET SW
シートSW
71 XH01560 1 HARNESS
ハーネス
72 PB88197 1 LEVER
レバー
73 PM02WC5 1 PIN
ピン
74 K5359E 1 SCREW, HEX SOCKET COUNTERSUNK
小ネジ 六角穴皿
M04X008
75 PM66294 1 BLOCK
ブロック
76 K5357T 1 SCREW, HEX SOCKET COUNTERSUNK
小ネジ 六角穴皿
M03X008
77 N4018A 1 SCREW, HEX SOCKET SET
ネジ 六角穴止め
M03X003 クボミサキ
79 RZ00490 1 TAPE
テープ
80 RZ00500 1 TAPE
テープ
81 PJ20190 1 GUIDE
ガイド
82 K5358H 1 SCREW, HEX SOCKET COUNTERSUNK
小ネジ 六角穴皿
M03X015
83 N10795 1 NUT, HEX
ナット 六角
M03(3カ クロ)
84 W1021A 1 WASHER, LOCK
ワッシャ スプリング
3M/M
85 W1040R 1 WASHER, FLAT
ワッシャ 平
3M/MX0.5X7(1W-3)(3カクロ)
86 PJ20180 1 GUIDE
ガイド
87 H5280A 1 BOLT, HEX SOCKET
ボルト 六角穴
M03X020
88 W1021A 1 WASHER, LOCK
ワッシャ スプリング
3M/M
89 W1040R 1 WASHER, FLAT
ワッシャ 平
3M/MX0.5X7(1W-3)(3カクロ)
154
PTS- FI FEEDER- 16. 1
このページはブランクページです
This page is intentionally blank.
此页是空白页
155
PTS- FI FEEDER- 16. 1

7
13
20
49
18
19
21
28
62
22
23
24
29
33
31
37
38
39
43
44
45
46
40
41
42
32
53
55
48
56
16
17
36
35
34
54
2
57
57.1
59
58
60
26
60
61
51
47
49
50
52
52
63
64
68
67
69
64
65
63
66
70
8
14
15
1
ࣇ࣮ࢲ:
FEEDER W104 2/3
AA4EN28
156
PTS- FI FEEDER- 16. 1