PTS-FIFEEDER-16.1.pdf - 第161页
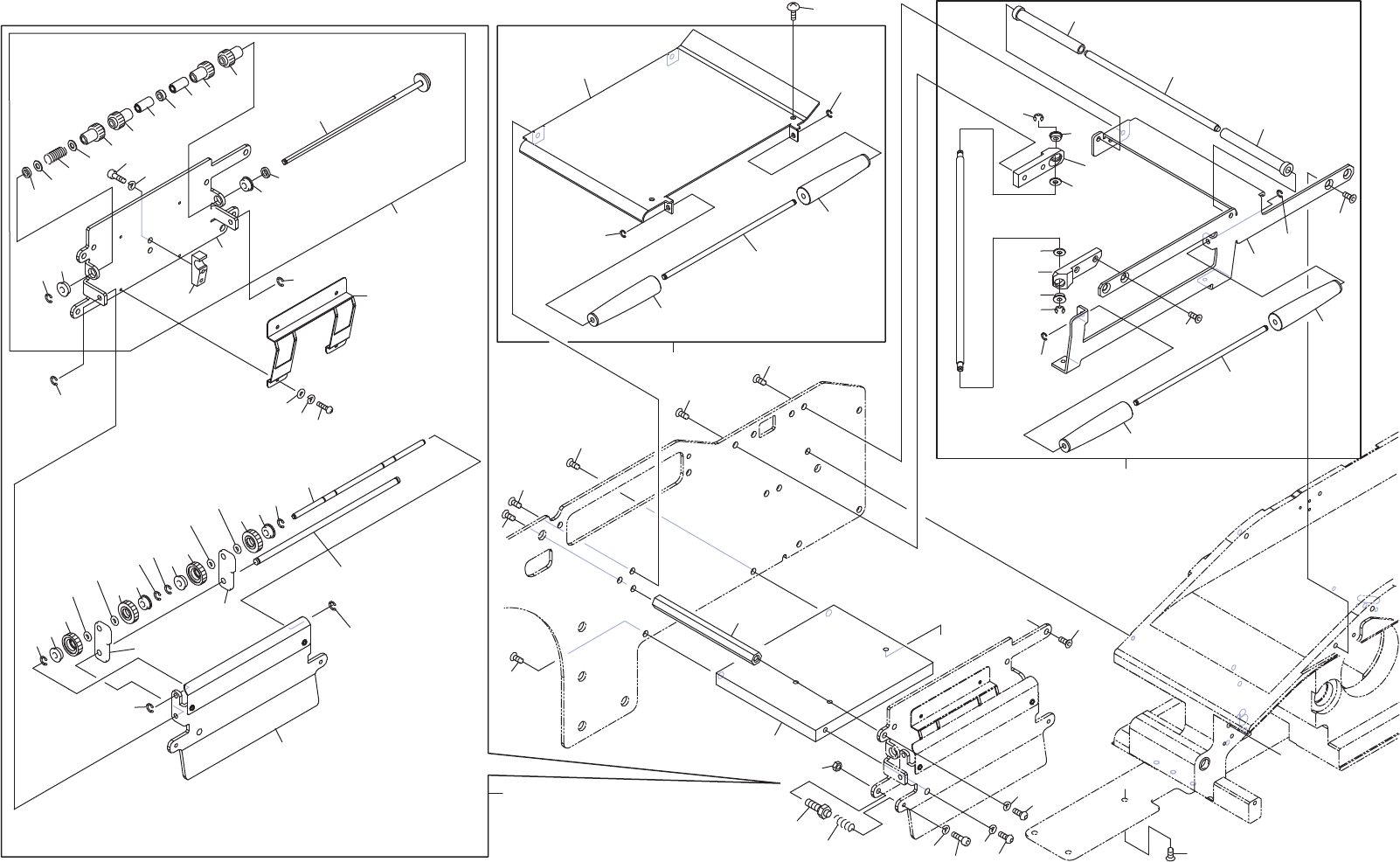
FEEDER W 104 3/3 フィー ダ W1 04 3/ 3 AA4EN28 No. Drg.No. & Code No. QTY Description Rating Remarks 番号 図番 & コード番 号 個数 品名 規格 備考 1 2ADLFE 000500 1 BKT, ROLL ER BKT ローラ 2 PM012Z 2 1 PIN ピン 3 S1003 D 2 CIR-CLIP サークリップ S…

AA
AA
BB
BB
11
11.1
44
43
46
45
19
20
22
21
26
23
23
25
27.1
38.1
32
29
30
31
38
40
40
37
37
34
35
35.1
35
33
28
36
36
33
17
42
41
22
24
25
47
26
24
26
24
24
39
27.2
27.2
33
33
23.1
23
23
23.1
27
48
53
52
53
52
49
49
50
13
12
14
15
14
16
16
18
1
9
9
6
10
11.2
6
3
3
2
8
5
10
7
4
4
4.1
4.3
4.3
4.2
38.2
38.3
54
11.1
23.1
26
23.1
AA4EN28
ࣇ࣮ࢲ:
FEEDER W104 3/3
160
PTS- FI FEEDER- 16. 1

FEEDER W104 3/3
フィーダ W104 3/3
AA4EN28
No. Drg.No. & Code No. QTY Description Rating Remarks
番号 図番 & コード番号 個数 品名 規格 備考
1 2ADLFE000500 1 BKT, ROLLER
BKT ローラ
2 PM012Z2 1 PIN
ピン
3 S1003D 2 CIR-CLIP
サークリップ
ST-EW-2(3カ シロ)
4 H4569A 2 BEARING, MINIATURE
ベアリング ミニチュア
DDLF-630ZZ
4.1 PM0GBM1 1 HOLDER, BEARING
ホルダ ベアリング
4.2 PM0GZN0 1 HOLDER, BEARING
ホルダ ベアリング
4.3 PB74761 2 COLLAR
カラー
5 PM012Y1 1 PIN
ピン
6 PJ12761 2 ROLLER
ローラ
7 2MDLFE000700 1 BKT, ROLLER
BKT ローラ
8 PM013C1 1 PIN
ピン
9 S1003D 2 CIR-CLIP
サークリップ
ST-EW-2(3カ シロ)
10 PJ12772 2 ROLLER
ローラ
11 K5357G 2 SCREW, HEX SOCKET COUNTERSUNK
小ネジ 六角穴皿
M03X004
11.1 K5357M 4 SCREW, HEX SOCKET COUNTERSUNK
小ネジ 六角穴皿
M03X006
11.2 K5357H 2 SCREW, HEX SOCKET COUNTERSUNK
小ネジ 六角穴皿
M03X005
12 AA4EF04 1 BKT, ROLLER
BKT ローラ
13 PB72081 1 GUIDE
ガイド
14 PJ12772 2 ROLLER
ローラ
15 PM013C1 1 PIN
ピン
16 S1003D 2 CIR-CLIP
サークリップ
ST-EW-2(3カ シロ)
17 K5357H 2 SCREW, HEX SOCKET COUNTERSUNK
小ネジ 六角穴皿
M03X005
18 K5171T 2 SCREW, C/R TRUSS
小ネジ 十穴トラス
M02.5X005(3カ シロ)
19 AA4EL06 1 GEAR
ギヤ
20 AA4EK01 1 LEVER
レバー
21 PM013H1 1 PIN
ピン
22 S10190 2 CIR-CLIP
サークリップ
ST-EW-1.5(ステンレス)
23 PJ08591 4 GEAR
ギヤ
23.1 W1108B 4 WASHER, FLAT
ワッシャ 平
3M/MX0.5X7(3カシロ)
24 H4569A 4 BEARING, MINIATURE
ベアリング ミニチュア
DDLF-630ZZ
25 PB46391 2 SCRAPER
スクレーパ
26 S1003D 4 CIR-CLIP
サークリップ
ST-EW-2(3カ シロ)
27 AA4EH06 1 GEAR
ギヤ
27.1 PB72092 1 BKT
BKT
27.2 PM013E2 2 SPACER
スペーサ
28 PB72101 1 PLATE
プレート
29 K5175N 4 SCREW, C/R PAN
小ネジ 十穴鍋
M02X003(ステンレス)
30 W1020A 4 WASHER, LOCK
ワッシャ スプリング
2M/M
31 W1039A 4 WASHER, FLAT
ワッシャ 平
2M/MX0.3X4.3
32 AA4EG03 1 GEAR
ギヤ
33 PM91102 4 GEAR
ギヤ
34 H44367 1 BEARING, MINIATURE
ベアリング ミニチュア
L-630ZZ
35 W1108B 2 WASHER, FLAT
ワッシャ 平
3M/MX0.5X7(3カシロ)
35.1 PZ22942 1 SPRING
スプリング
36 PJ12782 2 COLLAR
カラー
37 H4569A 2 BEARING, MINIATURE
ベアリング ミニチュア
DDLF-630ZZ
38 S1003D 1 CIR-CLIP
サークリップ
ST-EW-2(3カ シロ)
38.1 PM013F1 1 HOLDER, BEARING
ホルダ ベアリング
38.2 H5274A 2 BOLT, HEX SOCKET
ボルト 六角穴
M03X006
38.3 W1021A 2 WASHER, LOCK
ワッシャ スプリング
3M/M
39 PM013G1 1 PIN
ピン
161
PTS- FI FEEDER- 16. 1

FEEDER W104 3/3
フィーダ W104 3/3
AA4EN28
No. Drg.No. & Code No. QTY Description Rating Remarks
番号 図番 & コード番号 個数 品名 規格 備考
40 S1003D 2 CIR-CLIP
サークリップ
ST-EW-2(3カ シロ)
41 PM013K1 1 SPACER
スペーサ
42 K5357T 1 SCREW, HEX SOCKET COUNTERSUNK
小ネジ 六角穴皿
M03X008
43 PZ24341 2 SPRING
スプリング
44 H5274A 2 BOLT, HEX SOCKET
ボルト 六角穴
M03X006
45 W1021A 2 WASHER, LOCK
ワッシャ スプリング
3M/M
46 PM04LT1 2 SCREW, ADJUSTING
ネジ チヨウセイ
47 N10796 2 NUT, HEX
ナット 六角
M04(3カクロ)
48 PM013L2 1 BLOCK
ブロック
49 K5357T 2 SCREW, HEX SOCKET COUNTERSUNK
小ネジ 六角穴皿
M03X008
50 K5357M 3 SCREW, HEX SOCKET COUNTERSUNK
小ネジ 六角穴皿
M03X006
52 K5256A 2 SCREW, HEX SOCKET BUTTON
小ネジ 六角穴ボタン
M03X008
53 W1021A 2 WASHER, LOCK
ワッシャ スプリング
3M/M
54 K5357T 2 SCREW, HEX SOCKET COUNTERSUNK
小ネジ 六角穴皿
M03X008
162
PTS- FI FEEDER- 16. 1