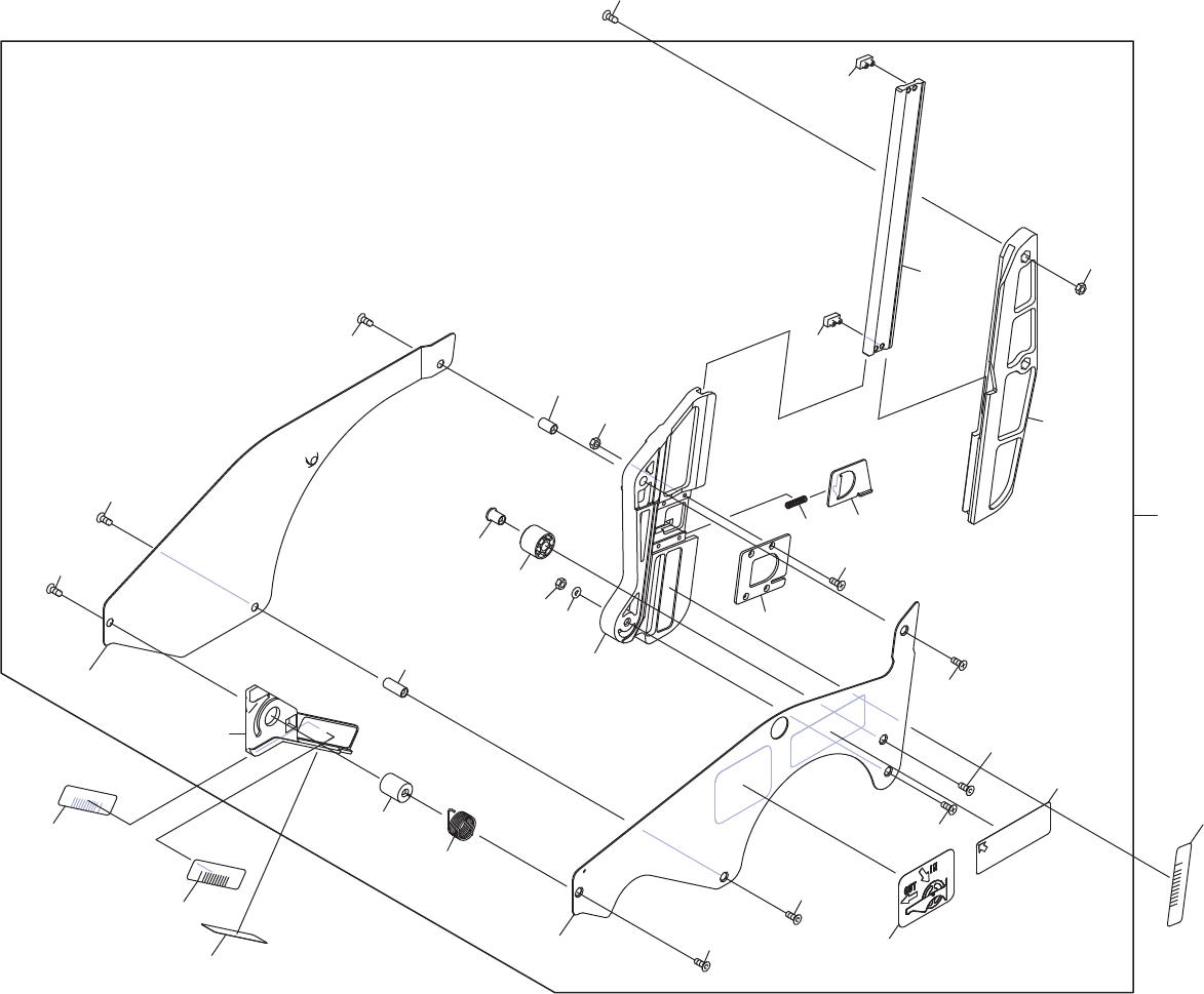
PTS-FIFEEDER-16.1 - 第41页
REEL HOLDER (SHORT CENTER PIN TYPE) W 08c,W 08f 7inch リール ホル ダ (シ ョート セン ターピ ンタイ プ) W 08c,W0 8f 7イ ンチ 2ADLFA0020 07 No. Drg.No. & Code No. QTY Description Rating Remarks 番号 図番 & コード番 号 個数 品名 規格 備考 1 2ADLFA 00200…

7
11
23
21
3
2
6
5
3
8
4
22
16
24
19
9
25
18
12
17
20
20
15
24
26
31
32
32
32
14
1
13
27
28
18.1
18.2
4.1
32
33
33
33
33
࣮ࣜࣝ࣍ࣝࢲࢩ࣮ࣙࢺࢭࣥࢱ࣮ࣆࣥࢱࣉ:F:Iࣥࢳ
REEL HOLDER (SHORT CENTER PIN TYPE) W08c,W08f 7inch
2ADLFA002007
40
PTS- FI FEEDER- 16. 1

REEL HOLDER (SHORT CENTER PIN TYPE) W08c,W08f 7inch
リール ホルダ (ショートセンターピンタイプ) W08c,W08f 7インチ
2ADLFA002007
No. Drg.No. & Code No. QTY Description Rating Remarks
番号 図番 & コード番号 個数 品名 規格 備考
1 2ADLFA002007 1 HOLDER, REEL
ホルダ リール
2 PM048F1 1 SLIDER
スライダ
3 PT01740 2 STOPPER
ストッパ
4 2MDLFA033002 1 SLIDER
スライダ
4.1 2MDLFA031200 1 PIN
ピン
5 PP02254 1 PLATE, RETAINING
プレート 押え
6 K5169N 4 SCREW, C/R COUNTERSUNK
小ネジ 十穴皿
M02X008(ステンレス)
7 N1074A 4 NUT, HEX
ナット 六角
M02(ステンレス)
8 PP02241 1 JAW
爪
9 PZ27731 1 SPRING
スプリング
11 PP03452 1 PLATE, SIDE
プレート サイド
12 K65003 1 SCREW, HEX SOCKET COUNTERSUNK
小ネジ 六角穴皿
M03X005(3カ シロ)
13 PH01482 1 ROLLER
ローラ
14 PM97974 1 PIN
ピン
15 K5357L 1 SCREW, HEX SOCKET COUNTERSUNK
小ネジ 六角穴皿
M03X006(3カ シロ)
16 2MDLFA025801 1 PLATE, SIDE
プレート サイド
17 K65003 1 SCREW, HEX SOCKET COUNTERSUNK
小ネジ 六角穴皿
M03X005(3カ シロ)
18 K65002 1 SCREW, HEX SOCKET COUNTERSUNK
小ネジ 六角穴皿
M03X012(3カ シロ)
18.1 N1079W 1 NUT, HEX
ナット 六角
M03 3シュ(3カ シロ)
18.2 W1108B 1 WASHER, FLAT
ワッシャ 平
3M/MX0.5X7(3カシロ)
19 PM97983 1 PIN
ピン
20 K5357L 2 SCREW, HEX SOCKET COUNTERSUNK
小ネジ 六角穴皿
M03X006(3カ シロ)
21 PH01415 1 ARM
アーム
22 PZ34281 1 SPRING, TORSION
スプリング ネジリ
23 PM04LS3 1 PIN, PIVOT
ピン 支点
24 K5357L 2 SCREW, HEX SOCKET COUNTERSUNK
小ネジ 六角穴皿
M03X006(3カ シロ)
25 PH01424 1 BKT, SLIDE
BKT スライド
26 N1079B 2 NUT, HEX
ナット 六角
M04 P=0.7 1シュ(3カシロ)
27 2MDLFA005700 1 SEAL
シール
28 2MDLFA009600 1 SEAL
シール
31 2MDLFA159400 2 SCREW, HEX SOCKET COUNTERSUNK
小ネジ 六角穴皿
32 PX09121 4 SEAL, BAR CODE
シール バーコード
W08c, unit serial number
33 2MDLFA067400 4 SEAL, BAR CODE
シール バーコード
W08f, unit serial number
41
PTS- FI FEEDER- 16. 1

11
2
4
13
15
16
16
8
14
5
9
17
18
21
10
6
21
18
22
22
1
23
23
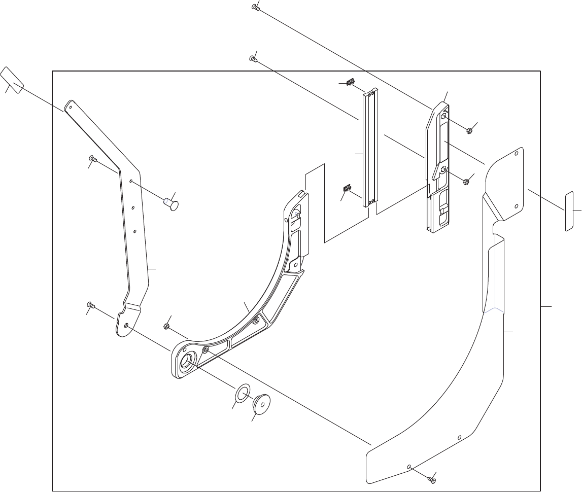
࣮ࣜࣝ࣍ࣝࢲ:F:Iࣥࢳ
REEL HOLDER W08c,W08f 13inch
AA1KA15
42
PTS- FI FEEDER- 16. 1