PTS-FIFEEDER-16.1 - 第85页
このページはブランクページです This page is intentionally blank. 此页是空白页 8 5 P T S- F I FEE D ER - 1 6 . 1

FEEDER W24c 1/2
フィーダ W24c 1/2
AB10227
No. Drg.No. & Code No. QTY Description Rating Remarks
番号 図番 & コード番号 個数 品名 規格 備考
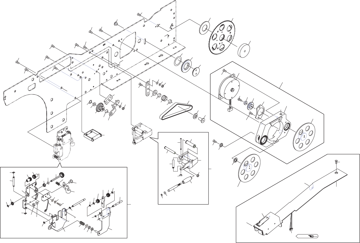
52 N10793 1 NUT, HEX
ナット 六角
M03 P=0.5(3カシロ)
53 2ADLFB008100 1 CLAMPER
クランパ
Assembly with wire/ワイヤー付きAssy
54 PZ02321 1 SPRING
スプリング
57 PM87124 1 PIN
ピン
58 K5357L 1 SCREW, HEX SOCKET COUNTERSUNK
小ネジ 六角穴皿
M03X006(3カ シロ)
59 PM03545 1 PIN
ピン
60 K5357L 1 SCREW, HEX SOCKET COUNTERSUNK
小ネジ 六角穴皿
M03X006(3カ シロ)
61 2ADLFB000900 1 GUIDE
ガイド
62 K5357B 2 SCREW, HEX SOCKET COUNTERSUNK
小ネジ 六角穴皿
M03X004(3カ シロ)
63 H54250 2 BOLT, HEX SOCKET
ボルト 六角穴
M03X005(3カ シロ)
64 W1106C 2 WASHER, LOCK
ワッシャ スプリング
3M/M(3カ シロ)
65 PJ02962 1 BKT
BKT
66 K66188 4 SCREW, HEX SOCKET COUNTERSUNK
小ネジ 六角穴皿
M03X018(3カ シロ)
67 N10793 4 NUT, HEX
ナット 六角
M03 P=0.5(3カシロ)
68 PJ02971 1 SPACER
スペーサ
69 T4107K 1 DIGITAL SW
デジタルSW
A7BS-254-79-1
70 PX10690 2 SEAL
シール
W24c
71 XK04823 1 BOARD, PRINTED CIRCUIT
基板 プリント
72 XH00191 1 HARNESS
ハーネス
73 PB01842 1 PLATE
プレート
74 2MDLFB000302 1 SHEET SW
シートSW
75 PB88197 1 LEVER
レバー
76 PM02WC5 1 PIN
ピン
77 K64283 1 SCREW, HEX SOCKET COUNTERSUNK
小ネジ 六角穴皿
M04X008(3カシロ)
78 PM66294 1 BLOCK
ブロック
79 K5357X 1 SCREW, HEX SOCKET COUNTERSUNK
小ネジ 六角穴皿
M03X008(3カ シロ)
80 N4018A 1 SCREW, HEX SOCKET SET
ネジ 六角穴止め
M03X003 クボミサキ
81 PX01832 1 SEAL, BAR CODE
シール バーコード
unit serial number
82 RZ00490 1 TAPE
テープ
83 RZ00500 1 TAPE
テープ
84
PTS- FI FEEDER- 16. 1
このページはブランクページです
This page is intentionally blank.
此页是空白页
85
PTS- FI FEEDER- 16. 1

JJ
KK
LL
MM
JJ
MM
LL
Ref.1/
NN
NN
NN
2
10.1
48
48
25
43
75.1
32
31
33
34
35
38
41
37
40
40
38
36
24
24.1
26
27
28
28
30
29
6
1
3
4
81
82
76
78
79
80
83
84
85
77
42
75
8
7
5
86
39
13
19
21
22
23
15
10
14
16
17
18
11
12
9
91
92
92
93
47.2
47.3
47.4
47.1
52
49
51
50
53
53
60
46
62
61
63
59
59
62
61
58
57
47
67
54
52
54
64
65
66
68
70
69
71
72
74
73
74
65
AB10227ࣇ࣮ࢲ:F
FEEDER W24c 2/2
86
PTS- FI FEEDER- 16. 1