KE-3010_KE-3020V_KE-3020VR-Rev05 - 第23页
- 14 - NOTE( 注記 ) #01....FOR EN EN 用 #02....UNTIL M/C REV.D マシン REV.D まで #03....AFTER M/C REV.E マシン REV.E 以降 REF.NO NOTE PART NO D E S C R I P T I O N 品 名 Qty 1 401-14537 DUCT ASSY ダクト組 1 2 400-77404 DUCT 30_60_200 ダクト 3…

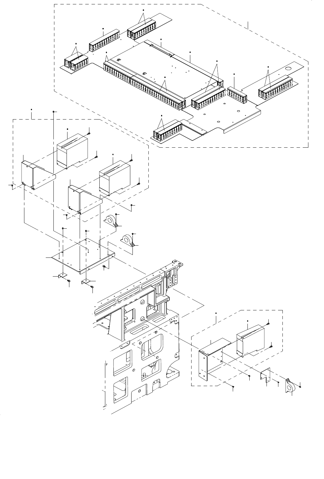
- 13 -
7. BASE FRAME ELECTRIC APPARATUS COMPONENTS(3)
ベースフレーム電装関係(3)
30
18
19
24
25
32
33
17
16
31
29
29
26
27
28
16
17
16
11
15
14
10
11
13
23
23
20
21
22
23
23
20
21
22
17
15
1
4
13
11
10
12
1
8
9
8
9
6
7
6
7
2
3
2
3
2
3
2
3
2
3
4
5
4
5

- 14 -
NOTE( 注記 ) #01....FOR EN EN 用
#02....UNTIL M/C REV.D マシン REV.D まで
#03....AFTER M/C REV.E マシン REV.E 以降
REF.NO NOTE PART NO D E S C R I P T I O N
品 名
Qty
1 401-14537 DUCT ASSY
ダクト組
1
2 400-77404 DUCT 30_60_200
ダクト 30_60_200
(8)
3 SL-4040891-SC SCREW M4 L=8
座金付きなべ小ねじ M4 L=8
(16)
4 400-32368 DUCT 40_60_125
ダクト 40_60_125
(3)
5 SL-4040891-SC SCREW M4 L=8
座金付きなべ小ねじ M4 L=8
(6)
6 400-94478 DUCT 30_60_450
ダクト 30_60_450
(3)
7 SL-4040891-SC SCREW M4 L=8
座金付きなべ小ねじ M4 L=8
(6)
8 400-94479 DUCT 30_60_200
ダクト 30_60_200
(4)
9 SL-4040891-SC SCREW M4 L=8
座金付きなべ小ねじ M4 L=8
(8)
10 400-94471 BASE SUPPORT
ベースサポート
2
11 SL-6061492-TN BOLT
座金付き六角穴ボルト
4
12 401-14026 DRIVER BASE
ドライバベース
1
13 SL-6040892-TN BOLT
座金付き六角穴ボルト
2
14 SD-0640246-SP HINGE SCREW D=6.35 H=2.4
段ねじ D=6.35 H=2.4
4
15 SL-6040892-TN BOLT
座金付き六角穴ボルト
2
16
#01
HN-0015500-00 CORE
コア
3
17
#01
SL-4041091-SC SCREW M4 L=10
なべ小ねじセムス M4X0.7 L=10
6
18
#02
401-14752 Y DRIVER UNIT
Yドライバユニット
1
19
#03
401-35627 Y_DRIVER_UNIT
Yドライバユニット
1
20
#02
400-44539 SERVO AMP 2000W
Y軸サーボアンプ2000W
(2)
21
#03
401-29654 Y AXIS DRIVER
Y軸ドライバ
(2)
22 401-14038 DRIVER BRACKET
ドライバブラケット
(2)
23 SL-4051691-SC SCREW M5 L=16
座金付きなべ小ねじ M5 L=16
(6)
24
#02
401-14753 X DRIVER UNIT
Xドライバユニット
1
25
#03
401-35628 X_DRIVER_UNIT
Xドライバユニット
1
26
#02
400-44538 SERVO AMP 750W
X軸サーボアンプ750W
(1)
27
#03
401-29652 X AXIS DRIVER
X軸ドライバ
(1)
28 401-14040 X MOTOR DRV PLATE
Xモータドライバプレート
(1)
29 SL-4051691-SC SCREW M5 L=16
座金付きなべ小ねじ M5 L=16
(3)
30
#01
401-08654 X MOTOR DRV CORE PLATE
Xモータドライバコアプレート
1
31
#01
SL-6040892-TN SCREW M4 L=8
座金付き六角穴ボルト M4 L=8
2
32 SL-6040892-TN SCREW M4 L=8
座金付き六角穴ボルト M4 L=8
2
33 SD-0640246-SP SHOULDER SCREW D=6.35 H=2.4
段ねじ D=6.35 H=2.4
2

- 15 -
8. BASE FRAME ELECTRIC APPARATUS COMPONENTS(4)
ベースフレーム電装関係(4)
8
1
2
3
13
16
15
14
4
5
12
11
10
6
7
9
17
18
39
31
40
41
22
23
21
26
49
46
48
46
47
20
42
43
36
37
35
44
33
34
29
30
28
27
24
25
31
45
45
38
38
32
19