DECAN_S1_TRM(Ver1.2_CS19.11) - 第115页
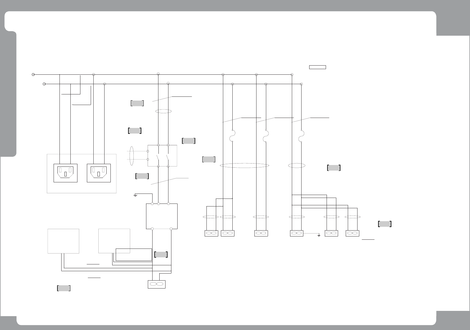
Page +$1:+$ 1 13 DE CA N S 1 El ec tr ic P o we r ( 2/ 8) NO. P ART NO. P ART NAME Q'TY Old No. S u pply S upply L T Reference 1 J90 8310 63A MAIN _PO WER_ CAB LE_A S SY SM3 3-PW0 01 1 2 AM 03-01 0913A CAB L E ASSY …

Page
+$1:+$
112
DECAN
S1
Electric Power (2/8)
1
2
3
4
5
7
6
240
D-S1_PW005
D-S1_PW004
2.5 mm (BLK)
2.5 mm(ORANGE)
L32
L33
L31
L22
L21
L23
D-S1_PW003-2
SM33_PW001
2.5 mm (ORANGE)
4.0 mm (BLK)
-MCCB1
(3Ø, 18A)
L13
L12
L11
T
SR
-EARTH PLATE
FRAME GROUND
-TRANS
220V
208200 220
L31
PE
to TB1-1A,TB1-6A
1L1
1L2
22S
22R 22T
TF2L1
TF2L2
TF2L3
220V 220V
0V 220V
200220415380 200 208 380240 415
L32
415208 220 380240
L33
2.5 mm (BLK)
X(750W),Y1(1KW),Y2(1KW),SW(50W),WD(100W) AXIS(SERVO)
22R 22T
CONTROL RACK(150VA)
MONITOR1,2(35W*2)
TF1L1
TF1L2
2.5 mm (BLK)
SM421_PW106
2.5 mm(BLK)
2.5 mm (BLK)
2.5 mm (BLK)
DC POWER #1~4(24VDC)(400W*4)
AC FAN(14W*5)
D-S1_PW000_LT
4.0 mm (Y/G)
FACTORY MAIN POWER
- 200/208/220/240/380/415VAC FLA13A
- 3PHASE ~50/60Hz SCR 100KA(220VAC)
6.SECONDARY #1 : 1Ø 220(1.5KVA)
SECONDARY #2 : 3Ø 220(2.0KVA)
2.FREQUENCY : 50/60Hz
1.CAPACITY : 3.5KVA
3.PHASE : 3Ø
4. CONNECTION: Y-Y
<TRANS SPECIFICATION>
5.PRIMARY : 3Ø 200/208/220/240/380/415V, 3.55KVA
GV2ME20
-NF1
(3Ø, 20A)
TNS-5020
-MAIN S/W
(3Ø, 25A)
KG20B-T203
SH202-C16
-CP1
(1Ø,16A)
SH203-C16
-CP2
(3Ø,16A)
to TB1-13A,TB1-15A
to MC1
AM03-027373A
SM511_PW003-1
AM03-010913A
FRAME GROUND
SM471_PW100-01
AM03-020540A
AM03-027371A
AM03-027372A
AM03-027391A
J90831063A
AM03-003859A
246
135
1
456
23
2
1
264
135
4
3
24
13
6
5
13 5
2
2
PE08
2
2
PE02
2
2
2
2
2
2
SPD

Page
+$1:+$
113
DECAN
S1
Electric Power (2/8)
NO. PART NO. PART NAME Q'TY Old No. Supply Supply LT Reference
1 J90831063A MAIN_POWER_CABLE_ASSY SM33-PW001 1
2 AM03-010913A CABLE ASSY-REAR_ELEC_PANEL_EARTH 1
3 AM03-027371A CABLE ASSY-D-S1_MCCB_NF1_EARTH 1
4 AM03-027372A CABLE ASSY-D-S1_NF1-MAIN SW 1
5 AM03-027373A CABLE ASSY-D-S1_MAIN_SW_TRANS 1
6 AM03-003859A CABLE ASSY-TRANS_CP1_2 1
7 AM03-027391B CABLE ASSY-D-S1_TB WIRE MODULE 1

Page
+$1:+$
114
DECAN
S1
Electric Power (3/8)
1
2
3
4
7
8
9
5
6
FROM CP1
1L2
1L1
AC220V
OUTLETINLET
UPS OPTION INSTALL
-UPS
(1600VA)
0.75mm(BLK)
(RIGHT SIDE)
-FAN1
-FUSE5 (AC250V,5A)
1L1 1L2(F3) 1L1
0.75mm(BLK)
1L1 1L2
-FUSE3 (AC250V,5A)
-FAN2
(FRONT SIDE)
1L1
1L1
1L2(F4)
-FUSE4 (AC250V,5A)
1L2
(REAR SIDE)
-FAN3
1L2(F5)
1L21L1
SM511_PW112
SM511_PW113
-FUMP
(15W,12V)
(15W,12V)
1L1 1L2
0.75mm(BLK)
912
58
RY 11
SC-CN24
+24V
24G
AM03-014705A
14
13
SM511C_PW145
SM511C_PW145-1
TO FRONT
1.5mm(BLK)
PC RACK
POWER SUPPLY
(SM511C_PW025)
(SM511C_PW026)
RACK FAN
0.6A(Max 1.2A)
MONITOR
TO REAR
MONITOR
0.1A
0.1A
0.1A
0.1A
AM03-011247B
0.5mm(BLK)
0.5mm(BLK)
0.75mm(BLK)
SM-FAN00
0.75mm(BLK)
(SERVO DRIVER RACK)
-FAN4
0.1A
-FAN5
0.1A
AM03-011278B
AM03-014706A
AM03-014707B
J90833316A
SM511C_PW044
AM03-020572A
AM03-020571A
EP18-000020
MY2N-D2-DC24V
< FRONT_REAR OPERATION>
6A
1A1A1A
6A
1A1A
B
AA
B
6D
1B
A
2B
7D
B
8D
3B
6C
1C
2 2 2
SM33_PW026
2
2
DC POWER(350W)
(12V)
(GND)
AC IN
5/3.3/12/-12/VDC
PE03
2
2
2
Changes when the front operation mode is selected
* Connect when using UPS
Connect when using UPS