DECAN_S1_TRM(Ver1.2_CS19.11) - 第170页
Page +$1:+$ 168 DE CA N S 1 Axis IO Board (3/11) 1 2 3 4 5 6 7 8 9 10 11 AXIO BD #1 BOARD 01 03 07 09 27 17 19 21 23 22 24 29 02 04 08 10 14 16 06 CN13 01 03 07 09 27 17 19 21 23 22 24 29 02 04 08 10 14 16 06 44 45 46 47…

Page
+$1:+$
167
DECAN
S1
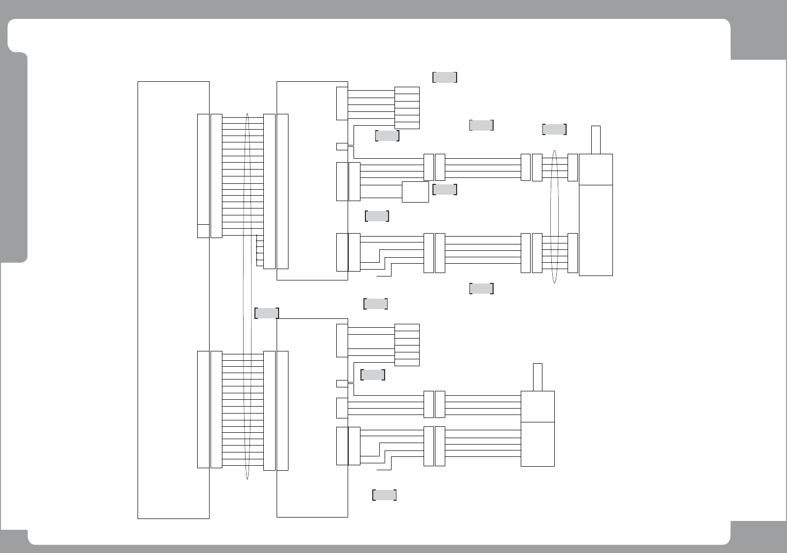
Axis IO Board (2/11)
NO. PART NO. PART NAME Q'TY Old No. Supply Supply LT Reference
1 AM03-026604B CABLE ASSY-DECAN_S1 FLAT 1 1
2 AM03-006961B CABLE ASSY-Y1_SERVO_POWER;B 1
3 AM03-027031A CABLE ASSY-Y1 MOTOR PWR 1
4 AM03-026603B CABLE ASSY-DECAN_S1 FLAT 2 1
5 AM03-027033A CABLE ASSY-Y1 LINEAR ENC 1
6 AM03-026603B CABLE ASSY-DECAN_S1 FLAT 2 1
7 AM03-019778B CABLE ASSY-FY2 DRV COMMAND 1
8 AM03-006960A CABLE ASSY-X_Y2_SERVO_POWER 1
9 AM03-027030A CABLE ASSY-Y2 MOTOR PWR 1
10 AM03-026604B CABLE ASSY-DECAN_S1 FLAT 1 1
11 AM03-027035A CABLE ASSY-Y2 LINEAR ENC 1
12 AM03-026604B CABLE ASSY-DECAN_S1 FLAT 1 1

Page
+$1:+$
168
DECAN
S1
Axis IO Board (3/11)
1
2
3
4
5
6
7
8
9
10
11
AXIO BD #1
BOARD
01
03
07
09
27
17
19
21
23
22
24
29
02
04
08
10
14
16
06
CN13
01
03
07
09
27
17
19
21
23
22
24
29
02
04
08
10
14
16
06
44
45
46
47
07
29
30
27
31
37
39
41
21
22
48
49
23
24
25
13
36
38
09
08
03
04
05
06
07
29
30
27
31
37
39
41
21
22
48
49
23
24
25
13
36
38
09
08
X SERVO
DRIVER
D-S1_VM004_LIQI
01
03
07
09
27
17
19
23
22
24
29
02
04
08
10
14
16
06
CN14
01
03
07
09
27
17
19
23
22
24
29
02
04
08
10
14
16
06
20
21
22
23
01
02
04
03
08
09
11
13
14
15
16
17
18
12
03
04
05
06
07
29
30
27
31
37
39
41
21
22
48
49
23
24
WD SERVO
DRIVER
X6
P. E
01
02
03
04
05
06
X6
4
3
2
1
1
2
3
4
5
01
02
03
04
05
06
SHIELD
D-S1-MD003
L1
L2
L3
r
t
TB1-17C
TB1-19C
TB1-21C
TB1-13C
TB1-15C
PE16
SM48-PW019
X_EN
X_PW
FG
SD/
SD
5G
+5V
W
V
U
4
3
2
1
W
V
U
E
4
3
2
1
SD
/SD
FG
0V
+5V
6
1
2
3
4
5
6
4
5
2
3
6
1
P. E
W
V
U
01
02
03
04
05
06
4
3
2
1
1
2
3
4
5
01
02
03
04
05
06
SHIELD
D-S1_MD022_LIQI
SM511_MD023-1
L1
L2
L3
r
t
TB1-17B
TB1-13B
TB1-15B
PE14
SM48-PW018_LIQI
WD_PW
FG
SD/
SD
5G
+5V
W
V
U
6
X
MOTOR
TB1-21B
GND PLATE
4
3
2
1
1
2
3
4
5
6
WD
MOTOR
WD_EN
CW
/CCW
/CW
CCW
+COM
/ALM
GAIN
/ALMRST
CLR
/SON
EB
/EZ
GND
/EB
EZ
EA
/EA
INP
-COM
AM03-026998A
CW
/CCW
/CW
CCW
+COM
/ALM
/ALMRST
CLR
/SON
EB
/EZ
GND
/EB
EZ
EA
/EA
INP
-COM
AM03-006960A
AM03-027029A
D-S1-MD004
AM03-027032A
4
3
2
1
4
5
2
3
6
1
4
3
2
1
4
5
2
3
6
1
SM511_X MOT-EX
AM03-019874B
01
02
03
04
05
06
01
02
03
04
05
06
W
V
U
B
RB
P
SM48P-MD038
IRN150S
RESISTOR
AM03-021389A
AM03-014671A
AM03-027034A
AM03-012615A
D-S1_FL001(4)
AM03-026604A
D-S1_FL001(5)
AM03-026604A

Page
+$1:+$
169
DECAN
S1
Axis IO Board (3/11)
NO. PART NO. PART NAME Q'TY Old No. Supply Supply LT Reference
1 AM03-026998A CABLE ASSY-X_W DRV CMD AXIO 1
2 AM03-006960A CABLE ASSY-X_Y2_SERVO_POWER 1
3 AM03-027029A CABLE ASSY-X MOTOR PWR 1
4 AM03-026604B CABLE ASSY-DECAN_S1 FLAT 1 1
5 AM03-019874B CABLE ASSY-X MOTOR EXT 1
6 AM03-021389A CABLE ASSY-X REGEN RESISTOR 1
7 AM03-027032A CABLE ASSY-X MOTOR ENC 1
8 AM03-026604B CABLE ASSY-DECAN_S1 FLAT 1 1
9 AM03-014671A CABLE ASSY-SW_WD_SERVO_POWER 1
10 AM03-027034A CABLE ASSY-WD MOTOR POWER 1
11 AM03-012615B CABLE ASSY-WD_MOTOR_ENC 1