N7201A552C - 第225页
SPG EJP6AJ -MB-06OM- 02 箱长度 安装间隔 (100 前后 ) 箱宽度 ( 基板宽度 -10) 传送基准 上板 箱 安装间隔 (100 前后 ) 基板宽度 传送基准 基本尺寸 ( 相同方向时 ) 上板设计例子 ( 相同方向时 ) ●使用基板的宽度尺寸按照图中的 「基板宽度」。 ●吸着箱用 M3 的螺栓来固定。 ( 用 M3 螺栓插入 M4 插孔固定 ) ●固定时不使用的孔 , 用 M4 的螺栓来 堵塞。 ●和 SP…

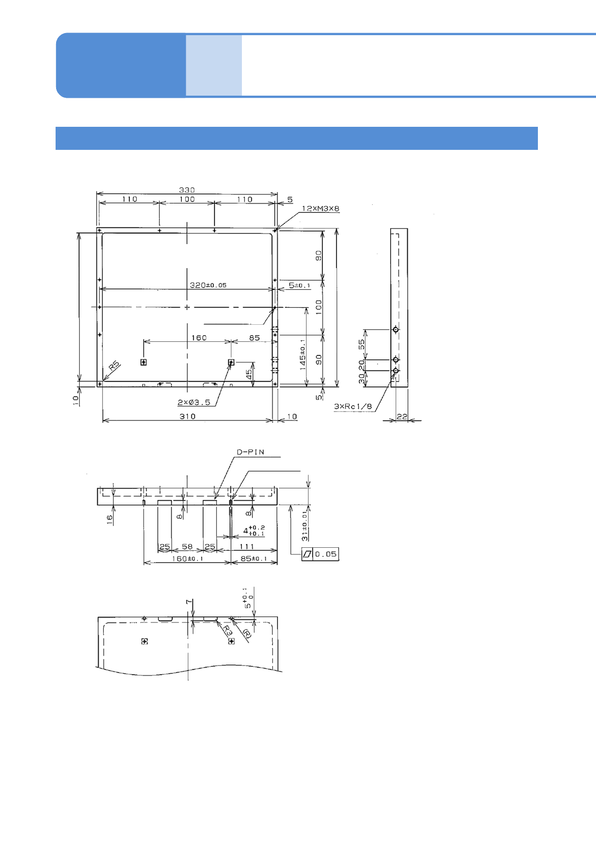
SPG EJP6AJ-MB-06OM-02
290(基板宽度-10)
2×Ф3±0.005深度5
避开用
270(基板宽度-30)
材料: 铝合金托板(A2017)
处理: 不要
箱定位用
选购件
基板吸着箱 2
吸着箱设计例子(相对时)
■设计条件
基板尺寸
(L)350 ×(W)300 mm
6-1-4-3
操作篇
6-1-4
(单位:mm)

SPG EJP6AJ-MB-06OM-02
箱长度
安装间隔 (100 前后)
箱宽度(基板宽度-10)
传送基准
上板
箱
安装间隔 (100 前后)
基板宽度
传送基准
基本尺寸(相同方向时)
上板设计例子(相同方向时)
●使用基板的宽度尺寸按照图中的
「基板宽度」。
●吸着箱用M3 的螺栓来固定。
(用M3螺栓插入M4插孔固定)
●固定时不使用的孔,用M4 的螺栓来
堵塞。
●和SP28P-D 以前的机种共通使用时,
基板吸着箱上需要传感器避开部,请
另外咨询。
■设计条件
基板尺寸
(L)350 ×(W)300 mm
6-1-4-4
(单位:mm)
传送基准
材料: 铝合金托板 (A2017)
处理: 不要
传送基准
6.5点表面深度6
(单位:mm)
选
购
件
9点表面深度6
≦330

SPG EJP6AJ-MB-06OM-02
选购件
基板吸着箱 3
吸着箱设计例子(相同方向时)
■设计条件
基板尺寸
(L) 350 ×(W)300 mm
6-1-4-5
操作篇
6-1-4
避开用
270(基板宽度-30)
(Ф3.3通孔)
材料: 铝合金托板(A2017)
处理: 不要
箱定位用
290(基板宽度-10)
(单位:mm)
2×Ф3±0.005深度5