PTS-NXT-03JE.pdf - 第274页
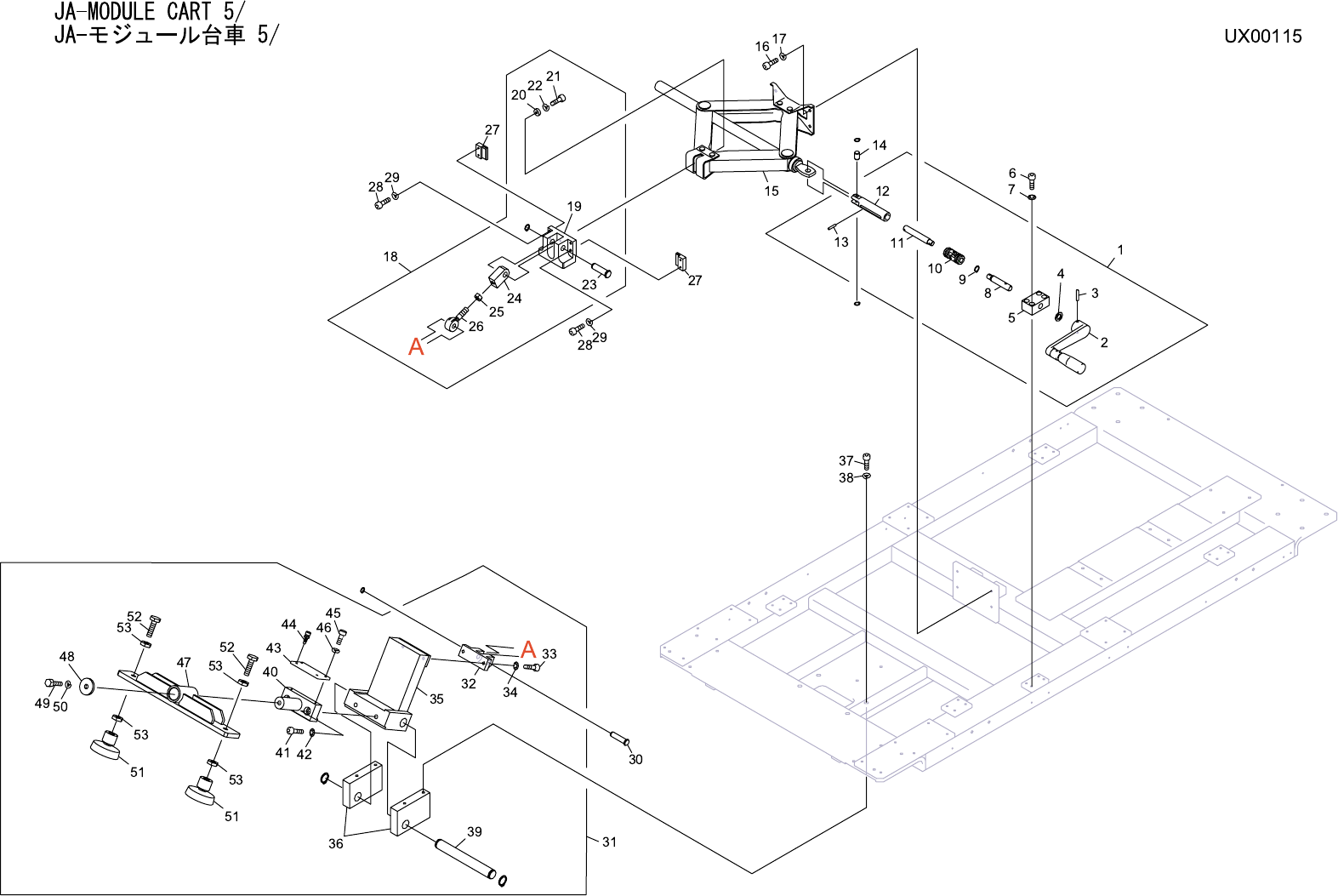
JA-MODULE CART 5/ JA- モジュール台車 5/ UX00115 No. Drg.No. & Code No. QTY Description Rating Materials Remark 番号 図番 & コード番号 個数 品名 規格 材質 備考 1 AA27403 1 HANDLE ハンドル OT 2 XH00610 1 HANDLE ハンドル OT 3 H2063T 1 PIN, SPRING ピ…

257

JA-MODULE CART 5/
JA-モジュール台車 5/
UX00115
No. Drg.No. & Code No. QTY Description Rating Materials Remark
番号 図番 & コード番号 個数 品名 規格 材質 備考
1 AA27403 1 HANDLE ハンドル OT
2 XH00610 1 HANDLE ハンドル OT
3 H2063T 1 PIN, SPRING ピン スプリング 5゚X25 OT
4 W1099A 1 WASHER ワッシャ WSJJ20-12-2 OT
5 PM33920 1 HOLDER ホルダ FE
6 H5324A 4 BOLT, HEX SOCKET ボルト 六角穴 M06X020 FE
7 W1013A 4 WASHER, CONICAL ワッシャ 皿 M- 6-H FE
8 PM08192 1 SHAFT シャフト FE
9 S1046K 1 CIR-CLIP サークリップ STWN12 OT
10 S2138K 1 JOINT ジョイント UNCA10 OT
11 PM08211 1 SHAFT シャフト FE
12 PM08222 1 BKT, ARM BKT アーム FE
13 H21167 1 PIN, PARALLEL ピン 平行 MS4-20 OT
14 K2187M 1 PIN ピン CDGH8-18 OT
15 XR00120 1 LIFTER リフタ OT
16 H5321A 4 BOLT, HEX SOCKET ボルト 六角穴 M06X012 FE
17 W1024A 4 WASHER, LOCK ワッシャ スプリング 6M/M FE
18 AA27202 1 SLIDER スライダ OT
19 PM08141 1 BLOCK ブロック FE
20 W1088Z 1 WASHER ワッシャ WSSB15-5-5 OT
21 H5300A 1 BOLT, HEX SOCKET ボルト 六角穴 M05X015 FE
22 W1023A 1 WASHER, LOCK ワッシャ スプリング 5M/M FE
23 H2189W 1 PIN ピン HCDGH12-45 OT
24 PM08161 1 PLATE, LINK プレート リンク FE
25 N1092A 1 NUT, HEX ナット 六角 M10 P=1.5 FE
26 R50280 1 ROD, JOINT ロッド ジョイント NOS10T OT
27 PM08151 2 RETAINER 押え FE
28 H5302A 4 BOLT, HEX SOCKET ボルト 六角穴 M05X020 FE
29 W1023A 4 WASHER, LOCK ワッシャ スプリング 5M/M FE
30 H2189T 1 PIN ピン HCDGH10-45 OT
31 AA27302 1 LIFTER リフタ OT
32 PM08171 1 JOINT ジョイント
FE
33 H5322A 2 BOLT, HEX SOCKET ボルト 六角穴 M06X015 FE
34 W1013A 2 WASHER, CONICAL ワッシャ 皿 M- 6-H FE
35 PM08241 1 ARM アーム FE
36 PM32100 1set BKT, ARM BKT アーム FE
37 H5342A 4 BOLT, HEX SOCKET ボルト 六角穴 M08X025 FE
38 W1025A 4 WASHER, LOCK ワッシャ スプリング 8M/M FE
258

JA-MODULE CART 5/
JA-モジュール台車 5/
UX00115
No. Drg.No. & Code No. QTY Description Rating Materials Remark
番号 図番 & コード番号 個数 品名 規格 材質 備考
39 H2186R 1 PIN ピン CCGH20-160 OT
40 PM08251 1 SHAFT, PIVOT シャフト 支点 FE
41 H5362A 2 BOLT, HEX SOCKET ボルト 六角穴 M10X035 FE
42 W1015A 2 WASHER, CONICAL ワッシャ 皿 M-10-H FE
43 PB04261 1 PLATE プレート FE
44 H5503R 2 BOLT ボルト UUSCB6-15 OT
45 H5289A 2 BOLT, HEX SOCKET ボルト 六角穴 M04X012 FE
46 W1022A 2 WASHER, LOCK ワッシャ スプリング 4M/M FE
47 PM08261 1 BKT BKT FE
48 W1092W 1 WASHER ワッシャ WSSBH35-10-5 OT
49 H5210A 1 BOLT, HEX ボルト 六角 M10X025 10.9 ゼンネジ FE
50 W1026A 1 WASHER, LOCK ワッシャ スプリング 10M/M FE
51 H1187W 2 PAD パット LEMN12 OT
52 H5234A 2 BOLT, HEX ボルト 六角 M12X070 10.9 ゼンネジ FE
53 N1096A 4 NUT, HEX ナット 六角 M12 P=1.75 FE
259