PTS-NXT-03JE.pdf - 第392页
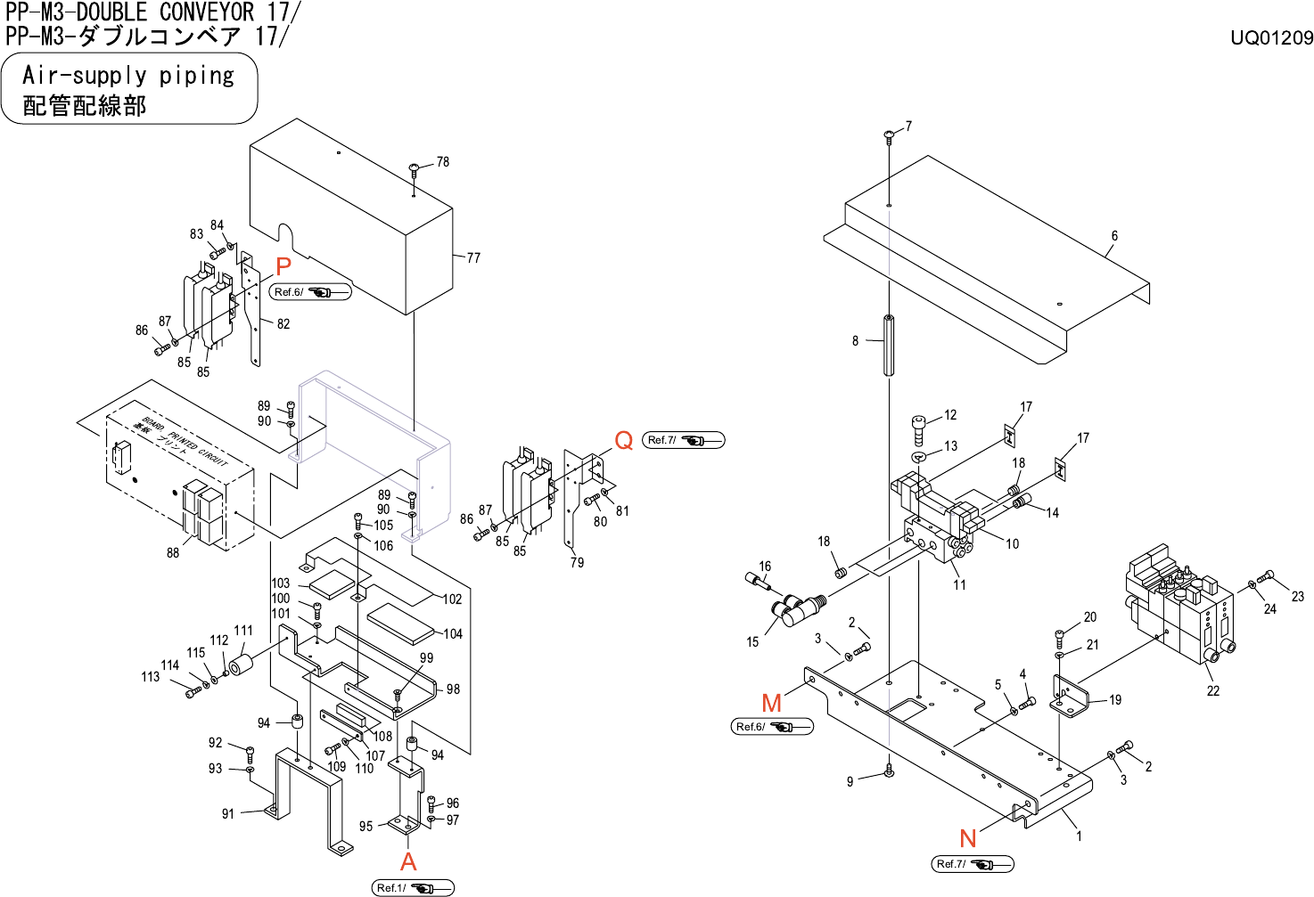
PP-M3-DOUBLE CONVEYOR 17/ PP-M3- ダブルコンベア 17/ UQ01209 No. Drg.No. & Code No. QTY Description Rating Materials Remark 番号 図番 & コード番号 個数 品名 規格 材質 備考 1 PB16602 1 BKT BKT FE 2 H5298A 2 BOLT, HEX SOCKET ボルト 六角穴 M05X010…

375

PP-M3-DOUBLE CONVEYOR 17/
PP-M3-ダブルコンベア 17/
UQ01209
No. Drg.No. & Code No. QTY Description Rating Materials Remark
番号 図番 & コード番号 個数 品名 規格 材質 備考
1 PB16602 1 BKT BKT FE
2 H5298A 2 BOLT, HEX SOCKET ボルト 六角穴 M05X010 FE
3 W1023A 2 WASHER, LOCK ワッシャ スプリング 5M/M FE
4 H5274A 1 BOLT, HEX SOCKET ボルト 六角穴 M03X006 FE
5 W1021A 1 WASHER, LOCK ワッシャ スプリング 3M/M FE
6 PB17320 1 COVER カバー FE
7 K5209A 2 SCREW, C/R TRUSS 小ネジ 十穴トラス M04X008 ユニクロメッキ FE
8 PM29090 2 STAND スタンド FE
9 H5209A 2 BOLT, HEX ボルト 六角 M10X020 10.9 FE
10 H1337K 1 VALVE, SOL バルブ SOL SY3240-5LOZ FE
11 M1034R 1 MANIFOLD マニホールド SS5Y3-41-02-C6 OT
12 H5295A 4 BOLT, HEX SOCKET ボルト 六角穴 M04X035 FE
13 W1022A 4 WASHER, LOCK ワッシャ スプリング 4M/M FE
14 S1056A 2 SILENCER サイレンサ AN101-01 OT
15 Y3120A 1 UNION, ELBOW ユニオン エルボ KQ2VD08-01S OT
16 H3145M 1 PLUG プラグ KQ2P-08 OT
17 PX02870 2 NAMEPLATE, SOL 銘板 SOL PL
18 A3034A 3 PLUG 埋栓 PT1/8 FE
19 PB16630 1 BKT BKT FE
20 H5287A 2 BOLT, HEX SOCKET ボルト 六角穴 M04X008 FE
21 W1022A 2 WASHER, LOCK ワッシャ スプリング 4M/M FE
22 DLPQ 1 GENERATOR, VACUUM 発生器 真空 VJPB-060606-D24L-W OT VAQUUM BACKUP PINS(OPTION)
23 H5283T 2 BOLT, HEX SOCKET ボルト 六角穴 M03X045 FE VAQUUM BACKUP PINS(OPTION)
24 W1021A 2 WASHER, LOCK ワッシャ スプリング 3M/M FE VAQUUM BACKUP PINS(OPTION)
77 PB21570 1 COVER カバ- FE
78 K51721 2 SCREW, C/R TRUSS トラス 十穴トラス M03X005 ユニクロメッキ(シロ)FE
79 PP00490 1 BKT BKT FE
80 H5288A 2 BOLT, HEX SOCKET ボルト 六角穴 M04X010 FE
81 W1022A 2 WASHER, LOCK ワッシャ スプリング 4M/M FE
82 PP00500 1 BKT BKT FE
83 H5288A 2 BOLT, HEX SOCKET
ボルト 六角穴 M04X010 FE
84 W1022A 2 WASHER, LOCK ワッシャ スプリング 4M/M FE
85 A1068D 4 AMPLIFIER, SENSOR アンプ センサ HPX-NT4 OT
86 H5273A 8 BOLT, HEX SOCKET ボルト 六角穴 M03X005 FE
87 W1021A 8 WASHER, LOCK ワッシャ スプリング 3M/M FE
88 XK01940 1 BOARD, PRINTED CIRCUIT 基板 プリント OT
89 H5291A 2 BOLT, HEX SOCKET ボルト 六角穴 M04X018 FE
90 W1022A 2 WASHER, LOCK ワッシャ スプリング 4M/M FE
376

PP-M3-DOUBLE CONVEYOR 17/
PP-M3-ダブルコンベア 17/
UQ01209
No. Drg.No. & Code No. QTY Description Rating Materials Remark
番号 図番 & コード番号 個数 品名 規格 材質 備考
91 PB15591 1 BKT BKT FE
92 H5297A 2 BOLT, HEX SOCKET ボルト 六角穴 M05X008 FE
93 W1023A 2 WASHER, LOCK ワッシャ スプリング 5M/M FE
94 PM22520 2 COLLAR カラ- FE
95 PB21180 1 BKT BKT FE
96 H5297A 2 BOLT, HEX SOCKET ボルト 六角穴 M05X008 FE
97 W1023A 2 WASHER, LOCK ワッシャ スプリング 5M/M FE
98 PB15600 1 BKT, WIRING BKT 配線 FE
99 K5359A 1 SCREW, HEX SOCKET COUNTERSUNK 小ネジ 六角穴皿 M04X006 FE
100 H5287A 1 BOLT, HEX SOCKET ボルト 六角穴 M04X008 FE
101 W1022A 1 WASHER, LOCK ワッシャ スプリング 4M/M FE
102 PB13580 1 RETAINER, WIRING 押え 配線 FE
103 PZ09690 1 SHEET シ-ト PL
104 PZ09680 1 SHEET シ-ト PL
105 H5256A 2 BOLT, HEX SOCKET ボルト 六角穴 M16X110 10.9 FE
106 W1022A 2 WASHER, LOCK ワッシャ スプリング 4M/M FE
107 PB13590 1 RETAINER, WIRING 押え 配線 FE
108 PZ09670 1 SHEET シ-ト PL
109 H5274A 2 BOLT, HEX SOCKET ボルト 六角穴 M03X006 FE
110 W1021A 2 WASHER, LOCK ワッシャ スプリング 3M/M FE
111 PG00111 1 STOPPER ストッパ PL
112 PPT0460 1 COLLAR カラ- FE
113 H5275A 1 BOLT, HEX SOCKET ボルト 六角穴 M03X008 FE
114 W1021A 1 WASHER, LOCK ワッシャ スプリング 3M/M FE
115 W1040A 1 WASHER, FLAT ワッシャ 平 3M/MX0.5X7 FE
377