PTS-NXT-03JE.pdf - 第487页
471

PS-M6-SINGLE CONVEYOR 2/
PS-M6-シングルコンベア 2/
UQ01506
No. Drg.No. & Code No. QTY Description Rating Materials Remark
番号 図番 & コード番号 個数 品名 規格 材質 備考
76 W1010A 2 WASHER, CONICAL ワッシャ 皿 M- 3-L FE
77 PX03170 1 SEAL, BAR CODE シール バーコード PL OPTION
470

471

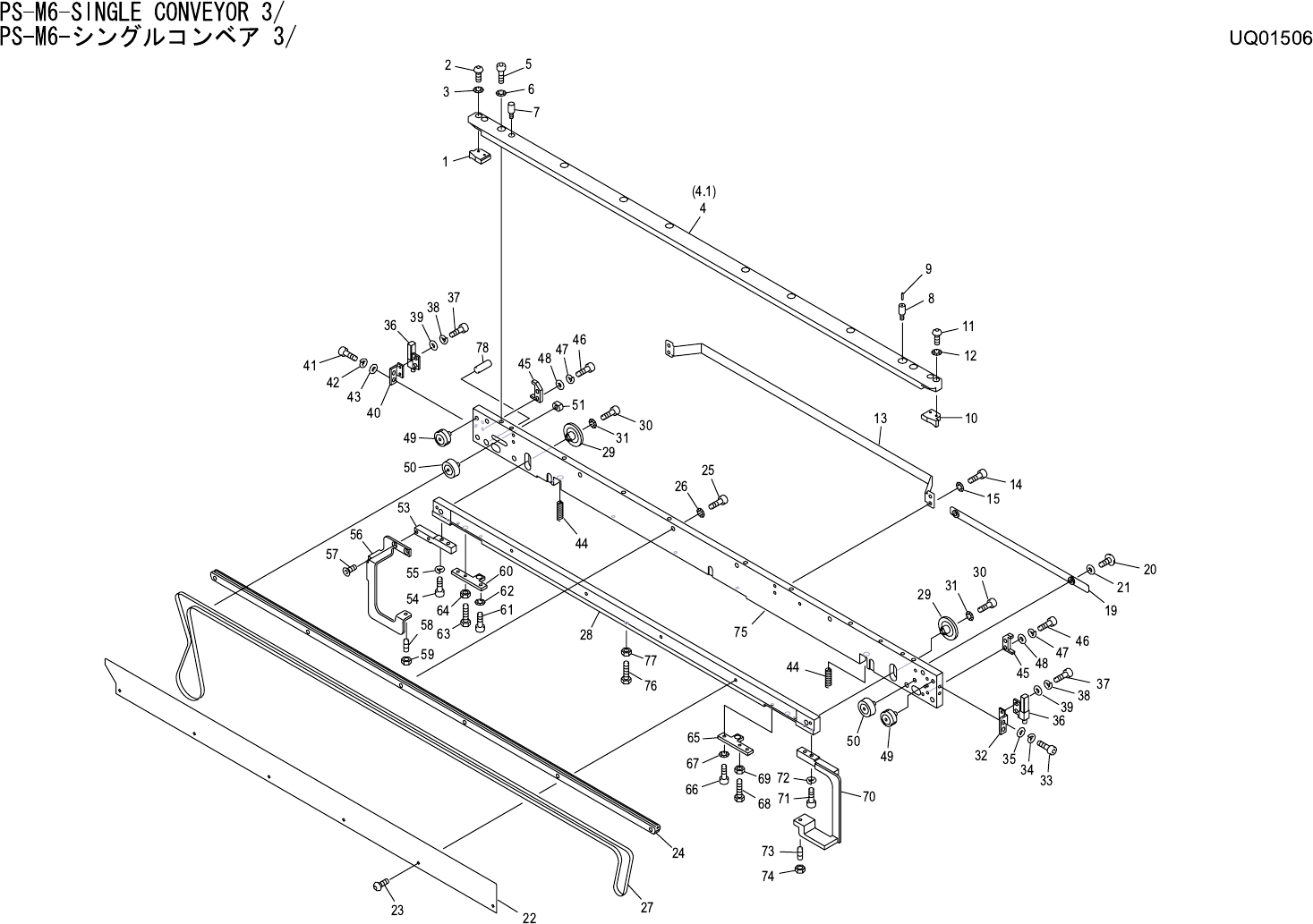
PS-M6-SINGLE CONVEYOR 3/
PS-M6-シングルコンベア 3/
UQ01506
No. Drg.No. & Code No. QTY Description Rating Materials Remark
番号 図番 & コード番号 個数 品名 規格 材質 備考
1 PM01952 1 GUIDE ガイド FE
2 K5255H 2 SCREW, HEX SOCKET BUTTON 小ネジ 六角穴ボタン M03X005 FE
3 W1010A 2 WASHER, CONICAL ワッシャ 皿 M- 3-L FE
4 PM32061 1 RAIL レール FE
4.1 PM41901 1 RAIL レール FE OPTION
5 H5288A 8 BOLT, HEX SOCKET ボルト 六角穴 M04X010 FE
6 W1011A 8 WASHER, CONICAL ワッシャ 皿 M- 4-L FE
7 PM23712 1 PIN, REFERENCE ピン 基準 FE
8 PM23701 1 PIN, REFERENCE ピン 基準 FE
9 PJ00300 1 PIN ピン PL
10 PM01961 1 GUIDE ガイド FE
11 K5255H 2 SCREW, HEX SOCKET BUTTON 小ネジ 六角穴ボタン M03X005 FE
12 W1010A 2 WASHER, CONICAL ワッシャ 皿 M- 3-L FE
13 PB18570 1 RETAINING WIRING オサエ ハイセン FE
14 H5274A 4 BOLT, HEX SOCKET ボルト 六角穴 M03X006 FE
15 W1021A 4 WASHER, LOCK ワッシャ スプリング M- 3-L FE
19 PB06452 1 PLATE,FIXED プレ-ト コテイ FE
20 K5170T 2 SCREW, C/R TRUSS 小ネジ 十穴トラス M03X006 ユニクロメッキ(シロ)FE
21 W1042A 2 WASHER, FLAT ワッシャ 平 4W- 3 FE
22 PM01601 1 PLATE, CLAMPING プレート クランプ FE
23 K5255A 6 SCREW, HEX SOCKET BUTTON 小ネジ 六角穴ボタン M03X004 FE
24 PM11191 1 GUIDE, BELT ガイド ベルト AL
25 H5287A 6 BOLT, HEX SOCKET ボルト 六角穴 M04X008 FE
26 W1011A 6 WASHER, CONICAL ワッシャ 皿 M- 4-L FE
27 XB01110 1 CONVEYOR, BELT コンベア ベルト OT L=1510mm
28 PM12166 1 PLATE, GUIDE プレート ガイド FE
29 PM01751 2 GUIDE ガイド FE
30 H5276A 2 BOLT, HEX SOCKET ボルト 六角穴 M03X010 FE
31 W1010A 2 WASHER, CONICAL ワッシャ 皿 M- 3-L FE
32 PM21020 1 BKT, SENSOR BKT センサ FE
33 H5275A 2 BOLT, HEX SOCKET ボルト 六角穴 M03X008 FE
34 W1021A 2 WASHER, LOCK ワッシャ スプリング 3M/M FE
35 W1041F 2 WASHER, FLAT ワッシャ 平 Jガタヒラザガネ 3゚X6 FE
36 XS01453 1 SENSOR, FIBER センサ ファイバ HPF-S333-D OT
37 H5273A 4 BOLT, HEX SOCKET ボルト 六角穴 M03X005 FE
38 W1021A 4 WASHER, LOCK ワッシャ スプリング 3M/M FE
39 W1041F 4 WASHER, FLAT ワッシャ 平 Jガタヒラザガネ 3゚X6 FE
40 PM21010 1 BKT, SENSOR BKT センサ FE
472