PTS-NXT-03JE - 第523页
507

QN-PARTS EJECT UNIT(M)
QN-NGパーツ排出ユニット(M)
UK00706
No. Drg.No. & Code No. QTY Description Rating Materials Remark
番号 図番 & コード番号 個数 品名 規格 材質 備考
155 K5169A 3 SCREW, C/R COUNTERSUNK 小ネジ 十穴皿 M02.5X004(ステンレス)FE
156 PB31280 1 COVER カバー PL
157 H5268R 2 BOLT, HEX SOCKET ボルト 六角穴 M02X020 FE
158 W1020A 2 WASHER, LOCK ワッシャ スプリング 2M/M FE
159 XK02400 1 BOARD, PRINTED CIRCUIT 基板 プリント OT
160 S3059L 2 SPACER スペーサ EM-2 OT
161 H5268Z 2 BOLT, HEX SOCKET ボルト 六角穴 M02.5X008 FE
162 W1039H 6 WASHER, FLAT ワッシャ 平 2.5M/M FE
163 W1020H 2 WASHER, LOCK ワッシャ スプリング 2.5M/M FE
164 PG00200 1 PLATE, RUBBER プレート ゴム OT
165 PM06670 1 PLATE プレート FE
166 K5357M 2 SCREW, HEX SOCKET COUNTERSUNK 小ネジ 六角穴皿 M03X006 FE
167 A1040K 1 AMPLIFIER アンプ PS2-61P OT
168 H5273A 2 BOLT, HEX SOCKET ボルト 六角穴 M03X005 FE
169 W1021A 2 WASHER, LOCK ワッシャ スプリング 3M/M FE
170 PZ13940 1 TUBE チューブ OT
171 A10390 1 AMPLIFIER アンプ FS-V11P OT
172 H5276A 2 BOLT, HEX SOCKET ボルト 六角穴 M03X010 FE
173 W1010A 2 WASHER, CONICAL ワッシャ 皿 M- 3-L FE
174 PZ13940 1 TUBE チューブ OT
175 PS01170 1 SHEET シート OT
506

507

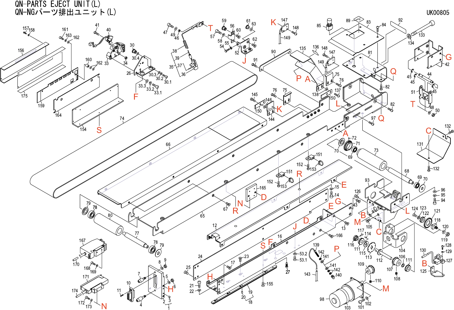
QN-PARTS EJECT UNIT(L)
QN-NGパーツ排出ユニット(L)
UK00805
No. Drg.No. & Code No. QTY Description Rating Materials Remark
番号 図番 & コード番号 個数 品名 規格 材質 備考
1 AA98201 1 BLOCK ブロック OT
2 PM35121 1 BLOCK ブロック FE
3 PZ02350 2 PIN, LOCATING ピン 位置決め OT
4 PM35780 1 PIN ピン FE
5 W1022A 1 WASHER, LOCK ワッシャ スプリング 4M/M FE
6 N1080A 1 NUT, HEX ナット 六角 M 4 P=0.7 FE
7 PM35771 1 PIN ピン FE
8 W1022A 1 WASHER, LOCK ワッシャ スプリング 4M/M FE
9 N1080A 1 NUT, HEX ナット 六角 M 4 P=0.7 FE
10 RH04750 1 HARNESS ハーネス OT
11 K51757 2 SCREW, C/R PAN 小ネジ 十穴鍋 M02.5X006 ステンレス FE
12 PB21244 1 BKT BKT FE
13 K5357M 3 SCREW, HEX SOCKET COUNTERSUNK 小ネジ 六角穴皿 M03X006 FE
14 H5298A 2 BOLT, HEX SOCKET ボルト 六角穴 M05X010 FE
15 W1023A 2 WASHER, LOCK ワッシャ スプリング 5M/M FE
16 PB20227 1 BODY 本体 FE
17 K5357M 2 SCREW, HEX SOCKET COUNTERSUNK 小ネジ 六角穴皿 M03X006 FE
18 AA00507 1 GUIDE ガイド OT
19 PM03807 1 GUIDE ガイド FE
20 PZ02350 4 PIN, LOCATING ピン 位置決め FE
21 H5273A 1 BOLT, HEX SOCKET ボルト 六角穴 M03X005 FE
22 W1021A 1 WASHER, LOCK ワッシャ スプリング 3M/M FE
23 K5357G 3 SCREW, HEX SOCKET COUNTERSUNK 小ネジ 六角穴皿 M03X004 FE
24 PB20242 1 COVER, SIDE カバー サイド FE
25 K5357M 10 SCREW, HEX SOCKET COUNTERSUNK 小ネジ 六角穴皿 M03X006 FE
26 PB32570 1 BKT BKT FE
27 K5359E 2 SCREW, HEX SOCKET COUNTERSUNK 小ネジ 六角穴皿 M04X008 FE
30 PM03542 1 PIN ピン FE
30.1 H5275A 1 BOLT, HEX SOCKET ボルト 六角穴 M03X008 1ハコ500ケ FE
30.2 W1021A 1 WASHER, LOCK ワッシャ スプリング 3M/M 1ハコ
30000ケイリ ハコガイ FE
30.3 W1040A 1 WASHER, FLAT ワッシャ 平 3M/MX0.5X7 FE
30.4 W1042A 1 WASHER, FLAT ワッシャ 平 4W- 3 FE
33 PH00544 1 BKT, CLAMP BKT クランプ PL
33.1 H5288A 2 BOLT, HEX SOCKET ボルト 六角穴 M04X010 1ハコ500ケ FE
33.2 W1022A 2 WASHER, LOCK ワッシャ スプリング 4M/M 1ハコ15000ケイリ ハコガイ FE
33.3 W1041A 2 WASHER, FLAT ワッシャ 平 4M/MX0.8X9(1W-4) FE
34 N1076A 1 NUT, HEX ナット 六角 M 3 P=0.5 1ハコ1000ケイリ ハコガイ FE
35 AA98303 1 CLAMPER クランパ OT
508