PTS-NXT-03JE - 第544页
528

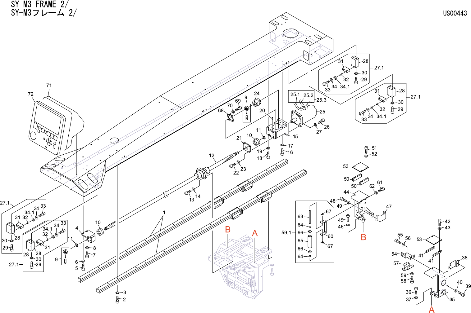
SY-M3-FRAME 1/2
SY-M3フレーム 1/2
US00443
No. Drg.No. & Code No. QTY Description Rating Materials Remark
番号 図番 & コード番号 個数 品名 規格 材質 備考
38.1 AA68905 1 ROLLER ローラ OT
39 PB14390 1 BKT,ROLLER BKT ローラ FE
40 H5288A 2 BOLT, HEX SOCKET ボルト 六角穴 M04X010 FE
41 W1022A 2 WASHER, LOCK ワッシャ スプリング 4M/M FE
42 PM18852 2 PIN ピン FE
43 N1085A 2 NUT, HEX ナット 六角 M 6 P=1.0 FE
44 W1024A 2 WASHER, LOCK ワッシャ スプリング 6M/M FE
45 K4228A 4 BEARING ベアリング 696ZZ OT
46 PJ01682 2 ROLLER ローラ PL
47 S1023A 2 CIR-CLIP サークリップ ST-EW- 5 OT
48 PX01490 1 SEAL, BAR CODE シール バーコード OT
49 AJ13108 1 HARNESS ハーネス OT
50 AJ02211 1 HARNESS ハーネス OT
51 AJ13204 1 HARNESS ハーネス OT
52 K40025 3 CASE ケース JUSP-BA01 OT
53 H10212 3 BATTERY バッテリ JZSP-BA01 OT
527
528

529