SM451DH_TRM(Ver6.0_CS16.18) - 第175页
Page HANWHA TECHWIN 163 SM451DH Conveyor Board Interface (6/8) NO. Lev . P ART NO. P ART NAME Q'TY Old N o. Supply Supply L T Reference 1 AM03-000422A CABLE ASSY -BUT STP SENSOR CABLE AS SY_DH 1 2 J90831 136B CONV_S…

Page
HANWHA TECHWIN
162
SM451DH
Conveyor Board Interface (6/8)
CONVEYOR
I/F BOARD
REAR
24P
CN14P
1
3
5
2
6
8
7
1
3
5
2
6
8
7
10
10
16
3
5
21
10
4
15
11
16
3
5
21
10
4
15
11
1
3
4
2
5
7
6
8
9
10
1
3
4
2
5
7
6
8
9
10
24P
CN16P
CN14S
CN16S
15
9
16
10
5
3
4
21
22
11
15
9
16
10
5
3
4
21
22
11
AXIS SENSOR B/D
CN11S CN11P
CN12S CN12P
FWSP-UP
FWSP-DN
FBUT
GND
RWSP-UP
RWSP-DN
RBUT
GND
FANC-OP
FANC-CL
GND
RANC-OP
RANC-CL
GND
RESERVED #1
RESERVED #2
RESERVED #3
RESERVED #4
SM451DH_CV011
AM03-000422A
CN17P
CONVEYOR
I/F BOARD
24P
22 22
16
18
16
18
14 14
CN17S
CONV SUB I/F B/D
F-EM
F-DOOR
FFD S/W
READY SW
START SW
STOP SW
PW-ON
+24V
+24V
24G
24G
23 23
2121
RESET SW
15
17
8
10
15
17
8
10
9
1
4
3
9
1
4
3
12
2
3
1
4
6
5
8
7
11
CN2S
10
9
12
CN2P
9
10
11
7
8
5
6
4
1
3
2
12P
SM33_CV013
J90831136B
REAR
^4`
^5`

Page
HANWHA TECHWIN
163
SM451DH
Conveyor Board Interface (6/8)
NO. Lev. PART NO. PART NAME Q'TY Old No. Supply Supply LT Reference
1 AM03-000422A CABLE ASSY-BUT STP SENSOR CABLE ASSY_DH 1
2 J90831136B CONV_SW_INPUT1_CABLE_ASSY SM33-CV013 1

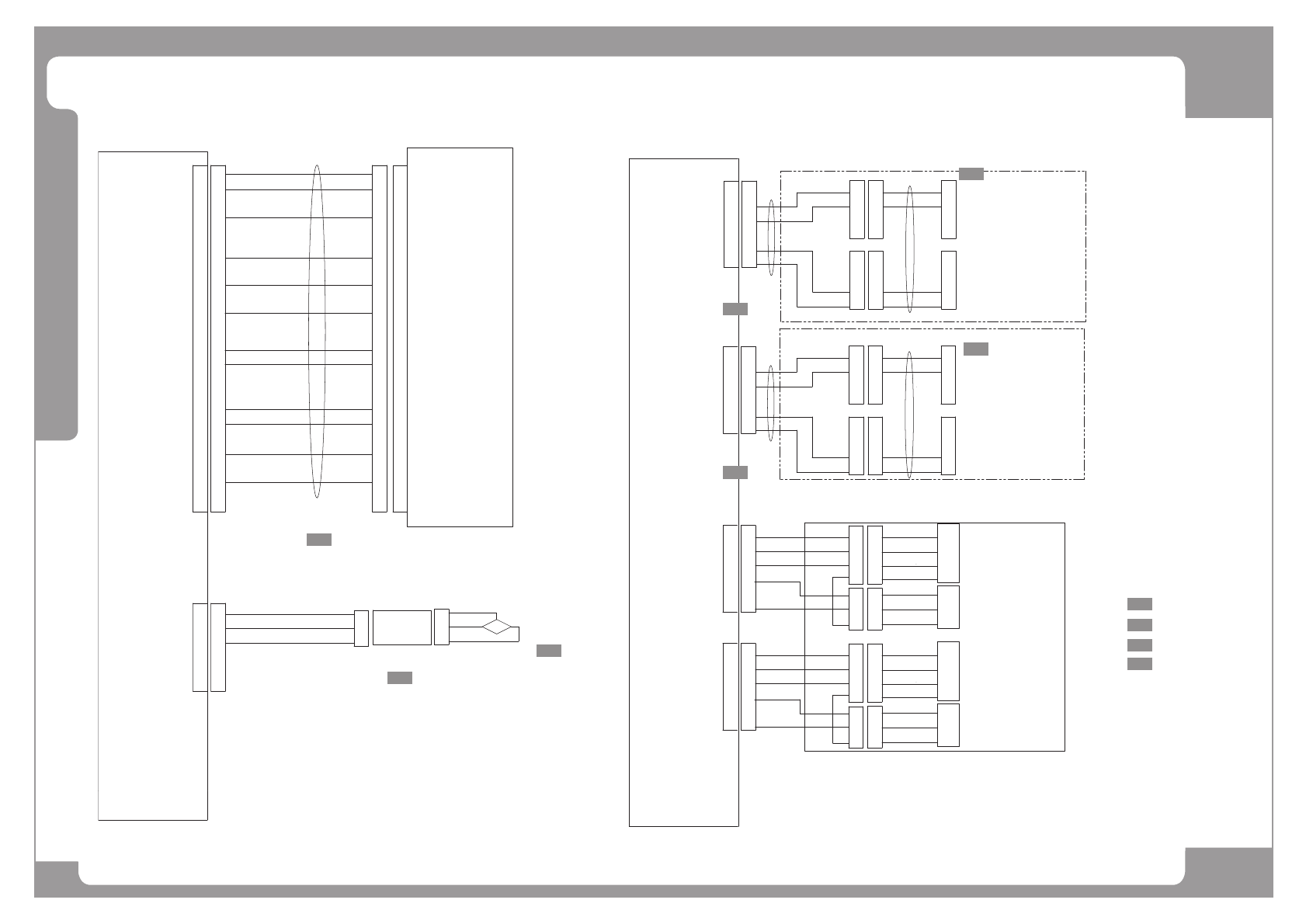
Page
HANWHA TECHWIN
164
SM451DH
Conveyor Board Interface (7/8)
CN23S
6P
CN23P
2
4
6
1
5
3
CN18S
18
16
14
CONVEYOR
I/F BOARD
24P
CN18P
18
16
14
R-EM
R-DOOR
AIR
24G
3
2
5
1
3
2
5
1
+24V
+24V
24G
4
4
10
10
15
15
R-STATUS
F-STATUS
22
22
21
21
F-SO
R-SO
11
12
8
7
5
1
3
2
4
9
10
CN3S
RFD S/W
9
96
12
11
9
10
7
6
8
5
4
3
2
1
CN3P
12P
CONV SUB I/F B/D
SM33_CV014
4
2
6
1
5
3
J90831137B
CONVEYOR
I/F BOARD
REAR
REAR
INLINE BEFORE
INLINE AFTER
6
6
CN19P
6P
2
5
4
2
5
4
CN19S
3
1
3
1
3
4
2
1
2
1
3
4 4
2
1
3
2
3
4
1
3
4
2
1
3
4
2
1
BUSY INPUT
AVAILABLE INPUT
SM451DH_CV032
SM33_CV024
AM03-000628A
J90831146B
INLINE BEFORE
INLINE AFTER
6
6
CN20P
6P
2
5
4
2
5
4
CN20S
3
1
3
1
3
4
2
1
2
1
3
4 4
2
1
3
2
3
4
1
3
4
2
1
3
4
2
1
BUSY INPUT
AVAILABLE INPUT
SM33_CV006
SM33_CV024
J90831133B
J90831146B
REAR
CONVEYOR
FRONT
CONVEYOR
6P
CN21P
4
6
6
4
3
5
2
5
2
3
CN21S
11
3
1
2
4
4
3
1
2
RECEIVER
FRONT ARER SENSOR
+24V
FASEN
24G
3
1
2
2
3
1
+24V
24G
FRONT AREA SENSOR
EMMITER
FASEN
SYNC
SYNC
+24V
24G
+24V
24G
3
1
2
3
1
2
4
2
33
24G
+24V
2
3
1
24G
4
3
2
5
2
5
4
6
6
4
RASEN
+24V
1
11
CN22S
CN22P
6P
REAR ARER SENSOR
SYNC
SYNC
+24V
24G
24G
EMMITER
REAR AREA SENSOR
RECEIVER
+24V
RASEN
OPTION!
SM33_CV015
SM33_CV016
SM33_CV017
SM421_CV018
J90831138B
J90831139B
J90831140B
J90831759A
FLAT CALE BRACKET
24G
CRASH
+24V
3
2
1
3
2
1
CRASH SENSOR
FLAT CALE
J90832958B
AM03-000080A
^4`
^5`
#^6`#
^7`
^7`
^:`
^;`
^<`
^43`
^8`
^9`